EasyManua.ls Logo

Mitsubishi SRK56A - Page 43

Mitsubishi SRK56A
68 pages
Print Icon
To Next Page IconTo Next Page
To Next Page IconTo Next Page
To Previous Page IconTo Previous Page
To Previous Page IconTo Previous Page
Loading...
1-43
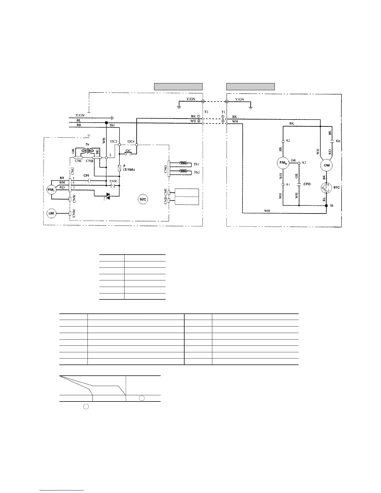
Model SRK208CENF-L
Color symbol
BK Black
BL Blue
BR Brown
RD Red
OR Orange
WH White
Y/GN Yellow/Green
Meaning of marks
Symbol Parts name Symbol Parts name
C
C
Capacitor for CM LM Louver motor
CF
I
Capacitor for FM
I
Th
1
,
2
Thermistor
CF
O
Capacitor for FM
O
Tr Transformer
CM Compressor motor ZNR Varistor
F Fuse 51C Motor protector for CM
FM
I
Fan motor (Indoor unit) 52C Magnetic contactor for CM
FM
O
Fan motor (Outdoor unit)
Notes (1) ; denotes magentized relay ×: denotes demagnetized relay
(2) Th
1
is room temperature sensor. Th
2
(the heat exchanger sensor) is frost prevention sensor. (for details, refer to pages 74)
Table of relay operations
Operation
Cooling
Relay symbol Control part
52C CM
Power source
1 Phase 220/240V 50Hz
Printed circuit board
Wireless
R-Amp
Display
Indoor unit Outdoor unit

Related product manuals