EasyManua.ls Logo

MITSUI MSG 250M - Page 7

MITSUI MSG 250M
38 pages
Print Icon
To Next Page IconTo Next Page
To Next Page IconTo Next Page
To Previous Page IconTo Previous Page
To Previous Page IconTo Previous Page
Loading...
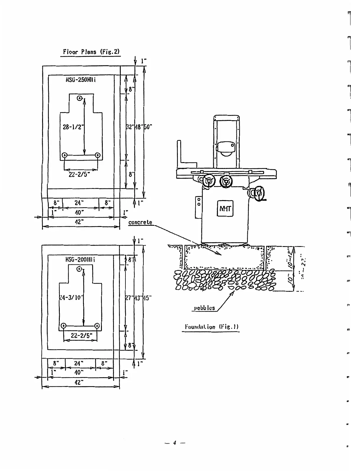
Floor Plans (Fie.2)
li 1"
MSG -250HII i
22-2/5"
811 24"
1" —1 40"
8"
42"
.J.....----
HSG-200Mili
24"
TA-
-,
81
II"
H-
8"8"
8"
40"
42"
L.
Foundaiion (Fic.1)
4