EasyManua.ls Logo

Mono FG150 - Page 96

Default Icon
110 pages
Print Icon
To Next Page IconTo Next Page
To Next Page IconTo Next Page
To Previous Page IconTo Previous Page
To Previous Page IconTo Previous Page
Loading...
MONO Bx Eco-connect Ovens 4/5/10-Tray | Steam Installation and Operation Manual
96
MONO FG0BX-UK-MAN-0200 | Rev. A21 (July 2021)
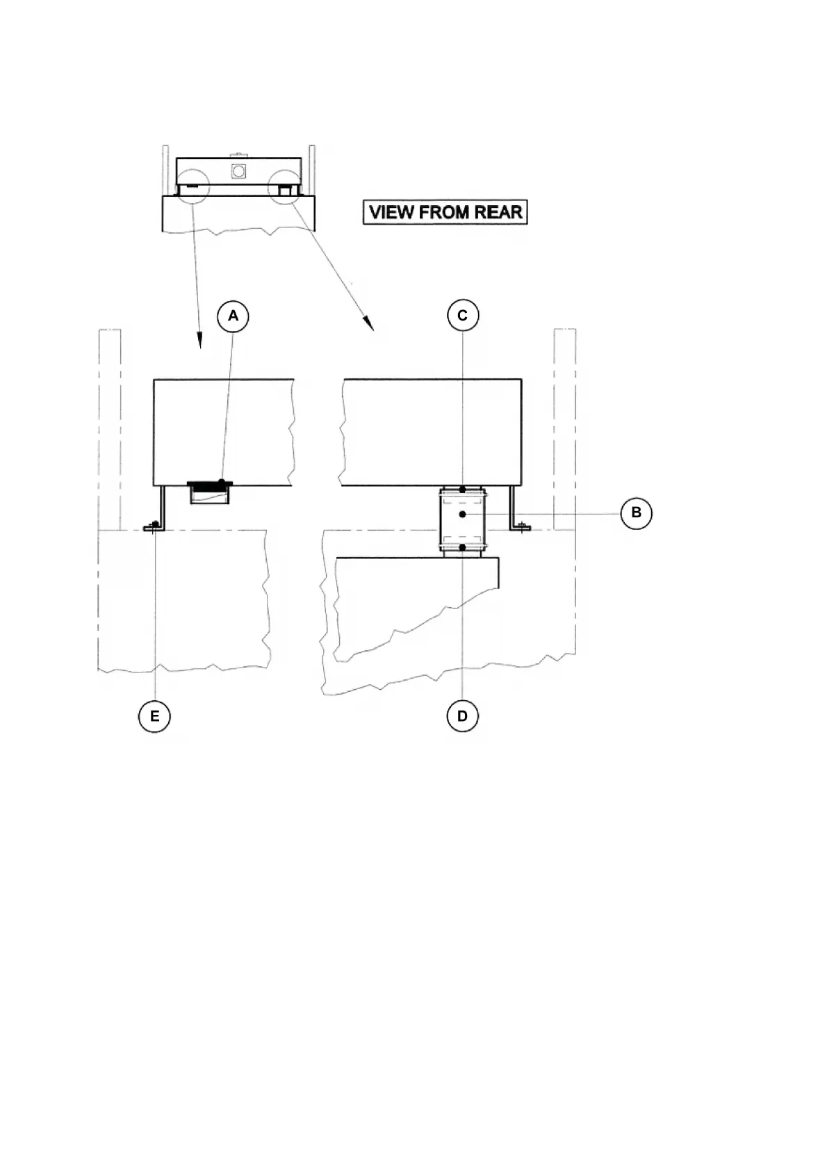
Figure 12: Installation of a condenser unit

Other manuals for Mono FG150

Related product manuals