EasyManua.ls Logo

Motorola GP338

Motorola GP338
272 pages
To Next Page IconTo Next Page
To Next Page IconTo Next Page
To Previous Page IconTo Previous Page
To Previous Page IconTo Previous Page
Loading...
Circuit Board/Schematic Diagrams and Parts List 6E-21
2113740L24 18 pF
2460591X14
L102
L106
L100
2113740L34 47 pF 2113740L33 43 pF
2460591X10 50 nH
2113740L40 82 pF
ValuePart Number
2113740L35 51 pF
2113740L37 62 pF
L105 2460591X09 135 nH
L107
2460591X12
R2 35 - 50 MHz
Value
R1 29.7 - 42 MHz
2113740L38 68 pF
C115
C110
2460591X16
C107 2113740L39 75 pF
2460591X15 46 nH
2113740L24 18 pF
2460591X13 120 nH
2405613Z06 5.45 nH
C106
C111
Designator
C103
C114
Part Number
2113740L39 75 pF
2113740L37 62 pF
NP
2113740L36 56 pF
2113740L25 20 pF
2113740L25 20 pF
2405613Z09 7.30 nH
2460591X13 2460591X12
L101 2460591X08
IF109
75pF
C107
IF101
30pF
C148
200
IF102
125nH
R101
200
R106
L100
.01uF
D100
C146
VR102
6.8V
.01uF
C134
C127
10uF
C125
0.1uF
.01uF
BEAD
E100
C124
IF108
L108
220nH
6.2K
R108
C139
100
R113
.01uF
C108
1uF
VR101
LM50
GND
3
POS
1
2
VOUT
Q100
S
D
C126
.01uF
L105
C149
.01uF
220nH
L109
C145
.01uF
C123
IF103
510pF
15
VG
6
VL
19
VLIM
200
R103
2
T1
30
TEMP
V10
14
16
V45
17
V5EXT
20
VAR1
18
VAR2
24
VAR3
4
INT
22
NA
11
Q
10
QX
1
RFIN
21
RS
31
RSET
23
RX
7
CL
26
CLK
12
CQ
13
CQX
28
DATA
F168
9
8
GND1
25
GND2
32
ANO
27
BPOS
29
CEX
CI
3
5
CJ
R112
100
H99S-4
U102
C115
IF107
IF105
20pF
TP100
20pF
C103
1000pF
C129
C138
.01uF
10
R104
R117
C122
1MEG
12K
R111
510pF
C106
62pF
SH100
SHIELD
24K
R110
1000pF
C131
10
R115
D101
L102
110nH
L101
166nH
C142
.01uF
2
3
5
4
0.1uF
C128
XFMR
T100
1
2K
R116
0.075
R102
.01uF
C135
R118
750nH
L103
IF106
10
200pF
C121
TAB4
4
.01uF
C144
J102
ANTENNA_NUT
TAB1
1
TAB2
2
TAB3
3
2.2uH
L104
R105
200
C120
200pF
0.1uF
C132
.01uF
C133
C140
.01uF
1
2
3
470
R107
J101
RF_JACK
4
GND
PB505
SWITCH
12
75pF
C114
6.75nH
L107
R114
470K
M101
10
R119
C111
C136
.01uF
IF104
82pF
1000pF
C137
.01uF
C143
C141
47pF
C119
VCNTRL
14
VD1
2
VG1
3
VG2
3300pF
13
8
NC1
9
NC2
10
NC3
15
NC4
16
RFIN RFOUT1
6
7
RFOUT2
1
U101
09Z67
11
G2
GND1
4
GND2
5
GND3
12
GND4
C110
47pF
1K
R109
M100
HEATSINK
POS
C118
47pF
L110
C117
510pF
L106
C130
1000pF
22pF
C147
EMER
TX_INJ
5V_TX
CSX
CLK
DATA
RESET
BATT_B+_4
RX_IN
FL0830473O
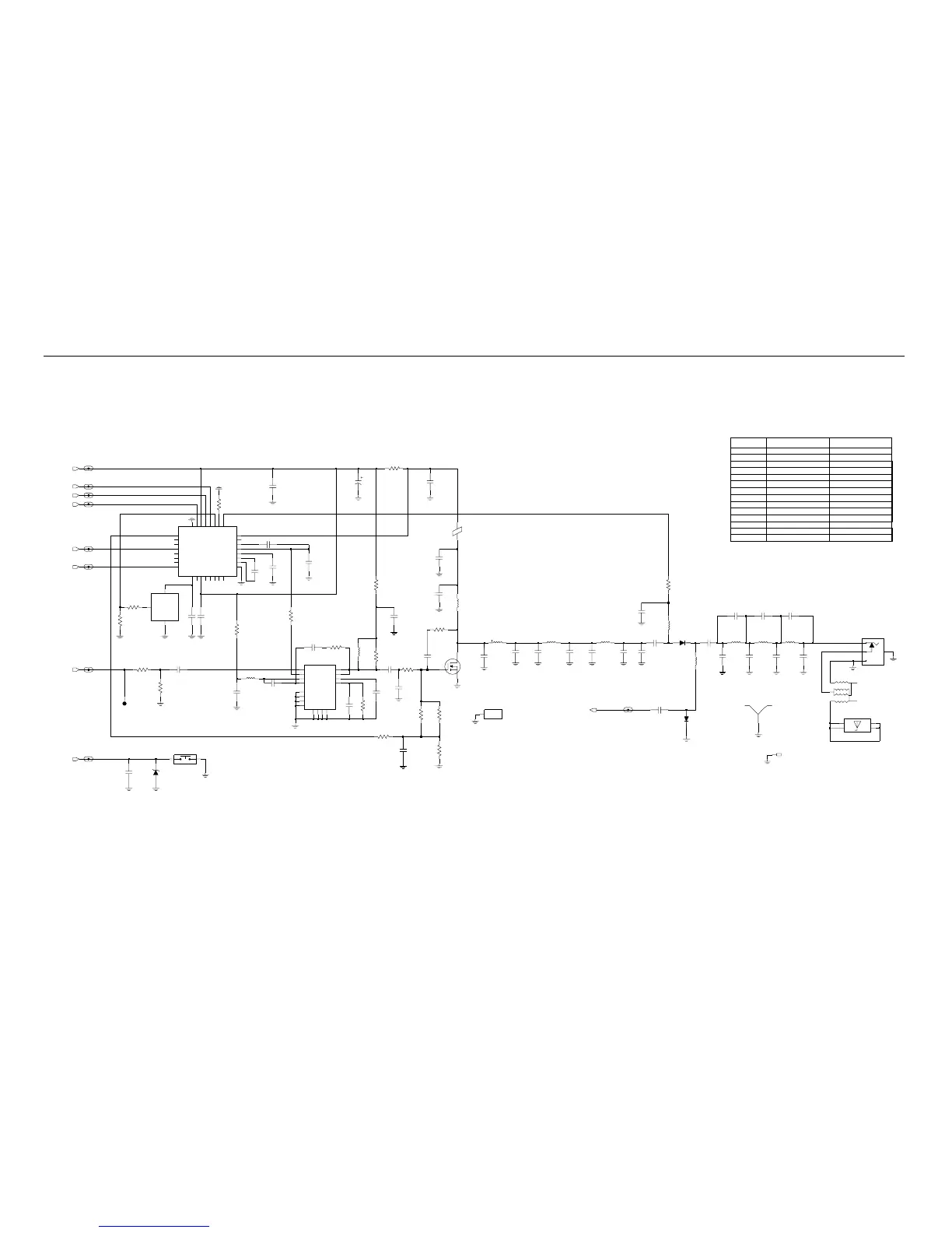
Lowband 29-42/35-50MHz Transmitter Schematic Diagram

Table of Contents

Other manuals for Motorola GP338

Related product manuals