EasyManua.ls Logo

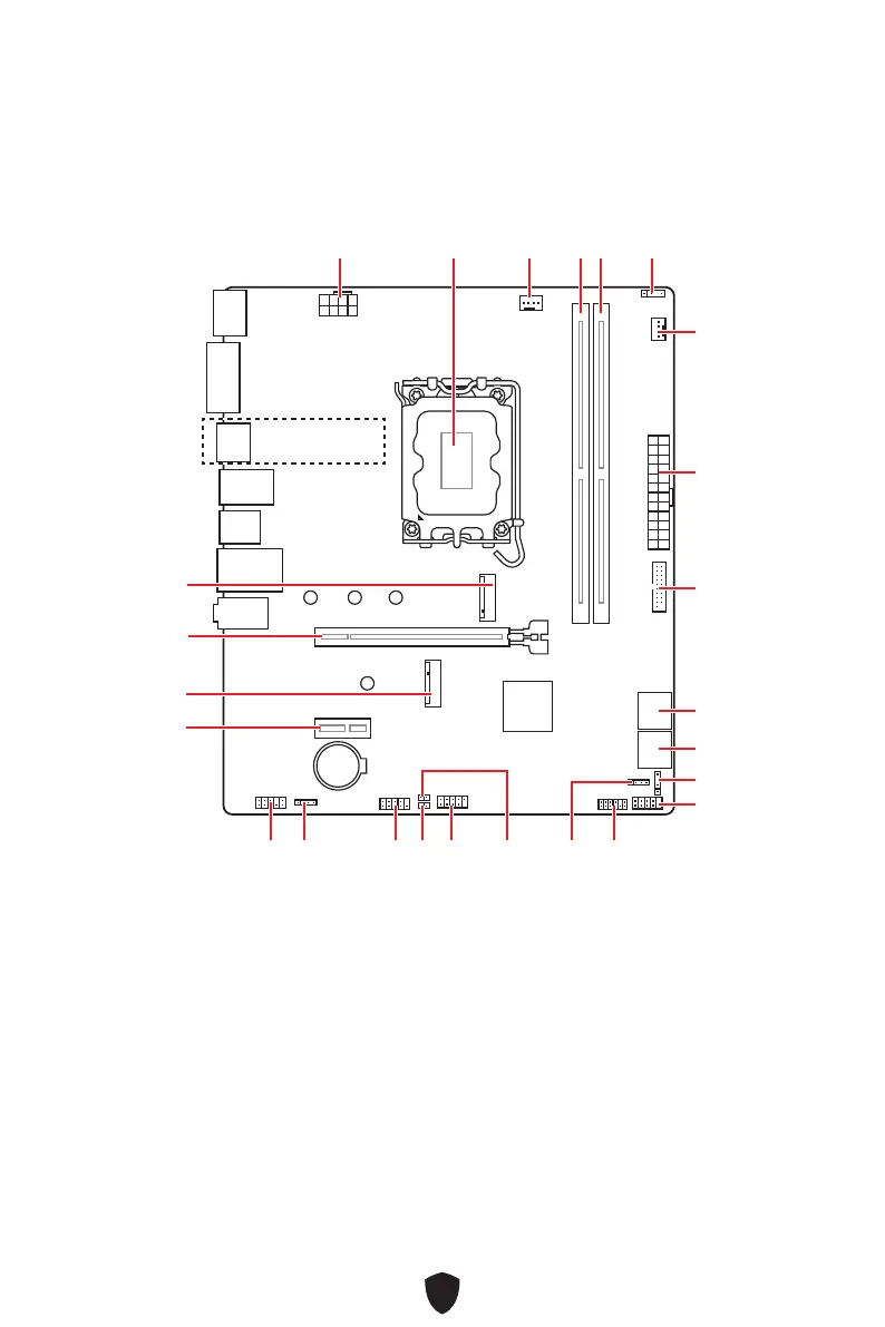
MSI PRO B660M-E DDR4 - Overview of Components

MSI PRO B660M-E DDR4
204 pages
Print Icon
To Next Page IconTo Next Page
To Next Page IconTo Next Page
To Previous Page IconTo Previous Page
To Previous Page IconTo Previous Page
Loading...
8
BAT1
JUSB2
ATX_PWR1
SYS_FAN1
CPU_FAN1


Processor
Socket
CPU_PWR1
JFP2
JTPM1
JCOM1
JRAINBOW2**
JBAT1
JUSB1
JRGB1**
JAUD1
PCI_E2
*M2_WIFI1
PCI_E1
JCI1
M2_1
JFP1
DIMMB1
JRAINBOW1**
DIMMA1
Overview of Components
* M2_WIFI1 (For PRO H610M-G DDR4/ PRO H610M-B DDR4)
** JRAINBOW1, JRAINBOW2 and JRGB1 (For PRO H610M-G DDR4)
(For PRO H610M-G
DDR4 only)

Table of Contents

Related product manuals