EasyManua.ls Logo

MSI PRO H610M-G DDR4 - Übersicht der Komponenten

MSI PRO H610M-G DDR4
204 pages
To Next Page IconTo Next Page
To Next Page IconTo Next Page
To Previous Page IconTo Previous Page
To Previous Page IconTo Previous Page
Loading...
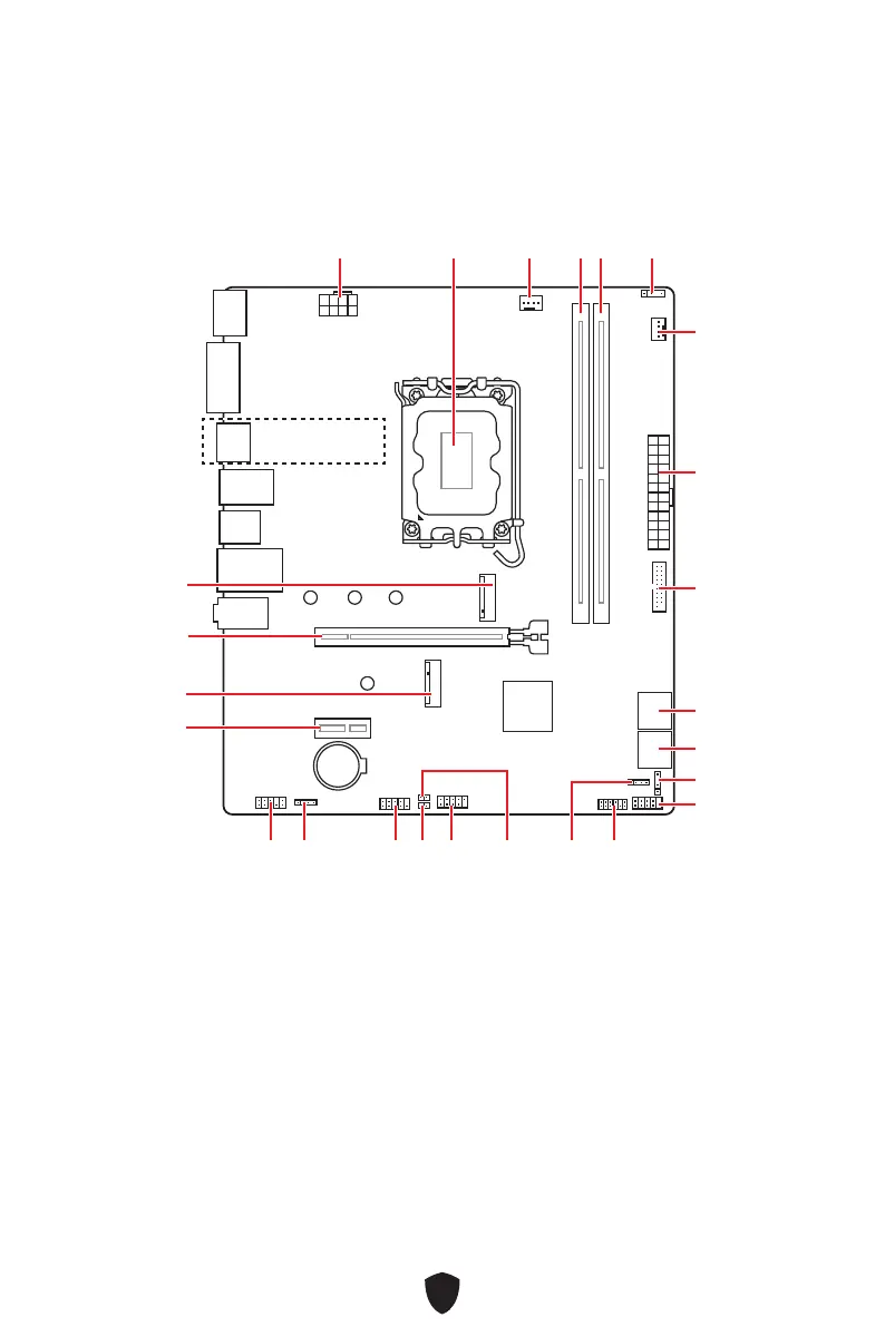
8
BAT1
JUSB2
ATX_PWR1
SYS_FAN1
CPU_FAN1


Prozessor
Sockel
CPU_PWR1
JFP2
JTPM1
JCOM1
JRAINBOW2**
JBAT1
JUSB1
JRGB1**
JAUD1
PCI_E2
*M2_WIFI1
PCI_E1
JCI1
M2_1
JFP1
DIMMB1
JRAINBOW1**
DIMMA1
Übersicht der Komponenten
* M2_WIFI1 (Für PRO H610M-G DDR4/ PRO H610M-B DDR4)
** JRAINBOW1, JRAINBOW2 und JRGB1 (Für PRO H610M-G DDR4)
(nur für PRO
H610M-G DDR4)

Table of Contents

Related product manuals