EasyManua.ls Logo

mycom i160S - Page 54

Default Icon
121 pages
Print Icon
To Next Page IconTo Next Page
To Next Page IconTo Next Page
To Previous Page IconTo Previous Page
To Previous Page IconTo Previous Page
Loading...
2203M4-JE-MY-iS2-N_2017.04.
Chapter 2 Compressor Specifications and Configuration
Screw Compressor i-series 2.5
Mechanisms
2-36
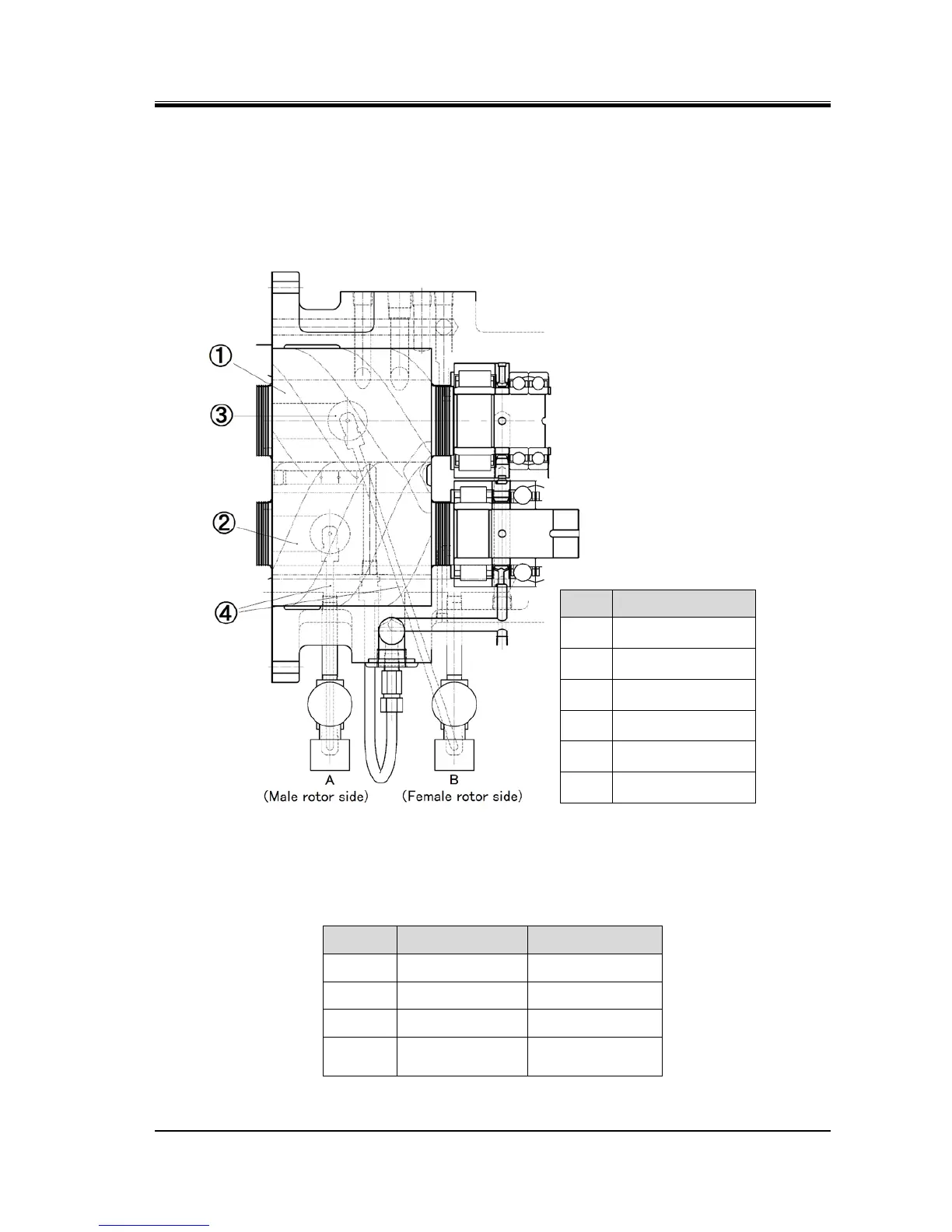
2.5.6 Capacity Control Mechanism
The capacity control of i-series compressor can be controlled in three steps of 50%, 75% and 100% via
the unloader piston installed at each male rotor side and female rotor side in the main rotor casing.
Each unloader piston controlled by solenoid valve.
Figure 2-28 Capacity Control Mechanism
Table 2-6 Control of Solenoid Valves for Capacity Control
A B
100% ON (Opened) ON (Opened)
75% OFF (Closed) ON (Closed)
50% OFF (Closed) OFF (Closed)
Standstill
(50%)
OFF (Closed) OFF (Closed)
No. Description
Female Rotor
Male Rotor
Unloader Piston
Piping
A
Solenoid Valve
B
Solenoid Valve

Related product manuals