EasyManua.ls Logo

NEC NP-M300WS - Page 2

NEC NP-M300WS
6 pages
To Next Page IconTo Next Page
To Next Page IconTo Next Page
To Previous Page IconTo Previous Page
To Previous Page IconTo Previous Page
Loading...
NEC Display Solutions of America, Inc.
M300WS Installation Guide
Ceiling Mounted and Desktop Rev 1.2
www.necdisplay.com M300W S Page 2 of 6
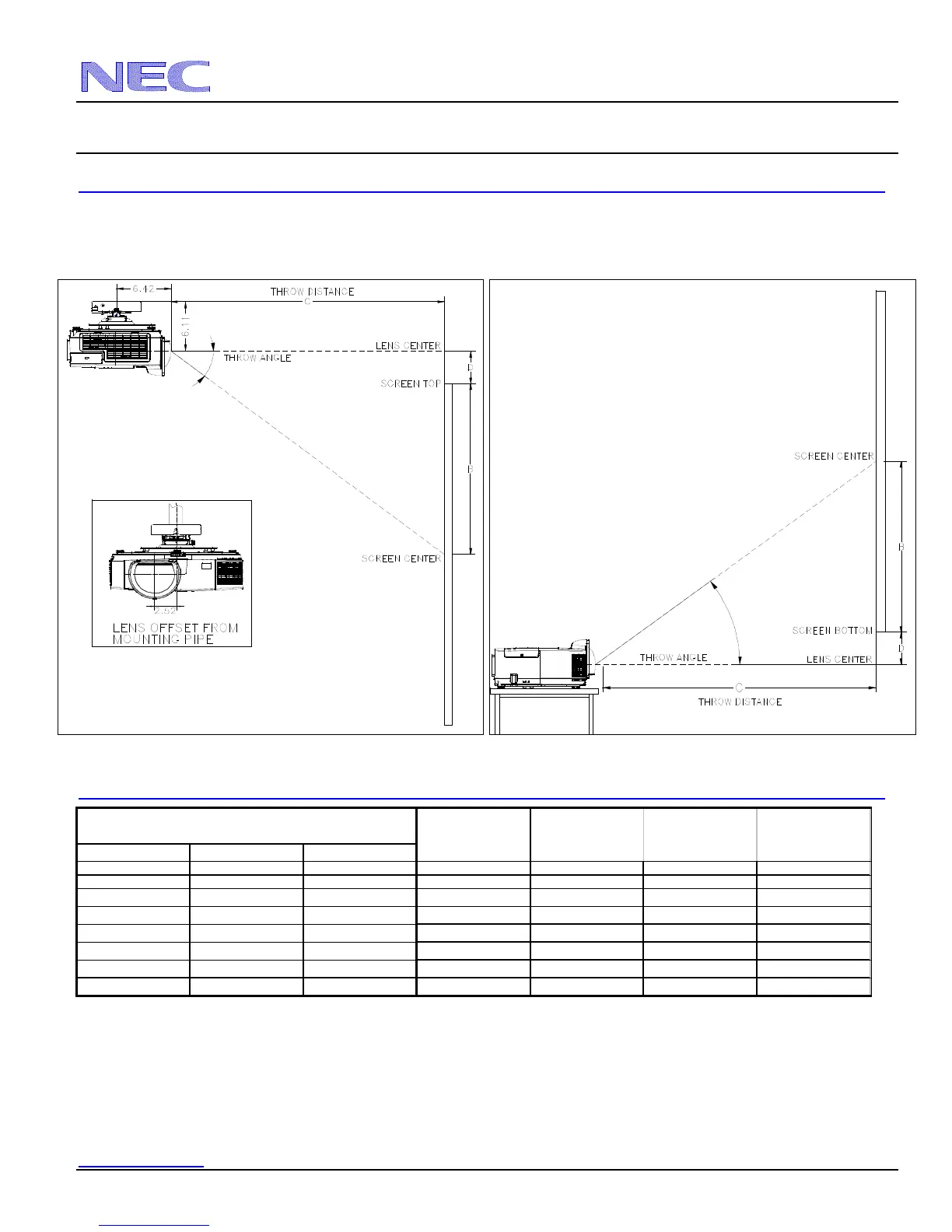
Diagrams and Distance Charts
The following shows the proper relative positions of the projector and screen. Refer to the table to determine the position of
installation.
Distances are in inches. For millimeters multiply by 25.4.
Ceiling Mounted Desktop
Distance Chart for popular 16:10 screens
Note:
For screen sizes not indicated on the projection
table, use the formulas on page 1.
Diagonal Width(W) Height (H)
inches inches inches inches inches inches degrees
57 48 30 18 23 3 38.0
60 51 32 19 25 3 38.0
70 59 37 22 28 4 38.0
79 67 42 25 32 4 38.0
91 77 48 29 37 5 38.0
10085533241 538.0
10488553342 638.0
D
α
Image Size (16:10) on a
(16:10) screen
B C

Other manuals for NEC NP-M300WS

Related product manuals