EasyManua.ls Logo

nekos KH1 - Page 7

nekos KH1
8 pages
Print Icon
To Next Page IconTo Next Page
To Next Page IconTo Next Page
To Previous Page IconTo Previous Page
To Previous Page IconTo Previous Page
Loading...
Page 13
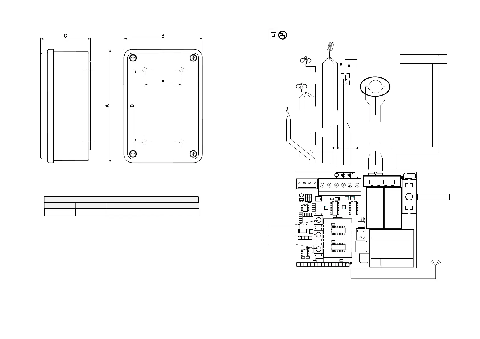
Dimension
A B C D E
100 100 60 79,5 60,5
Page 14
8. CONNECTION DIAGRAM OF THE 230V KH1 and KH1R STATION
WHITE
YELLOW (Brown)
WIN D + LIGH T
GREEN
BLACK
BLUE
C
230V ~ 50H z
OK KEY
H EATED R AIN
M AN U AL COM M AN D
A
BROWN
BLACK
LIGHT (Grey)
M
L
N
M
0V
IN1
IN2
W
RAIN
+12V
NTC
NTC
- SUN
+SUN
+ KEY
- KEY
RAD IO R EM OTE C ON TR OL AN TEN NA
F1 M AX . . 8A 230V
RED
GREEN (Blue)
BLUE
TEMPERATURE SENSOR (NTC)
L N
M
0V
OP
CL
RA I N
+12V
NTC
NTC
-S UN
+SUN
W
OK + -
SEN SOR
SEN SOR
WIN D SENSOR
BROWN
BLUE