EasyManua.ls Logo

Olimpia splendid Ci1 Sries - Instructions for Use; Electronic Control Unit and Keypad

Olimpia splendid Ci1 Sries
68 pages
Print Icon
To Next Page IconTo Next Page
To Next Page IconTo Next Page
To Previous Page IconTo Previous Page
To Previous Page IconTo Previous Page
Loading...
42
43
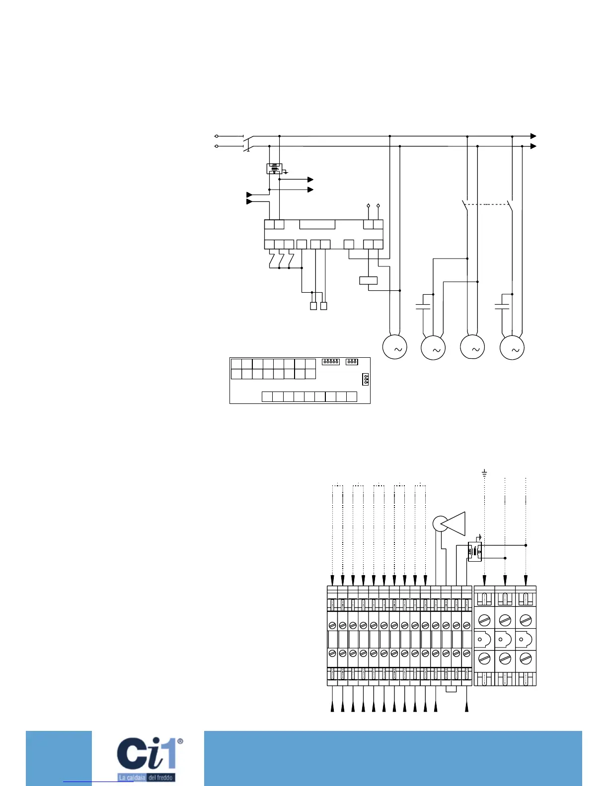
6 Schemi di installazione
6 Installation diagrams
6.2 SCHMA ELETTRICO
PER COLLEGAMENTO INTERFACCIA
USCITA CONSENSO
CALDAIA
BOILER CONSENT
OUTPUT
USCITA VALVOLE 3 VIE
3 WAY VALVE OUTPUT
ON-OFF REMOTO
ON-OFF REMOTE
INGRESSO
FLUSSOSTATO ESTERNO
EXTERNAL
FLOWER INPUT
INGRESSO CONSENSO
FANCOIL
FANCOIL CONSENT
INPUT
CONTATTO PER ALLARME
ESTERNO
EXTERNAL ALLARM
CONTACT
N
F
CS1
1 2 3 4 5 6 7 8
9 10 11 12 13 1
4
CT1
4VA
1 2 3 4 5 6 7 8
9 10 11 12 13 1
4
B1
B2
B3
B4
B1
B1
B9
B11
B9
B10
A3
A4
F
N
AQ1
16 A
F1
N1
ALIMENTAZIONE
DA MORSIETTIERA
POWER SUPPLY
TERMINAL BOARD
X1
1
X1
2
USCITA ON/OFF ELIWELL
ELIWELL ON/OFF OUTPUT
CONSENSO DA SCHEDA
BOARD OK
CONTROLLO LAVAGGI
FLUSHING CONTROLL
B1
B2
A1
A2
AT1
A VA
ALIMENTAZIONE SCHEDA
POWER SUPPLY BOARD
CONTROLLO LAVAGGI
FLUSHING CONTROLL
14 15 16 4 7 8 18 20 21
2 3
1 9
AK1
AK1 AK1
AC1 AC2
POMPA SCARICO
DRAINAGE PUMP
M
2
VENTILATORE
FA
N
M
3
POMPA CONDENSATORE
CONDENSER PUMP
M
2
AM1
COMPRESSORE
COMPRESSOR
M
3
AM2 AM3 AM4
A3
A4
X1
1
X1
1
ELIWELL ECH2158
FLUSSOSTATO
FLOW SWITCH
INGR: BASSA PRESSIONE
INPUT: LOW PRESSURE
INGR: ALTA PRESSIONE
INPUT: HIGH PRESSURE
NTC ACQUA/ARIA
USCITA/
OUTLET WATER/AIR
NTC
NTC ACQUA/ARIA
INGRESSO/
INPUT WATER/AIR
NTC
1
2 3 4 5 6 7 8
9
10 11 12 13 14 15 16
17 18 19 20 21 22 23 24 25
SERIAL
KEYB
EXP
ELIWELL ECH2158 REAR SIDE VIEW
6.1 SCHMA ELETTRICO DI POTENZA
6.1 ELECTRICAL POWER DIAGRAM
6.2 INTERFACE CONNECTION ELECTRICAL
DIAGRAM
MORSETTIERA IO
TERMINAL BOARD
1 alimentazione 1
power supply 1
9 alimentazione 2
power supply 2
4 GND
7 AN1-NTC acqua/aria in uscita
AN1-NTC water/air output
8 AN2-NTC acqua/aria in ingresso
AN2-NTC water/air input
14 ingresso ussostato intero
ingresso ussostato intero
15 ingresso pressione alta
input high pressure
16 ingresso pressione bassa
input low pressure
18 comune uscita
common output
20 uscita teleruttore
output remote control switch
21 uscita pompa di circolazione
circulation pump output
LEGENDA DISPOSITIVI
DEVICE INDEX
AQ1 sezionatore generale chiller
chiller general isolating switch
AT1 trasformatore 220V-12V AC 4VA
transformer 220V-12V AC 4VA
AK1 teleruttore compressore
compressor remote control switch
AC1 condensatore
condenser
AC2 condensatore
condenser
AM1 ingresso ussostato interno
internal ow switch input
AM2 ingresso pressione alta
input high pressure
AM3 ingresso pressione bassa
input low pressure
AM4 comune uscite
common output
APPARATI ESTERNI
OUTPUT COMPONENTS
CT1 trasformatore 220V - 12V 4VA
transformer 220V - 12V 4VA
CS1 allarme esterno 12V AC
output alarm 12V AC

Related product manuals