EasyManua.ls Logo

Omron C200HE-CPU11 - Transistor Output Unit C200 H-OD411

Omron C200HE-CPU11
241 pages
Print Icon
To Next Page IconTo Next Page
To Next Page IconTo Next Page
To Previous Page IconTo Previous Page
To Previous Page IconTo Previous Page
Loading...
Appendix BSpecifications
126
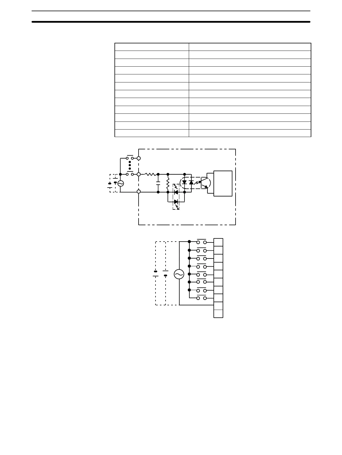
AC/DC Input Unit C200H-IM211
Rated Input Voltage 12 to 24 VDC
Operating Input Voltage 10.2 to 26.4 VDC
Input Impedance
2 kW
Input Current 10 mA typical (at 24 VDC)
ON Voltage 10.2 VDC min.
OFF Voltage 3.0 VDC max.
ON Response Time 15 ms max. (at 24 VDC, 25°C)
OFF Response Time 15 ms max. (at 24 VDC, 25°C)
No. of Circuits 1 (8 points/common)
Internal Current Consumption 10 mA 5 VDC max.
Weight 200 g max.
Dimensions A-shape
Circuit Configuration
IN
IN
COM
Internal
Circuit
12 to
24 VAC/DC
2 kW
0.01
mF
Input indicator
1.8
k
W
Terminal Connections
COM
A0
A1
A2
A3
A4
A5
A6
A7
A8
A9
0
1
2
3
4
5
6
7
NC
12 to
24 VAC/DC

Table of Contents

Related product manuals