EasyManua.ls Logo

Omron C200HE-CPU11 - Page 152

Omron C200HE-CPU11
241 pages
Print Icon
To Next Page IconTo Next Page
To Next Page IconTo Next Page
To Previous Page IconTo Previous Page
To Previous Page IconTo Previous Page
Loading...
Appendix BSpecifications
140
Transistor Output Unit C200H-OD212
Max. Switching Capacity 0.3 A 24 VDC
+10%
/
–15%
(4.8 A/Unit)
Min. Switching Capacity None
Leakage Current 0.1 mA max.
Residual Voltage 1.4 V max.
ON Response Time 0.2 ms max.
OFF Response Time 0.3 ms max.
No. of Circuits 1 (16 points/common)
Internal Current Consumption 180 mA 5 VDC max.
Fuse Rating 8 A 125 V (5.2-dia.x20)
Power for External Supply 35 mA 24 VDC
+10%
/
–15%
min.
Weight 350 g max.
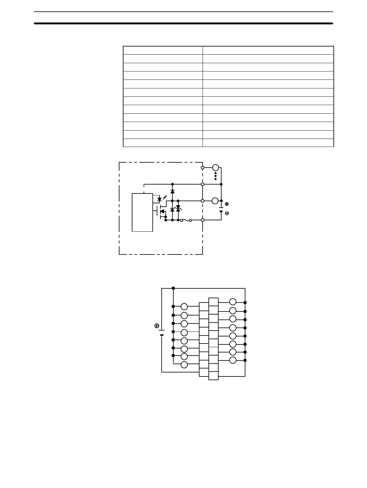
Dimensions B-shape
Circuit Configuration
Internal
Circuit
L
OUT
COM
OUT
Output indicator
L
+ V
Fuse: UL-TSC-8A-N1 (Nagasawa)
24 VDC
Fuse
8 A 125 V 5.2-dia 20
Note 1. No blown fuse detector circuit is provided.
2. Check the fuse when there is no output.
Terminal Connections
A0
A1
A2
A3
A4
A5
A6
A7
A8
B0
B1
B2
B3
B4
B5
B6
B7
B8
B9
COM (0 V)
1
3
5
7
9
11
NC
0
2
4
6
8
10
24 VDC
(0.3 A max )
L
L
L
L
L
L
L
L
L
L
L
L
+ 24 VDC
L
L
13
15
L
L
12
14
Note Be sure to supply power to B9; otherwise current will leak through the load while the output is OFF.

Table of Contents

Related product manuals