EasyManua.ls Logo

Omron C200HE-CPU11 - Page 161

Omron C200HE-CPU11
241 pages
Print Icon
To Next Page IconTo Next Page
To Next Page IconTo Next Page
To Previous Page IconTo Previous Page
To Previous Page IconTo Previous Page
Loading...
Appendix BSpecifications
149
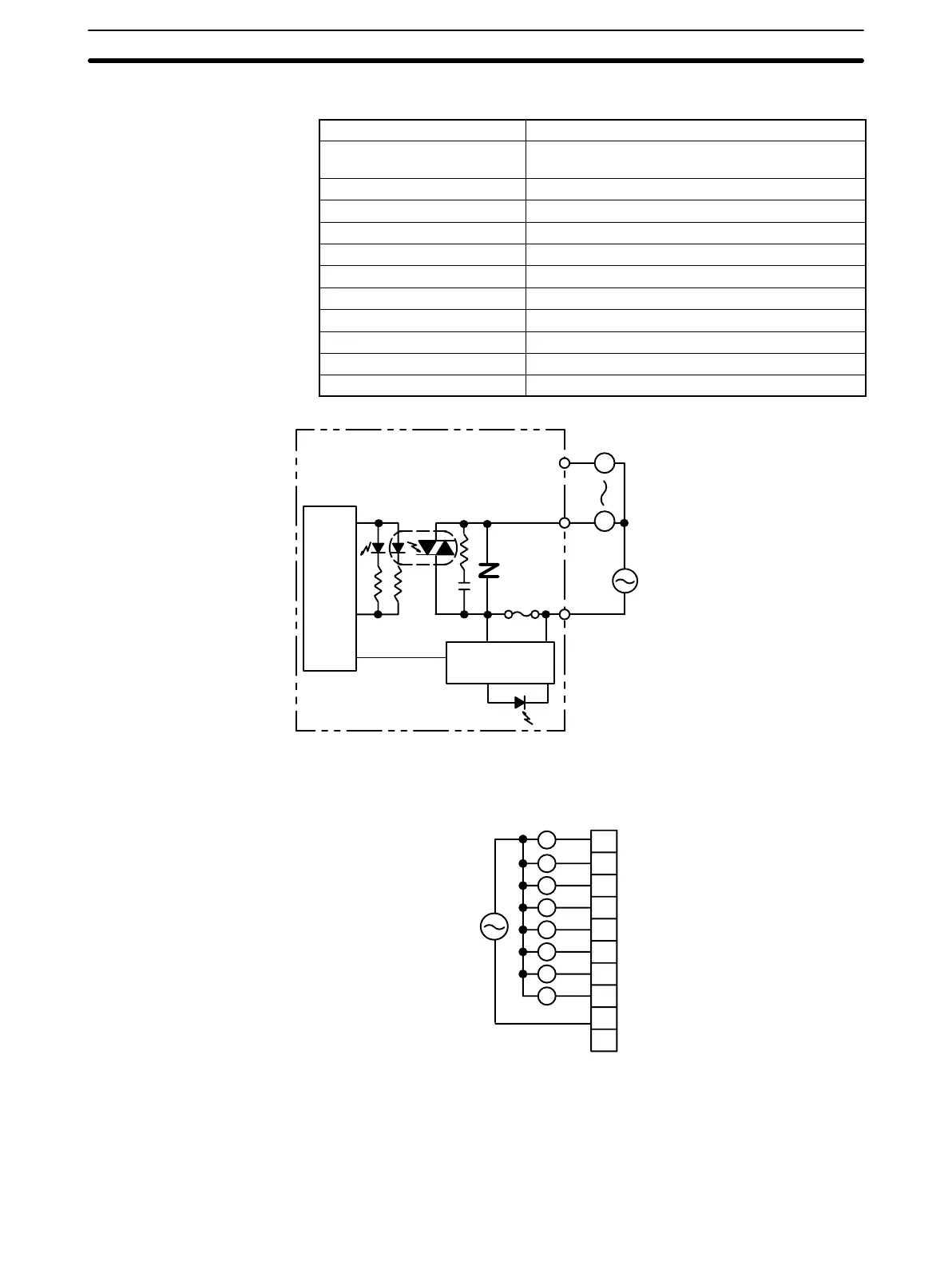
Triac Output Unit C200H-OA221
Max. Switching Capacity 1 A 250 VAC, 50/60 Hz (4 A/Unit)
Min. Switching Capacity 10 mA (resistive load)/40 mA (inductive load) 10
VAC
Leakage Current 3 mA (100 VAC) max./6 mA (200 VAC) max.
Residual Voltage 1.2 V max.
ON Response Time 1 ms max.
OFF Response Time 1/2 of load frequency or less.
No. of Circuits 1 (8 points/common)
Internal Current Consumption 140 mA 5 VDC max.
Fuse Rating 5 A 250 V (5.2-dia.x20)
Power for External Supply N/A
Weight 250 g max.
Dimensions A-shape
Circuit Configuration
Internal
Circuit
L
OUT
COM
OUT
Output indicator
L
250 VAC max.
F indicator
Fuse: 5 A 250 V (5.2-dia.x20) MF51SH (JIS)
Fuse blowout
detection circuit
Fuse
Note When the fuse blows, the F indicator lights and bit 08 turns ON. Bits 08 through 15 cannot be used as IR bits.
Terminal Connections
A0
A1
A2
A3
A4
A5
A6
A7
A8
A9
0
1
2
3
4
5
6
7
L
L
L
L
L
L
L
L
COM
250 VAC max
(1 A max. 4 A/Unit)
NC

Table of Contents

Related product manuals