EasyManua.ls Logo

Omron C200HE-CPU11 - Page 165

Omron C200HE-CPU11
241 pages
Print Icon
To Next Page IconTo Next Page
To Next Page IconTo Next Page
To Previous Page IconTo Previous Page
To Previous Page IconTo Previous Page
Loading...
Appendix BSpecifications
153
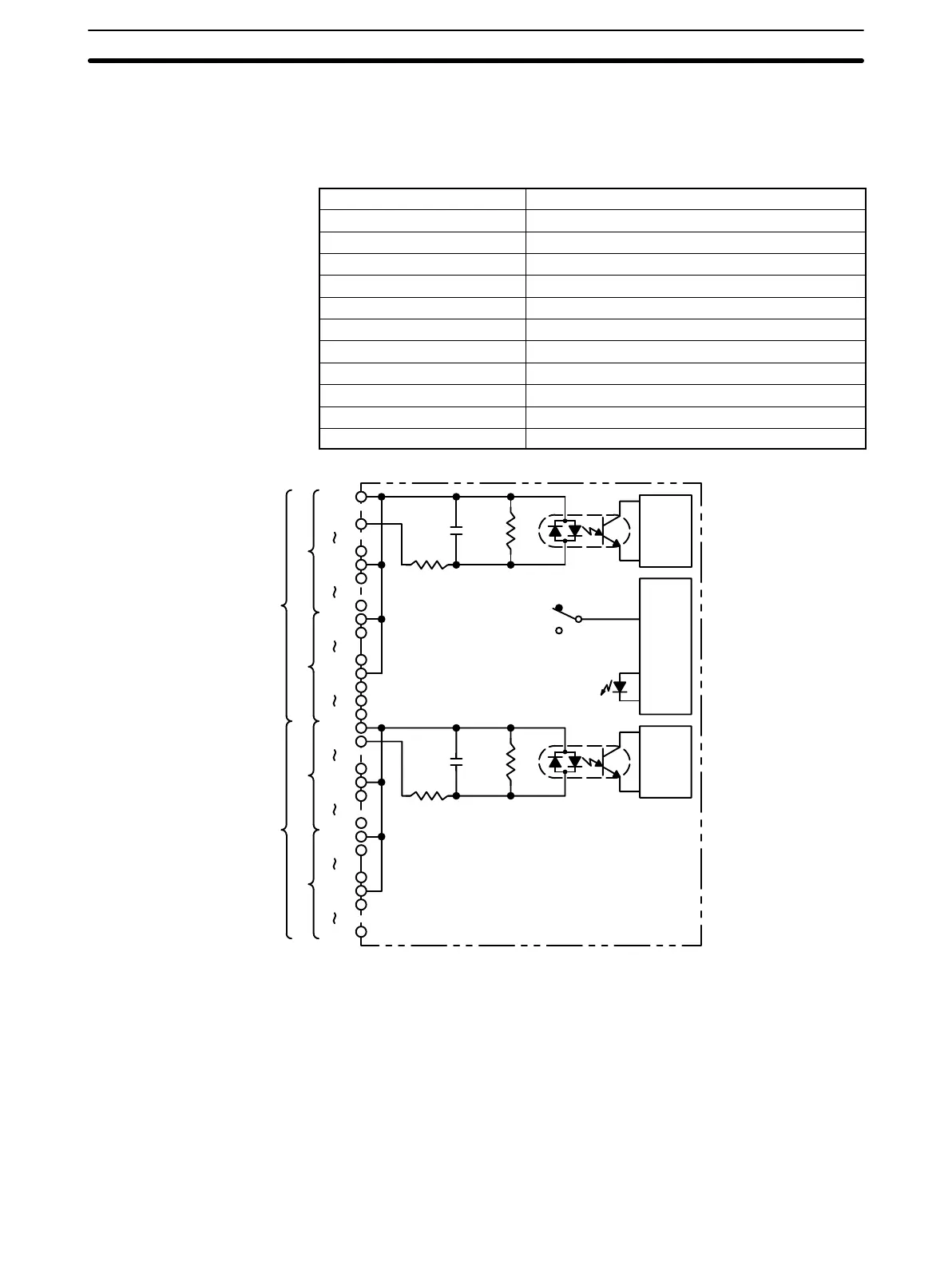
Group-2 High-density I/O Units
In the following diagrams, “m” is the first word allocated to the Unit in PC memory.
DC Input Unit C200H-ID111 (64 Points)
Rated Input Voltage 12 VDC
+10%
/
–15%
Operating Input Voltage 10.2 to 13.2 VDC
Input Impedance
2.7 kW
Input Current 4.1 mA (at 12 VDC)
ON Voltage 8.0 VDC min.
OFF Voltage 3.0 VDC max.
ON Response Time 1.0 ms max.
OFF Response Time 1.0 ms max.
No. of Circuits 2 (32 points/common)
Internal Current Consumption 120 mA 5 VDC max.
Weight 250 g max.
Dimensions D-shape
Circuit Configuration
Input indicator
Indicator
switch
circuit
COM
IN00
IN07
COM
IN08
IN15
A
1000 pF
820 W
2.7 kW
Internal
Circuit
COM
IN00
IN07
COM
IN08
IN15
COM
IN00
IN07
COM
IN08
IN15
Internal
Circuit
1000 pF
820 W
2.7 kW
COM
IN00
IN07
COM
IN08
IN15
CN1
CN1
CN2
SW
B
A
B
CN2

Table of Contents

Related product manuals