EasyManua.ls Logo

Omron V680S - Page 33

Omron V680S
38 pages
Print Icon
To Next Page IconTo Next Page
To Next Page IconTo Next Page
To Previous Page IconTo Previous Page
To Previous Page IconTo Previous Page
Loading...
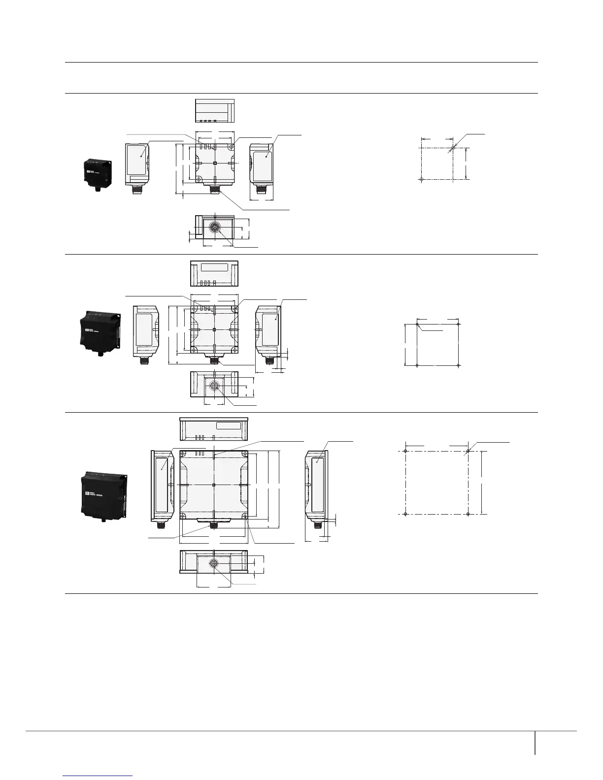
V680S Series
33
Modbus TCP
(Unit: mm)
Tolerance class IT16 applies to dimensions in this datasheet unless otherwise specified.
Two, 4.5-dia.
mounting holes
M12 threaded section
Seven, Operation indicators
Standards label
Nameplate
Connector
Two , M4
Mounting Hole Dimensions
6
42±0.2
42±0.2
30
26
15
(14.5)
4250
64.5
42
50
37.5
V680S-HMD63-ETN
5.9
6
Connector
M12
threaded section
Seven operation indicators
Four, 4.5 dia.
Mounting holes
Four, M4
Mounting Hole Dimensions
Nameplate
65±0.2
65±0.2
32
65
75
92
31
17.5
40
65
75
(17)
V680S-HMD64-ETN
Mounting Hole Dimensions
Four, M4 holes
Connector
M12 Screw
Four, 4.5 dia.
Mounting holes
4.9
6
Operation indicators
Standard label
Nameplate
60
17.5
31
120
110
16
40
120
110
136
110
±0.2
110
±0.2
V680S-HMD66-ETN

Related product manuals