EasyManua.ls Logo

OTC D05223ST - Page 16

Default Icon
24 pages
Print Icon
To Next Page IconTo Next Page
To Next Page IconTo Next Page
To Previous Page IconTo Previous Page
To Previous Page IconTo Previous Page
Loading...
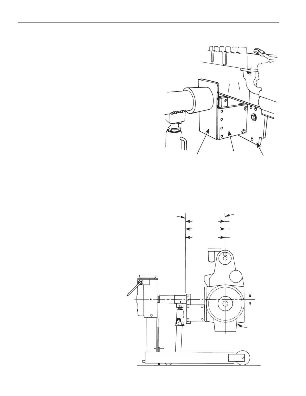
Utilisation de la plaque d’adaptateur universelle pour l’assemblage d’un moteur
Figure 3
1. Vérifiez que le mécanisme de verrouillage de
poignée situé sur le support moteur est engagé
avant d’assembler un moteur. Reportez-vous à la
Figure 5.
2.
Sélectionnez une plaque d’adaptateur de moteur
possédant la disposition de boulons correcte pour
l’entretien du moteur. Utilisez le tableau d’application
fourni avec la plaque d’adaptateur pour déterminer
les trous de boulons adaptés à ce modèle de moteur.
3. Vissez la plaque d’adaptateur de moteur au moteur
à l’aide des entretoises, des boulons et des rondelles
spécifiés dans le tableau d’application. Serrez tous
boulons à l’aide d’une clé. Voir Figure 3.
4. Fixez les plaques latérales à la plaque d’adaptateur
de moteur, mais ne serrez pas les vis d’assemblage
et les écrous.
5. Voir Figure 4.Alignez le moteur (une fois les plaques
latérales fixées à la plaque d’adaptateur) avec la
plaque d’adaptateur universelle sur le support
moteur. Levez ou abaissez le moteur jusqu’à ce
que son centre d’équilibre soit aligné avec l’arbre
de rotation du support moteur.
Remarque : le
Plaque
d’adaptateur
universelle
Plaque
latérale
Plaque
d’adaptateur
de moteur
Ligne centrale
du moteur
Surface du moyeu
de support
635 mm (25 po)
508 mm (20 po)
330 mm (13 po)
1 815 kg (4 000 lb)
2 268 kg (5 000 lb)
2 722 kg (6 000 lb)
Figure 4
Centre
de
gravité
dans un
périmètre de
50,8 mm (2 po)
Moteur
centre d’équilibre du moteur (endroit
où se concentre le poids) se trouve
généralement à environ 50,8 mm
(deux pouces) au-dessus du centre du
vilebrequin.
6. Alignez les trous taraudés de la plaque
d’adaptateur universelle les plus
proches avec les trous des plaques
latérales. Fixez solidement les plaques
latérales à la plaque d’adaptateur
de moteur et la plaque d’adaptateur
universelle sur le support moteur.
Directives relatives à l’assemblage et au fonctionnement Formulaire nº 102302, feuille 2 sur 3, verso

Related product manuals