EasyManua.ls Logo

OTC D05223ST - Page 22

Default Icon
24 pages
Print Icon
To Next Page IconTo Next Page
To Next Page IconTo Next Page
To Previous Page IconTo Previous Page
To Previous Page IconTo Previous Page
Loading...
Die Universal-Adapterplatte zur Montierung eines Motors
Abbildung 3
1. Sicherstellen, dass vor der Montage des Motors
der Einrastmechanismus auf dem Montagebock
eingerastet ist. Siehe Abbildung 5.
2.
Eine Motoren-Adapterplatte auswählen, die das
korrekte Bolzenmuster für den zu wartenden
Motor hat. Die mit der Adapterplatte gelieferten
Datenblätter benutzen, um zu bestimmen, welche
Bolzenlöcher zu dem bestimmten Motorenmodell
passen.
3. Die Motoren-Adapterplatte und den Motor mit den
im Datenblatt genannten Abstandshaltern, Bolzen
und Unterlegscheiben verschrauben. Die Bolzen
mit dem Schraubenschlüssel anziehen. Siehe
Abbildung 3.
4. Die Seitenplatten an die Motoren-Adapterplatte
anbringen, aber die Innensechskantschrauben
und Muttern nicht festziehen.
5. Siehe Abbildung 4. Den Motor (mit den Seitenplatten
an der Adapterplatte angebracht) an der
Universal-Adapterplatte auf dem Montagebock
ausrichten. Den Motor anheben oder senken,
bis dessen Schwerpunkt mit der Rotationswelle
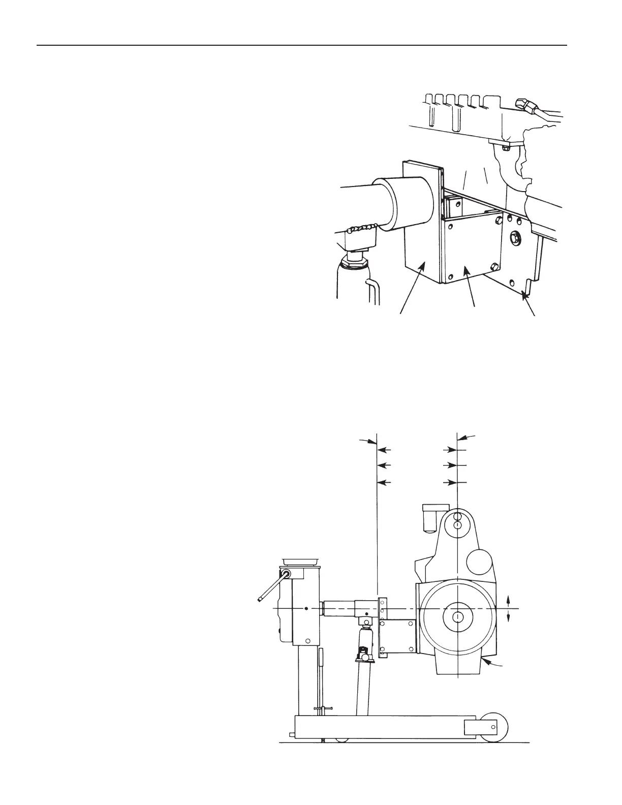
Universal-
Adapterplatte
Seitenplatte
Motor-
Adapterplatte
Mittellinie
des Motors
Befestigungsnabe
635 mm (25 in.)
508 mm (20 in.)
330 mm (13 in.)
1.815 kg (4000 lb.)
2.268 kg (5000 lb.)
2.722 kg (6000 lb.)
Abbildung 4
Schwer-
punkt
innerhalb
von
50,8 mm
(2,0 in.) in allen
Richtungen
Motor
des Montagebocks übereinstimmt.
Hinweis: Der Schwerpunkt des Motors
(größte Konzentration des Gewichts) ist
normalerweise ungefähr 50,8 mm (zwei
Zoll) über dem Zentrum der Kurbelwelle.
6.
Die nächstgelegenen Gewindebohrungen
in der Universal-Adapterplatte an den
Löchern in den Seitenplatten ausrichten.
Die Seitenplatten sicher an der Motoren-
Adapterplatte (auf dem Motor) und an
der Universal-Adapterplatte auf dem
Montagebock befestigen.
Aufbau- und Betriebsanleitung Formular Nr. 102302, Blatt 2 von 3, Rückseite

Related product manuals