EasyManua.ls Logo

Ozroll OZS251E - Installation of the Collectors

Default Icon
36 pages
Print Icon
To Next Page IconTo Next Page
To Next Page IconTo Next Page
To Previous Page IconTo Previous Page
To Previous Page IconTo Previous Page
Loading...
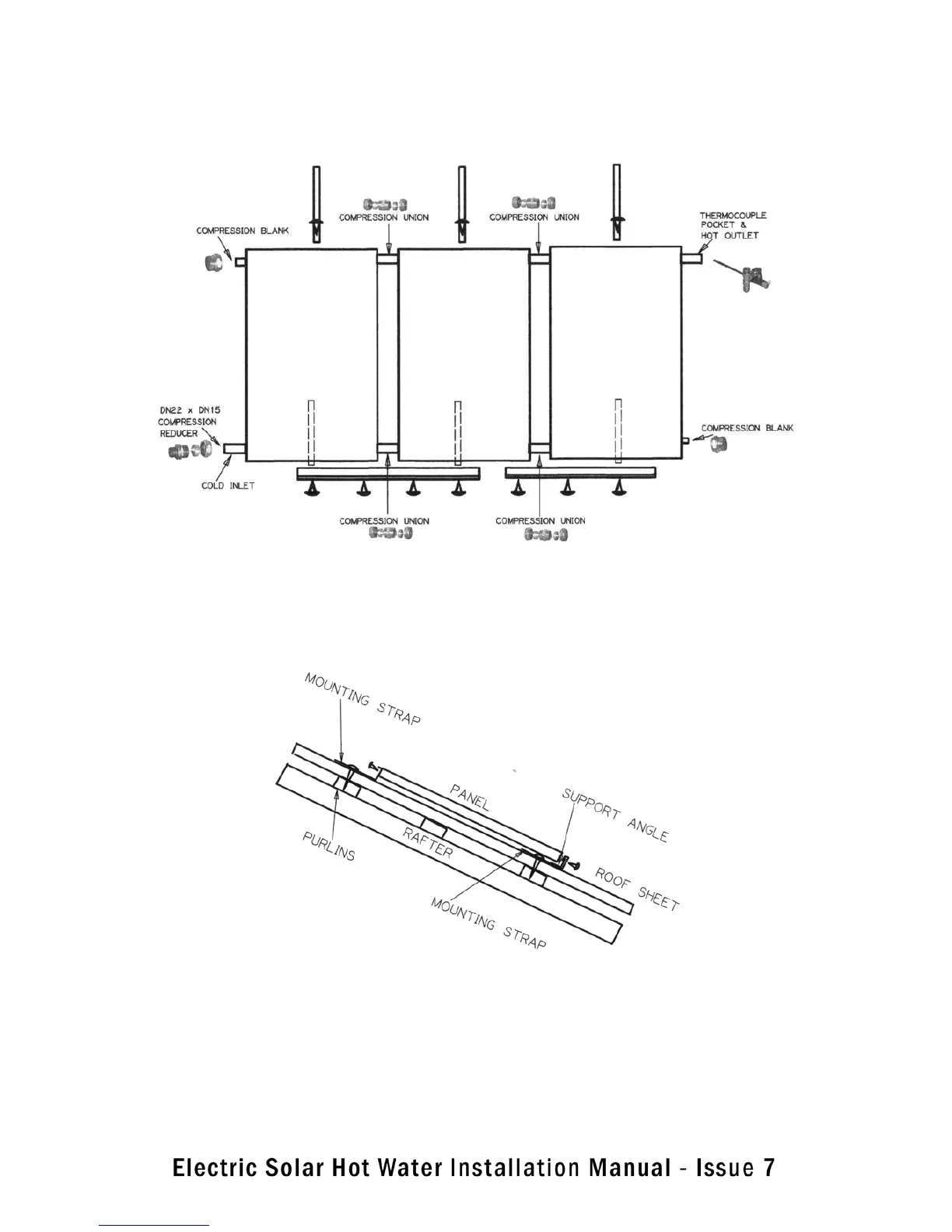
H5. INSTALLATION OF THE COLLECTORS
The procedure for solar collector installation is as follows:
1. Corrugated Iron Roof
Diagram of a Corrugated Iron roof
14
15