EasyManua.ls Logo

Pacific C Series - Safety and Clearances; Clearances to Combustibles

Pacific C Series
24 pages
Print Icon
To Next Page IconTo Next Page
To Next Page IconTo Next Page
To Previous Page IconTo Previous Page
To Previous Page IconTo Previous Page
Loading...
081112-24 VISTA INSERT-C 3
47 3/4”
36 3/4”
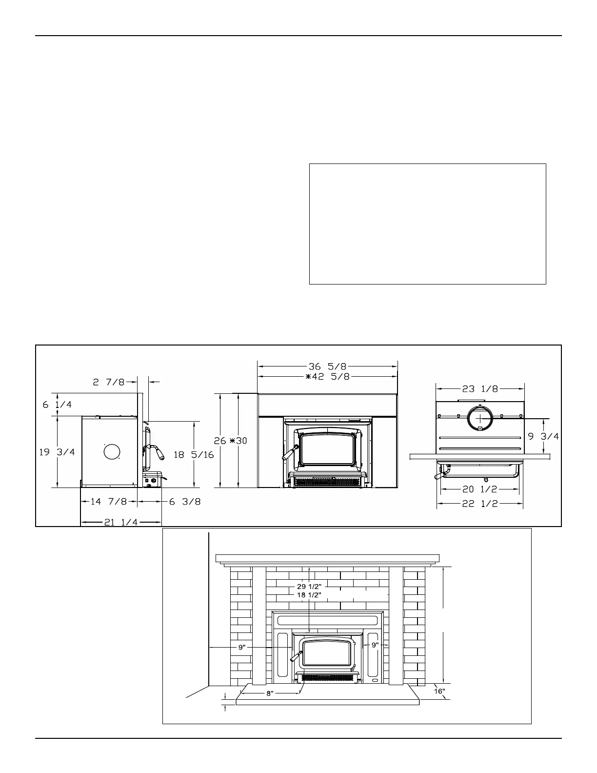
Clearances
Masonry or Factory Built Fireplace
The minimum required clearances to surrounding
combustible materials when installed into a masonry or
factory built  replace are listed below and in Fig. #1.
Minimum Clearances to Combustibles
(Measured From Insert Body)
Adjacent Sidewall ........................... 9 in. (229 mm.)
Mantel ........................................ 29.5 in. (749 mm.)
With Mantel Shield ............... 18.5 in. (470 mm.)
Top Facing ................................. 29.5 in. (749 mm.)
With Mantel Shield ............... 18.5 in. (470 mm.)
Side Facing ..................................... 9 in. (229 mm.)
Mantel or Top Facing
Side Facing
Hearth
Adjacent
Wall
with mantel shield
Fig. # 1
Safety
READ ALL INSTRUCTIONS BEFORE INSTALLING
AND USING THIS APPLIANCE. FAILURE TO FOLLOW
INSTRUCTIONS MAY RESULT IN PROPERTY
DAMAGE, BODILY INJURY, OR EVEN DEATH.
We strongly recommend that smoke detectors be installed.
If smoke detectors have been previously installed, you
may notice that they are operating more frequently. This
may be due to curing of stove paint or fumes caused by
accidentally leaving the  re door open. Do not discon-
nect the detectors. If necessary, relocate them to reduce
their sensitivity.
SAFETY NOTICE: If this stove is not properly installed, a
house  re may result. For your safety, follow the installa-
tion directions. Consult local building or  re officials about
restrictions and installation inspection requirements in
your area.
The services of competent installer, certi ed by the
Wood Energy Technical program (WETT) - in Canada,
Hearth Education Foundation (HEARTH) - in U.S.A. (or
equivalent) are strongly recommended.
Dimensions
with mantel shield
*Oversized Surround