EasyManua.ls Logo

Pacific PTV3606 - Electrical Adjustment Parts Location Guide; Wiring Connection Diagram

Default Icon
66 pages
Print Icon
To Next Page IconTo Next Page
To Next Page IconTo Next Page
To Previous Page IconTo Previous Page
To Previous Page IconTo Previous Page
Loading...
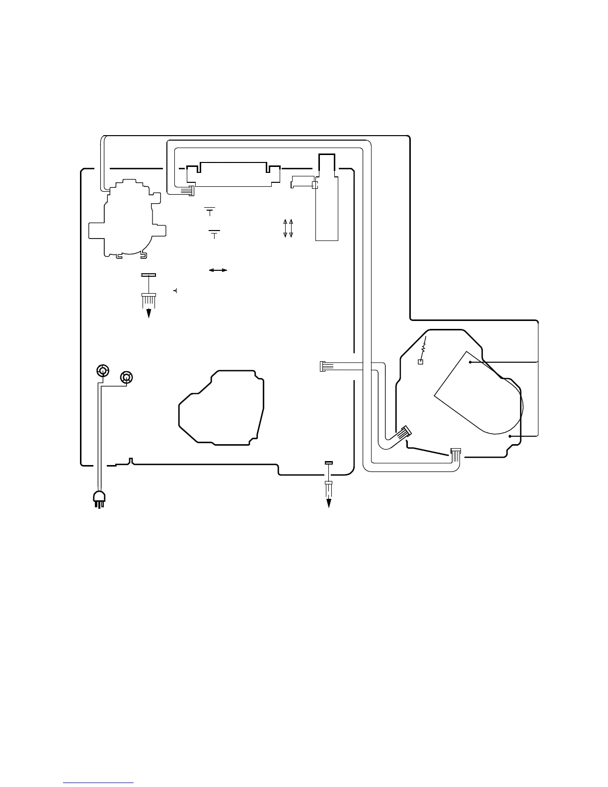
D-5
ELECTRICAL ADJUSTMENTS
4. ELECTRICAL ADJUSTMENT PARTS LOCATION GUIDE (WIRING CONNECTION)
MAIN PCB
CRT PCB
FB401
J701
TP002
TP003
CP101
TU001
CRT
CP401
VR501
SPEAKER
CP1001
VR401
VR420
W812
TP023
R805
CP803A
CD803
CP802B
CP802A
CD802
J801
CP806
AC IN
S501A
S801B
CP803B