EasyManua.ls Logo

Pacific PTV3606 - Page 58

Default Icon
66 pages
Print Icon
To Next Page IconTo Next Page
To Next Page IconTo Next Page
To Previous Page IconTo Previous Page
To Previous Page IconTo Previous Page
Loading...
ABC D E F GH
ABC D E F GH
2
1
3
4
5
6
7
8
2
1
3
4
5
6
7
8
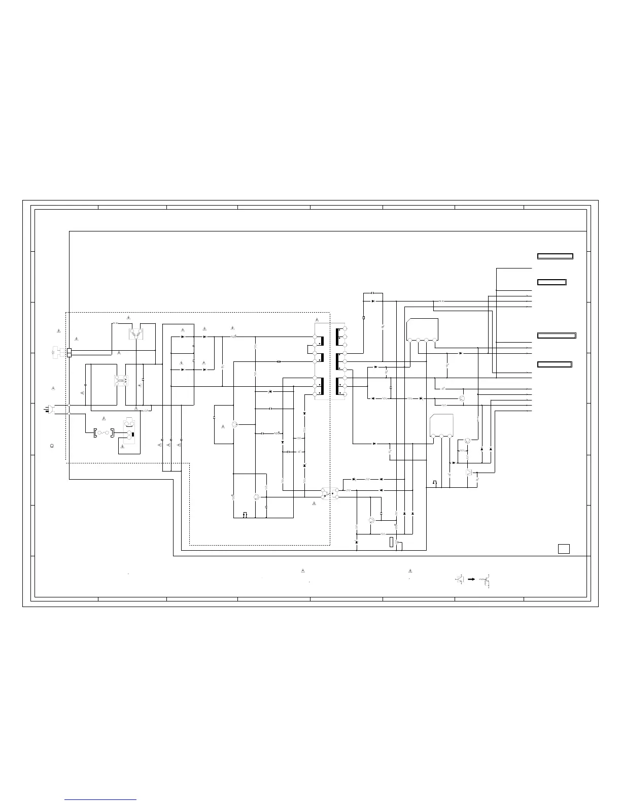
IC502
KIA7806API
REG.6V IC
123
IC504
LTV-817M-VB
FEED BACK
1
2
34
F501
50T040H
T4A_L_250V
FH501
EYF-52BC
FH502
EYF-52BC
21
L503
8R140018
DEGAUSS COIL
L501
0R7A223F24Y
COIL LINE FILTER
12
34
T501 8129110H
1
10
11
12
13
14
15
16
17
18
2
3
5
6
7
8
IC503
KIA78R09API
REG.9V IC
1234
SW501
ESB92S22B
1
2
34
PH
TH501_1
B59104-T80-B10
1
2
3
S
D
G
Q501
2SK2647-01MR
POWER
BLUE
BROWN
CD501
06444801
AC230-240V_50Hz
L502
W5T29X7.5X19
HS501
763WAA0162
HS502
763WAA0186
R502
220 1W
R516
11W
R503
0.22 1W
VR501
1K
+B ADJ
R518
2.2K
M+-1%
S501A
S501B
CP502
A1561WV2-2P
1
2
:SINCE THESE PARTS MARKED BY
CAUTION
DESCRIBED IN PARTS LIST ONLY
CRITICAL FOR SAFETY,USE ONES
ARE
DANS LA NOMENCLATURE DES PIECES
N’UTILISER QUE CELLS DECRITES
DANGEREUSES AN POINT DE VUE SECURITE
:LES PIECES REPAREES PAR UN ETANT
ATTENTION
Q507
KTC3198
FEED BACK
SWITCHING
Q502
KTC3203_Y
POWER
Q510
KRC103SRTK
P.CON SW
B504
W5RH3.5X5X1.0
B501
W4BRH3.5X6X1.0X2
CAUTION: DIGITAL TRANSISTOR
R526
100 1/4W
R519
100
R513
560 1/4W
R514
56K 1/2W
R512
470 1/4W
R520
1.5M 1/4W
R517
1.5M 1/4W
R510
2.2K 1/4W
R522
2.2K
R508 10K
R507
2.2K
R515
10K
R524
560 1/4W
R532
1K
R511
680 1/4W
R523
220 1/4W
R525
2.2K
1/4W
R501
1.5M 1/2W
C506_1
0.47 F
C517
0.0012KV R
C528
0.0022250V KX
C532
0.001250V KX
C503
0.0012KV B
C513
0.01 B
C518
0.01 B
C507
0.0012KV R
C504
0.0012KV B
C516_1
0.047 MMTV
C524
0.0033 B
C501_2
0.1275V ECQUL
C502_1
0.22275V ECQUL
C527
470P250V KX
C526_1
0.0033 B
W825
W851
W812
C508
10010V YK
C505
82400V USR
C519
150V KA
C514
1016V KA
C533
1016V KA
D505
1SS133
D512
SB140-EIC
D510
RU2AM-EIC
D501
RM11C-EIC
D502
RM11C-EIC
D503
RM11C-EIC
D504
RM11C-EIC
D518
1SS133
D513
21DQ09N
D511
1N4937
D514
1SS133
D521
1SS133
D516
21DQ09N
D515
SB140-EIC
D509
11E1-EIC
D523
1SS133
D517
11E1-EIC
D507
1SS133
WAS RECEIVED IN GOOD CONDITION AND PICTURE IS NORMAL.
WITH THE DIGITAL TESTER WHEN THE COLOR BROADCAST
NOTE:THE DC VOLTAGE AT EACH PART WAS MEASURED
D528
MTZJ5.6B
D508
MTZJ18B
D524
MTZJ3.6B
D525
MTZJ12B
D522
MTZJ18B
C515
47016V YK
C521
100160V YXF
C522
100016V YK
C525
22016V YK
Q511
KTA1281_Y
P.CON SW
Q506
2SA1037AK
P.FAIL
OF PRINTING AND SUBJECT TO CHANGE WITHOUT NOTICE
NOTE:THIS SCHEMATIC DIAGRAM IS THE LATEST AT THE TIME
GND
GND
P.CON+8V
+B
H.DRV+B
GND
P.CON+5V
P.CON+8V
TUNER_BT
GND
P.FAIL
P.CON+5V
AT+5V_DVDD
AT+5V_AVDD
POWER
G-10
G-9
NC NC
NC
0
0
0
0
0
0
0
5.6
7.7
6.2
9.1
8.1
0.3
12.3
NC
NC
NC
NC
IN
GND
OUT
6.008.0
5.0
4.4
0
0.1
4.7
11.2 8.0 0 5.0
PCB010
TMB557
TO DEFLECTION/CRT
TO SOUND AMP/FRONT AV
TO CHROMA/SIF/VIF/21PIN
FROM/TO MICON/TUNER
4.9
4.9
4.2
5.1
SW
OUT
IN
GND
BROWN
BLUE
234.7
6.7
0.3
6.7
0.3
0
270
270
13.06
9.7
163.9
258.8
237.7
45.9
19.1
POWER SCHEMATIC DIAGRAM
(MAIN PCB)