EasyManua.ls Logo

Palazzetti Ecofire Barbara - Page 87

Palazzetti Ecofire Barbara
96 pages
Print Icon
To Next Page IconTo Next Page
To Next Page IconTo Next Page
To Previous Page IconTo Previous Page
To Previous Page IconTo Previous Page
Loading...
ECOFIRE ALICE / BARBARA cod. 004770900 - 10/2010 87/96
1
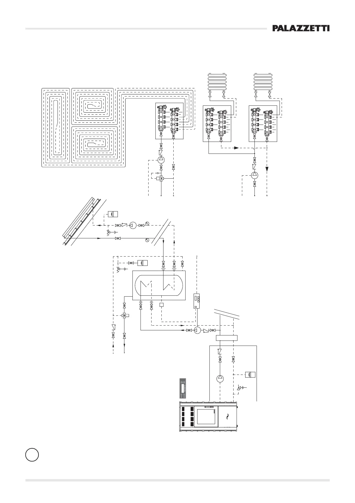
EQUILIBRATORE IDRAULICO
QUADRO DI
CONTROLLO
PALAZZETTI
ECOFIRE
P1
COLLETTORE
COLLETTORE
T
COLLETTORE
P2
P2
T
VS1
TT
P3
P4
PANNELLO SOLARE
CALDA
FREDDA
ACQUA SANITARIA
BOILER SANITARIO
QUADRO DI CONTROLLO
Pezzi compresi nel Kit Stufa
SCHEMA IMPIANTO A “VASO CHIUSO” PER IL RISCALDAMENTO PRODUZIONE DI ACQUA CALDA SANITARIA
DIAGRAM OF "CLOSED VESSEL" SYSTEM FOR HEATING AND HOT WATER PRODUCTION
ANLAGENSCHEMA MIT "GESCHLOSSENEM GEFÄSS" FÜR HEIZUNG UND WARMWASSERBEREITUNG
Importante - Importan - Wichtigt
- Il comando pompa della stufa a pellet deve essere diretto alla pompa P1 e P2 - The pellet stove pump command must be directed at pump P1 and P2 - Die Pumpensteuerung des Pellet-Ofens muss auf die Pumpe P1 und P2 gerichtet sein.
- Alla pompa P3 il consenso è indiretto perché controllato da un termostato del bollitore - Consensus for pump P3 is indirect because it is controlled by a thermostat in the boiler - Für die Pumpe P3 ist die Befähigung indirekt, da diese über einen Thermostat des
Kessels gesteuert wird.
- Per l’applicazione ad un impianto a pavimento, a zone, ecc.... deve essere previsto un circuito a media-alta temperatura (termosifoni , ecc....) da aprire in modo da dissipare 1900 Kcal/h (potenza minima) - For application to a floor system, zone system, etc....
there must be a medium/high temperature circuit (radiators, etc...) to be opened so as to dissipate 1900 Kcal/h (minimum power) - Für die Anwendung mit einer Fußboden-, Zonen-, usw. Heizanlage . muss ein Mittel-/Hochtemperatur Heizkreis (Heizkörper, usw.... )
vorgesehen werden, der geöffnet werden muss, um 1900 kcal/h (Mindestleistung) zu dissipieren.
- L’impianto solare prevede una centralina di controllo specifica - The solar-panel system features a specific control panel - Für die Solaranlage ist ein spezifisches Steuergerät erforderlich.
- Per l’applicazione di un controllore climatico contattare il nostro uff tecnico per identificare la soluzione impiantistica specifica - For the application of a thermostat, contact our technical office in order to identify a specific solution - Für die Anbringung eines
Klimareglers wenden Sie sich bitte an unser technisches Büro, um die für Sie optimale Anlagenlösung ausarbeiten zu können.

Table of Contents

Related product manuals