EasyManua.ls Logo

Palazzetti Ecofire Barbara - Page 89

Palazzetti Ecofire Barbara
96 pages
Print Icon
To Next Page IconTo Next Page
To Next Page IconTo Next Page
To Previous Page IconTo Previous Page
To Previous Page IconTo Previous Page
Loading...
ECOFIRE ALICE / BARBARA cod. 004770900 - 10/2010 89/96
3
CH
4
COLLETTORE
COLLETTORE
T
COLLETTORE
P3
P3
T
VS1
TT
P4
P5
P2
PANNELLO SOLARE
CALDA
FREDDA
ACQUA SANITARIA
BOILER SANITARIO
QUADRO DI CONTROLLO
EQUILIBRATORE IDRAULICO
QUADRO DI
CONTROLLO
PALAZZETTI
ECOFIRE
P1
Pezzi compresi nel Kit Stufa
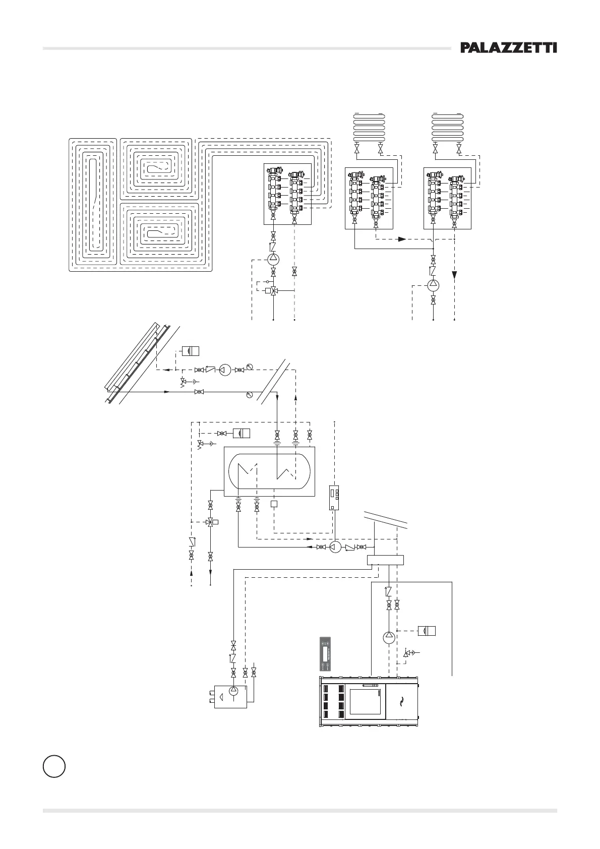
SCHEMA IMPIANTO A “VASO CHIUSO” PER IL RISCALDAMENTO E LA PRODUZIONE DI ACQUA SANITARIA IN
PARALLELO AD UNA CALDAIA
DIAGRAM OF "CLOSED VESSEL" SYSTEM FOR HEATING AND HOT WATER PRODUCTION IN PARALLEL WITH A BOILER
ANLAGENSCHEMA MIT "GESCHLOSSENEM GEFÄSS" FÜR DIE BRAUCHWASSERBEREITUNG PARALLEL ZU EINEM HEIZKESSEL
Importante - Important - Wichtig
- L’acqua calda sanitaria viene prodotta dalla caldaia a gas - The hot water is produced by the gas-powered boiler - Die Warmwasserbereitung erfolgt durch einen Gaskessel.
- La stufa a pellet da il consenso alla pompa P1, la pompa P2 è integrata nella caldaia a gas - The pellet stove gives consensus to pump P1, while pump P2 is integrated in the gas boiler - Der Pellet-Ofen befähigt die Pumpe P1, die Pumpe P2 ist im Gaskessel eingebaut
- La pompa P3 è comandata in parallelo alla P1 e da un termostato sull’equilibratore - Pump P3 is controlled in parallel with P1 and by a thermostat on the equaliser - Die Pumpe P3 wird parallel zur Pumpe P1 gesteuert, und zwar über einen Thermostat am Trimmer
- La pompa P4 riceve il consenso dal termostato del bollitore per uso sanitario - Pump P4 receives consensus from the hot water boiler thermostat - Die Pumpe P4 wird über den Thermostat des Kessels befähigt
- Per l’applicazione ad un impianto a pavimento, a zone, ecc.... deve essere previsto un circuito a media-alta temperatura (termosifoni, ecc....) necessario a dissipare 1900Kcal/h (potenza minima) - For application to a floor system, zone system, etc.... there must be a medium/
high temperature circuit (radiators, etc....) necessary in order to dissipate 1900Kcal/h (minimum power) - Für die Anwendung mit einer Fußboden-, Zonen-, usw. Heizanlage muss ein für die Dissipierung von 1900 kcal/h (Mindestleistung) erforderlicher Mittel-/Hochtemperatur
Heizkreis (Heizkörper, usw.... ) vorgesehen werden
- L’utilizzo di pannelli solari prevede una centralina di controllo specifica - The use of solar panels entails a specific control panel - Für den Gebrauch von Solarplatten muss ein spezifisches Steuergerät vorgesehen werden
- Per l’applicazione di un controllore climatico contattare il nostro uff tecnico per identificare la soluzione impiantistica specifica - For the application of a thermostat, contact our technical office in order to identify a specific solution - Für die Anbringung eines Klimareglers wenden
Sie sich bitte an unser technisches Büro, um die für Sie optimale Anlagenlösung ausarbeiten zu können.

Table of Contents

Related product manuals