EasyManua.ls Logo

Panasonic CS-A24BD2P - Page 193

Panasonic CS-A24BD2P
324 pages
Print Icon
To Next Page IconTo Next Page
To Next Page IconTo Next Page
To Previous Page IconTo Previous Page
To Previous Page IconTo Previous Page
Loading...
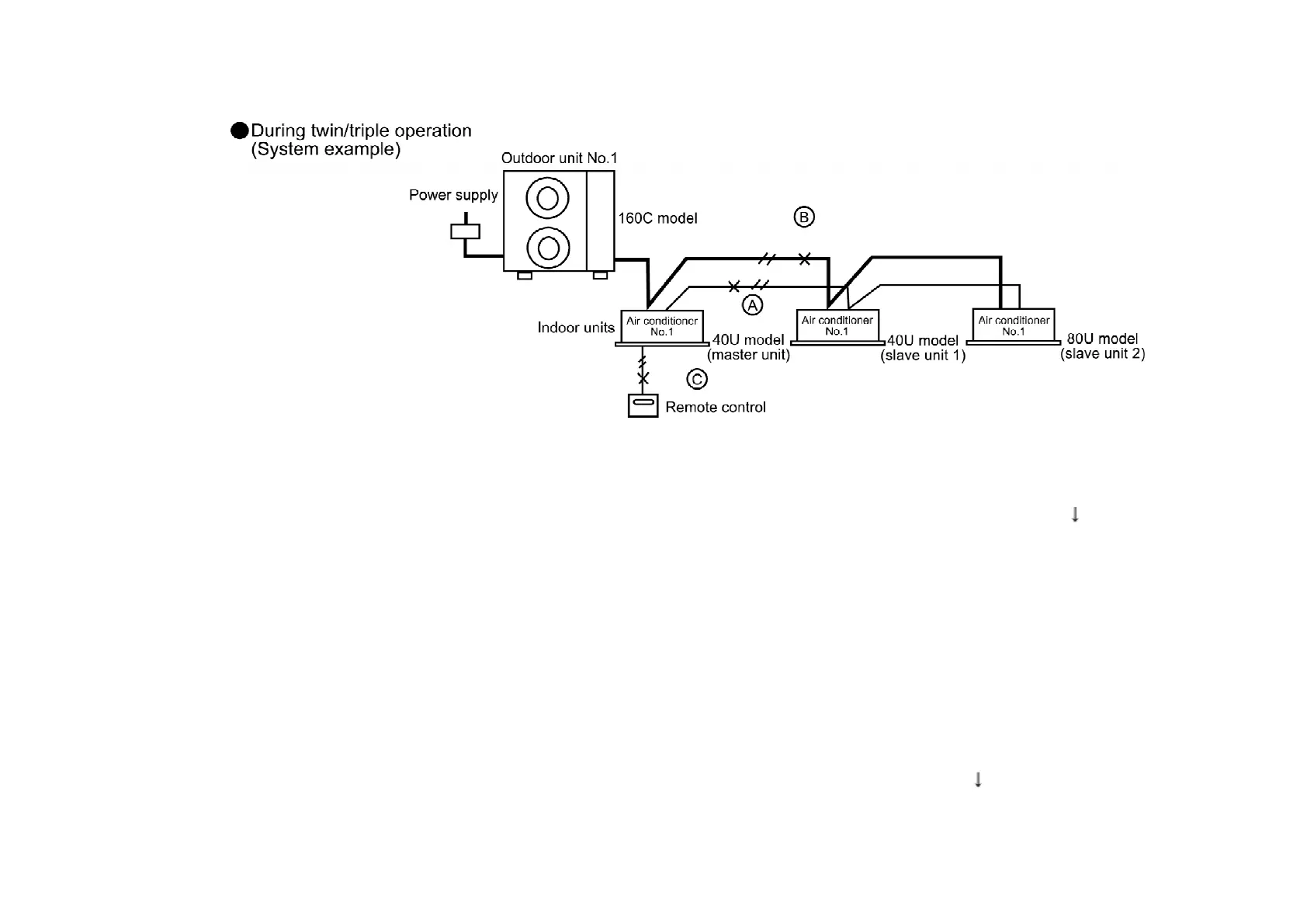
1. The main power is turned on while the transmission wires between the indoor unit(s) are not
connected (open circuit at section A) / Symptom: / Nothing abnormal appears on the remote
control display. If operation is then started in this condition, the combination of the 160C outdoor
unit and the 40U indoor unit (master unit) will cause abnormal operation to occur. / / If
operation continues, an abnormality will occur on the refrigeration cycle and operation will stop.
- Remote control... CHECK flashes
- Indoor unit (master)... The LEDs on the printed circuit board flash and operation stops
- Indoor unit (slave). LED1 on the printed circuit board illuminates and the unit does not
operate at all
- Outdoor unit. The LEDs on the printed circuit board flash and operation stops /
2. The main power is turned on while the power supply wires between the indoor unit(s) are not
connected (open circuit at section B) / Symptom: / Same as above. If operation continues, an
abnormality will occur on the refrigeration cycle and operation will stop. /
193

Other manuals for Panasonic CS-A24BD2P

Related product manuals