EasyManua.ls Logo

Panasonic CS/CU-TU18AKY Series

Panasonic CS/CU-TU18AKY Series
32 pages
To Next Page IconTo Next Page
To Next Page IconTo Next Page
To Previous Page IconTo Previous Page
To Previous Page IconTo Previous Page
Loading...
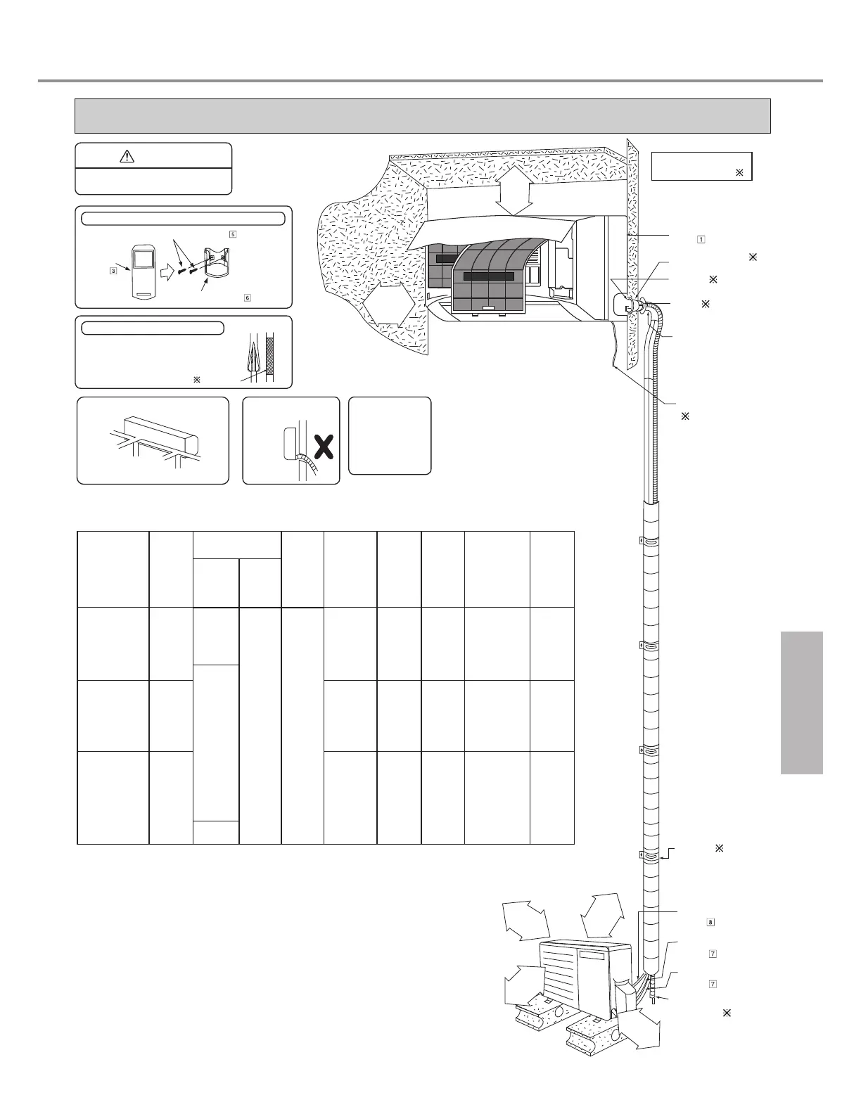
Indoor / Outdoor Unit Installation Diagram
English Installation instruction
17
dneb ot ton
noitn
e
ttA
up drain hose
n
oit
c
erid gnipi
P
(Front side)
Right
Right
Rear
Right
bottom
Left
Rear
Left bottom
Left
(Left and right are identical)
Installation
plate
Sleeve ( )
Bushing-Sleeve ( )
Bend the pipe as
closely on the wall
as possible, but be
careful that it doesn’t
break.
Saddle ( )
Additional
drain hose ( )
Gas side
piping
Connection
cable
Putty ( )
(Gum Type Sealer)
Liquid side
piping
Power supply cord
( )
It is advisable to
avoid more than 2
blockage directions.
For better ventilation
& multiple-outdoor
installation, please
consult authorized
dealer/specialist.
Installation parts you
should purchase (
)
300
mm
or more
100 mm
or more
100 m
m
or more
1000 mm
or more
5
0 mm
or more
WARNING
Flare connection only at outside
of building
Carry out insulation after
checking for gas leaks and
secure with vinyl tape.
Vinyl tape
Insulation of piping connections
Remote control holder
Remote control holder xing screws
Remote
control
Attaching the remote control holder to the wall
50 mm
or more
This illustration is for explanation
purposes only.
The indoor unit will actually face
a different way.
Table A
Model
Capacity
W (HP)
Piping size
Std.
Length
(m)
Max.
Elevation
(m)
Min.
Piping
Length
(m)
Max.
Piping
Length
(m)
Additional
Refrigerant
(g/m)
Piping
Length
for add.
gas
(m)
Gas Liquid
6.35mm
(1/4")
5
KU12 Series
YU12 Series
SU12 Series
NU12_4 Series
NU12_5 Series
NU18 Series
KU18 Series
YU18 Series
SU18 Series
KZ18 Series
TU18 Series
KU24 Series
YU24 Series
KZ24 Series
SU24 Series
NU24 Series
1.5HP
2.0HP
2.5HP
12.7mm
(1/2")
9.52mm
(3/8")
15.88mm
(5/8")
5 3 10 10 7.5
10 3 15 15 7.5
10 3 15 20 7.5
Example: For KU12**
If the unit is installed at 10 m distance, the quantity of additional refrigerant should be
25 g .... (10-7.5) m x 10 g/m = 25 g.
(
*
) If holder at the rear of chassis
(Refer column Indoor Unit Installation” )
need to be used to prop up the unit,
this distance shall be 65 mm or more.

Related product manuals