EasyManua.ls Logo

Panasonic CS/CU-TU18ZKY Series - Indoor Unit Mounting Plate Installation

Panasonic CS/CU-TU18ZKY Series
32 pages
To Next Page IconTo Next Page
To Next Page IconTo Next Page
To Previous Page IconTo Previous Page
To Previous Page IconTo Previous Page
Loading...
18
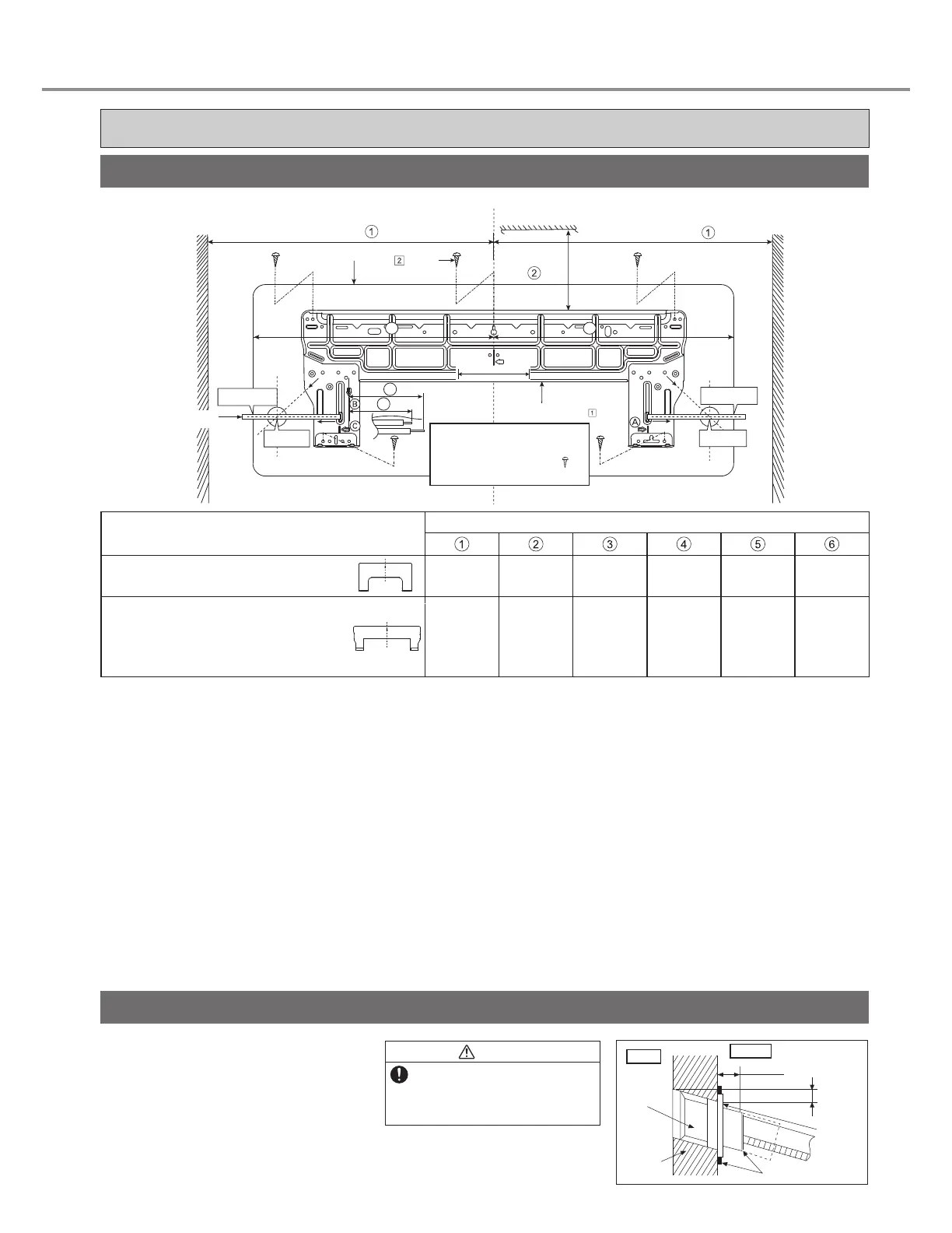
How to Fix Installation Plate
To Drill a Hole in the wall and install a sleeve of piping
Installation instructions
Indoor Unit
The mounting wall shall be strong and solid enough to prevent it from vibration.
Model
Dimension
KU12 Series, SU12 Series, NU12 Series,
SU18_T Series, YU12 Series
NU18 Series, KU18 Series, KZ18 Series,
TU18 Series, KU24 Series, SU24 Series,
NU24 Series, KZ24 Series, YU18 Series,
YU24 Series
490 mm
590 mm
82 mm
82 mm
439 mm
539 mm
432 mm
532 mm
43 mm
169 mm
95 mm
219 mm
3
4
5
6
Wall
Wall
Wall
Installation plate
screw
More than
More than
Indoor unit
241.5 mm
128 mm
241.5 mm
128 mm
128 mm
More than
For best strength of INDOOR
unit installation, it is highly
recommended to locate “
at 5 position as shown.
Measuring
Tape
The center of installation plate should be at more than at right and left of the wall.
The distance from installation plate edge to ceiling should more than .
From installation plate center to unit’s left side is .
From installation plate center to unit’s right side is .
: For left side piping, piping connection for liquid should be about from this line.
: For left side piping, piping connection for gas should be about from this line.
1 Mount the installation plate on the wall with 5 screws or more (at least 5 screws).
(If mounting the unit on the concrete wall, consider using anchor bolts).
• Always mount the installation plate horizontally by aligning the marking-off line with the thread and using
a level gauge.
2 Drill the piping plate hole with ø70 mm hole-core drill.
• Line according to the left and right side of the installation plate. The meeting point of the extended line is
the center of the hole. Another method is by putting measuring tape at position as shown in the diagram
above.
The hole center is obtained by measuring the distance namely 150 mm (1.0~1.5HP) for left and right hole
respectively or 210 mm for left hole and 150 mm for right hole (2.0~2.5HP).
• Drill the piping hole at either the right or the left and the hole should be slightly slanting to the outdoor side.
B
1 Insert the piping sleeve to the hole.
2 Fix the bushing to the sleeve.
3 Cut the sleeve until it extrudes
about 15 mm from the wall.
4 Finish by sealing the sleeve with putty
or caulking compound at the final stage.
15 mm
Putty or caulking
compound
ø70 mm
through
hole
Indoor
Outdoor
Sleeve
for tube
assembly
Approx.
5 - 7 mm
Bushing
for tube
assembly
Wall
CAUTION
When the wall is hollow, please be
sure to use the sleeve for tube
assembly to prevent dangers caused
by mice biting the connection cable.

Related product manuals