EasyManua.ls Logo

Panasonic CS-ME7CKPG - Outdoor Unit (Cu-3 E23 Cbpg;Cu-4 E27 Cbpg)

Panasonic CS-ME7CKPG
121 pages
Print Icon
To Next Page IconTo Next Page
To Next Page IconTo Next Page
To Previous Page IconTo Previous Page
To Previous Page IconTo Previous Page
Loading...
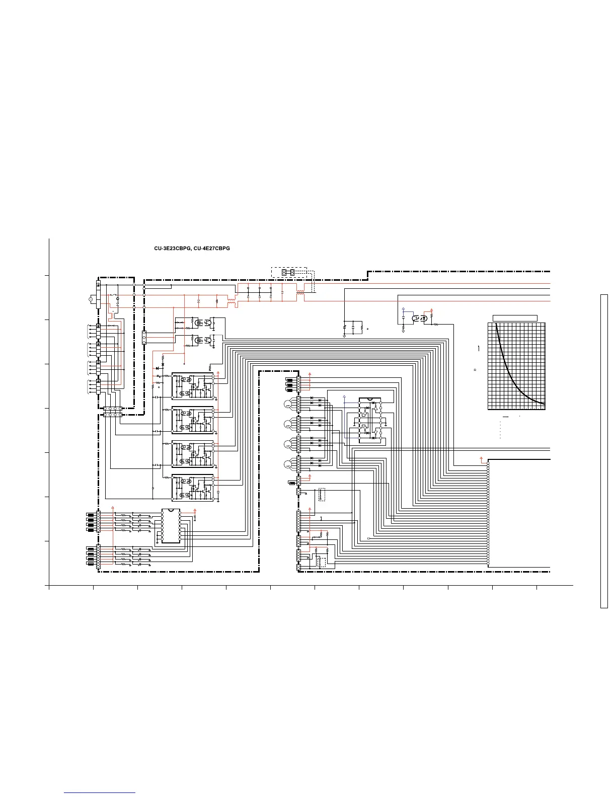
15.4. OUTDOOR UNIT (CU-3E23CBPG/CU-4E27CBPG)
A
B
C
D
E
F
G
H
123456789101112
3, 4-ROOM OUTDOOR 1/2
R49 33K
AC230V
50Hz
L
N
JP101
FU1
AC250V
30A
L101
50 H
SA1
HS
HR
HE
8
6
2
4
3
1
E (GRN/YLW)
ECN1 (GRN)
(RED)
AC1
(BLK)
AC2
S15
0IS15A
PC814A/X1
JP5
JP1
R44
91K 2W
R43
1K
1
2
4
3
0IS15B
PC814A/X1
C40
0.001
0IS16A
PC814A/X1
R46
91K 2W
1
2
4
3
0IS16B
PC814A/X1
C41
0.001
R47
R104
10K
R45
1K
C111
AC250V
0.001
HIC3
AS1701768
R11
15K 1W
R9
18K 2W
D12
GP10-4005E
C11
220V100
ZD1
1ZC56
R10
100K
R105
200
1/2W
8
6
2
4
3
1
HIC4
AS1701768
R12
15K 1W
HIC5
AS1701768
R13
15K 1W
8
6
2
4
3
1
HIC6
AS1701768
R14
15K 1W
8
6
2
4
3
1
C112
AC250V
0.001
C113
AC250V
0.001
C114
AC250V
0.001
C110
0.1
S92
IC7
TC4051BP
X41
9
C
X5
2
C0M
3
X7
4
X6
5
INH
6
V
EE
7
V
SS
8
10
B
11
A
12
X3
13
X0
14
X1
15
X2
16
V
DD
S93
R50 33K
R51 33K
R52 33K
C45 16V10
C46 16V10
C47 16V10
C48 16V10
R53 33K
R54 33K
R55 33K
R56 33K
C49 16V10
C50 16V10
C51 16V10
C52 16V10
C44
100P
J10A
S1
S4
S6
J1A
S91
S23-4
S23
S22
S21
S20
S90
D18
D19
D20
D21
D22
D23
D24
D25
D26
D27
D28
D29
D30
D31
D32
D33
D18 - 33
RMPG06G
J1
J12
R2
10K
R60
10K
R57
10K
R1
10K
J10
1
2
3
4
5
6
7
8 9
10
11
12
13
14
15
16
IC6
TD62084AP
C1
AC250V
1
V2
780NR-14D-201
V3
780NR-14D-201
L1
6mH
S104
S103
C38
50V
1
C39
0.1
R42
536
C3
AC250V
0.01
C4
AC250V
0.01
C5
AC250V
0.01
C6
AC250V
0.01
C7
AC250V
0.01
C8
AC250V
0.01
C37
0.001
1
2
4
3
R38
20K
0IS12B
PC817C/D
R37
10K
R36
1K
0IS12A
PC817C/D
C2
AC250V
2.2
D(4)
B(2)
C(3)
A(1)
L4
1.5 mH
3
18
20
59
61
36
38
40
44
46
48
50
52
63
65
67
69
75
73
71
15
43
41
39
37
45
47
49
51
53
19
21
23
17
25
27
33
35
31
29
42
TP1
MR8
HIC1
M68954
5V
5V
5V
5V
5V
5V
12V
5V
1
2
3
1
2
3
1
2
3
1
2
3
X1M
X2M
X3M
X4M
X5M
OUTDOOR AIR
TEMP. SENSOR
HEAT EXCHANGER
TEMP. SENSOR
DISCHARGE
TEMP. SENSOR
M
EXPANSION
VALVE COIL A
M
EXPANSION
VALVE COIL B
M
EXPANSION
VALVE COIL C
M
EXP
*
ANSION
VALVE COIL D
HEAT SINK
TEMP. SENSOR
5V
1
S11
357
1357
S10
1
3
5
1
2
3
4
5
6
7
8
1
2
3
4
5
6
7
8
9
GAS PIPE TEMP.
SENSOR
LIQUID PIPE TEMP.
SENSOR
(UNIT-A)
To INDOOR
UNIT-A
To INDOOR
UNIT-B
To INDOOR
UNIT-C
To INDOOR
UNIT-D
(UNIT-B)
(UNIT-C)
(UNIT
*
*
-D)
(UNIT-A)
(UNIT-B)
(UNIT-C)
(UNIT-D)
1
2
3
4
5
6
1
2
3
4
5
6
1
2
3
4
5
6
1
2
3
4
5
6
1
2
3
4
5
6
3
2
1
1
2
1
2
3
4
5
6
7
8
1
2
3
4
1
2
3
4
1
2
1
22
1
17.5VACT
+5V
PAM ON/OFF
Heating Mode Operation
Cooling Operation Mode
Power
Data Transmission A
Data Reception A
Data Transmission B
Data Reception B
Data Transmission C
Data Reception C
Data Transmission D
Data Reception D
Gas piping Temperature
Gas/Liquid piping Temperature
Gas/Liquid piping Temperature
Gas/Liquid piping Temperature
Outdoor Air Temperature
Heat Exchanger Temperature
Compressor Discharge Temperature
Heat Sink Temperature
Expansion Valve 1
Expansion Valve 2
Expansion Valve 3
Expansion Valve 4
Expansion ValveA
Expansion Valve B
Expansion Valve C
Expansion Valve D
Check Valve
Fixed Frequency Mode
TERMINAL BOARD
*
Mark parts are not
equiped in the
CU-3E23CBPG.
Outdoor air temp
Heat exchanger temp
Gas pipe temp.a,b,c,d,
Liguid pipe temp.a,b,c,d,
Discharge temp
Heat sink temp
Sensor Characteristics
0
5
10
15
20
25
30
35
40
45
50
55
60
65
70
75
80
85
90
95
100
105
110
115
120
-20 -10 0 10 20 30 40 50
TEMP( C)
R
E
S
I
S
T
A
N
C
E
k
( )
*
CS-ME7CKPG / CS-ME10CKPG / CS-ME12CKPG / CS-ME14CKPG / CS-ME18CKPG / CU-2E15CBPG / CU-2E18CBPG / CU-3E23CBPG / CU-4E27CBPG
109

Table of Contents

Related product manuals