EasyManua.ls Logo

Panasonic CU-A123KE - Page 58

Panasonic CU-A123KE
58 pages
Print Icon
To Previous Page IconTo Previous Page
To Previous Page IconTo Previous Page
Loading...
12345678910111213141516171819
G
F
E
D
C
B
A
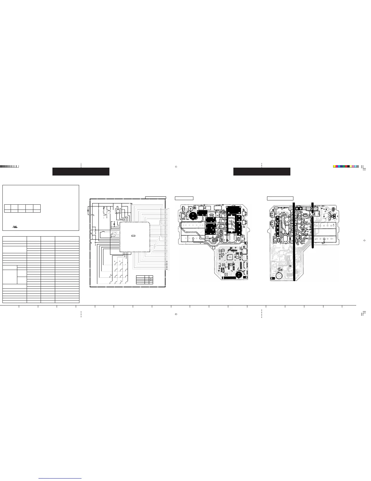
PRINT PATTERN
INDOOR UNIT PRINTED CIRCUIT BOARD
TOP VIEW
Name
Sleep Mode Waiting
Sleep Mode Operation
Real Timer
Time Delay Safety Control
Forced Operation
Time Save Control
Anti-Freezing Control
Mode Jugdement
Soft Dry
Deodorizing Control
Comp. Reverse Rotation Detection
Comp./Fan motor Delay Timer
SLo Timer
Intake Air Anti-Freezing Prevention
POWERFUL MODE
Random FM Timer (ECONOMY Mode)
Random Auto Restart Control
Off
On
Cooling
Soft Dry
Remarks
SOFT DRY: 10 min. operation
Comp. ON 5 min. and above
Time
1 hr.
8 hrs.
1 hr.
10 min.
1 min.
2 min. 58 sec.
60 sec.
7 min.
4 min.
20 sec.
6 min.
10 min.
40 sec
70 sec.
20 sec.
180 sec.
40 sec.
360 sec.
5 min.
2 min.
1.6 sec.
8 sec.
16 min.
15 min.
5 sec.
0 ~ 150 sec.
Before using the circuit diagram, read the following carefully.
* Indications for capacitor
a. Unit µ ....µF P ....pF
b. Type Not indicated ...
ceramic capacitor
(S) ..........S series aluminium
electrolytic capacitor
(Z) .......... Z series aluminium
electrolytic capacitor
(SU) ....... SU series aluminium
electrolytic capacitor
(P) ..........
P series polyester system
(SXE) ..... SXE series aluminium
electrolytic capacitor
(SRA)...... SRA series aluminium
electrolytic capacitor
(KME)......KME series aluminium
electrolytic capacitor
* Voltage measurement
Voltage has been measured with a digital
tester when the indoor fan is set at high fan
speed under the following conditions without
setting the timer.
Use them for servicing.
Voltage indication is in Red at all operations.
* Diode without indication ..............MA165
* Circuit Diagram is subject to change without
notice for further development.
Discharge air
temperature
17°C
Pipe
temperature
15°C
Intake air
temperature
27°C
Temperature
setting
16°C
Cooling
Test mode
6 sec.
48 sec.
1 min.
10 sec.
1 sec.
0 sec.
0 sec.
42 sec.
0 sec.
0 sec.
36 sec.
60 sec.
4 sec.
7 sec.
2 sec.
18 sec.
4 sec.
36 sec.
30 sec.
0 sec.
0 sec.
8 sec.
96 sec.
15 sec.
5 sec.
0 sec
( )
When test point
Short-circuited
How to use electronic circuit diagram
* Indications for resistance
a. K .... k M ... M
W... watt Not indicated .... 1/4W
b. Type
Not indicated .......... carbon resister
Tolerance±5%
.......... metal oxide resister
Tolerance±1%
TIMER TABLE
ELECTRONIC CIRCUIT DIAGRAM
REMOTE CONTROL
CS-A73K/A93K/A123K CS-A73K/A93K/A123K CS-A73K/A93K/A123K CS-A73K/A93K/A123K
PRINT PATTERN
INDOOR UNIT PRINTED CIRCUIT BOARD
BOTTOM VIEW
33 34 35 36 37 38 39 40 41 42 43 44 45 46 47 48
16151413121110987654321
32
31
30
29
28
27
26
25
24
23
22
21
20
19
18
17
49
50
51
52
53
54
55
56
57
58
59
60
61
62
63
64
IC1
XOSC2
XOSC1
VSS
RESET
PC3
PC2
PC1
PC0
PA0
PA1
PA2
PA3
PA4
PA5
PA6
PA7
(POWERFUL)
SELF
DIAGNOSIS
SLEEP TIMER
ON
TIMER
CANCEL
AIR SWING
AUTO
FAN SPEED
(TEMP )
TIMER
OFF
TIMER
SET
AIR SWING
MANUAL
(OFF / ON)
aI
ECONOMY MODE
(TEMP )
CLOCK
PC4
PC5
PC6
PC7
BZ
RMO
SEG32
SEG31
SEG30
SEG29
SEG28
SEG27
SEG26
SEG25
SEG24
SEG 23
SEG 7
SEG8
SEG9
SEG10
SEG11
SEG12
SEG13
SEG14
SEG15
SEG16
SEG17
SEG18
SEG19
SEG20
SEG21
SEG22
OSC2
OSC1
VDD
VLCD1
VLCD2
VLCD3
COM0
COM1
COM2
SEG0
SEG1
SEG2
SEG3
SEG4
SEG5
SEG6
SW2
J-B
C4
8P
C5
8P
R12
51k
R6
300
R1
100k
C6
0.1µ
C7
0.01µ
C8
0.01µ
C9
0.01µ
R9
200k
R8
200k
R7
200k
X1
3.52Hz
(33P x 2)
+
C2
47µ
R3
51
R4
22k
R2
1.5k
R5
2.2
1/8W
SID1003BQ
2SD602
Q2
Q1
2SB710
R11
510k
R03
RESET
SW2 J-B
0
1
2
3
WIRELESS REMOTE CONTROL
CN1
LED1
47µ
C1
+
(NPO)
(NPO)
32.768kHz
X2
Remote Controller No.
SW1
DOOR OPEN/CLOSE
(CLOSE:ON)
51k
R14
R13
51k
LIQUID CRYSTAL DISPLAY
OFF
ON
OFF
ON
SHORT
SHORT
x2
S-A73KE (ECD) 6/19/00, 10:53 AM2

Related product manuals