EasyManua.ls Logo

Panasonic CU-A73KE - Wiring Diagram

Panasonic CU-A73KE
58 pages
Print Icon
To Next Page IconTo Next Page
To Next Page IconTo Next Page
To Previous Page IconTo Previous Page
To Previous Page IconTo Previous Page
Loading...
– 15 –
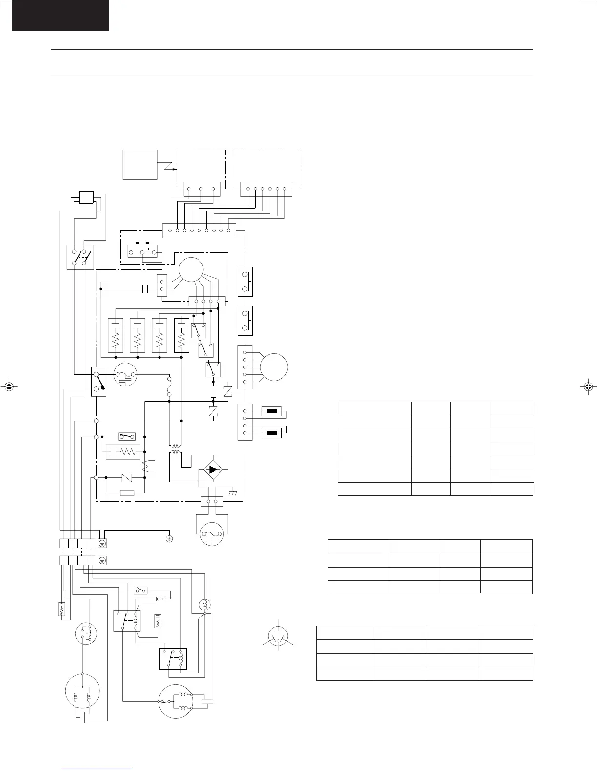
MAC9512086C2
CS-A73KE
Wiring Diagram
REMARKS:
B : BLUE
BR : BROWN
BL : BLACK
W : WHITE
R : RED
O : ORANGE
P : PINK
Y/G : YELLOW/
GREEN
MODEL
CONNECTION
YELLOW-BLUE
YELLOW-BROWN
BROWN-ORANGE
ORANGE-WHITE
WHITE-RED
Resistance of Indoor Fan Motor Windings
CS-A73KE
CWA92288
536.5
77.1
43.9
42.7
111.4
CS-A123KE
CWA92290
457.4
56.1
61.2
25.3
142.5
CS-A93KE
CWA92296
450.8
56.9
74.2
37.3
122.6
MODEL
CONNECTION
BLUE-YELLOW
YELLOW-RED
Resistance of Outdoor Fan Motor Windings
CU-A73KE
CWA95245
260.5
446.0
CU-A123KE
CWA95381
174.5
331.0
CU-A93KE
@
@
@
MODEL
CONNECTION
C-R
C-S
CU-A73KE
2RS127D3CA04
4.023
8.803
CU-A123KE
2KS224D5CA02
2.211
2.924
CU-A93KE
2PS174D3AA02
2.798
5.432
Resistance of Compressor Windings
CS-A73KE / CU-A73KE
CS-A93KE / CU-A93KE
CS-A123KE / CU-A123KE
YELLOW
REDBLUE
COMPRESSOR TERMINAL
BRAND MARK
CN-FUSE(B)
CR4
31
RR
R
R
(PIPE TEMP.)
SENSOR
AC (W)
ZNR1
(TEST RUN)
Y
7
MOTOR
BL
BL
CONTROLLER
ELECTRONIC
1
CN-C
(G)
ELECTRONIC CONTROLLER
4
31
2
CONTROL No.
REMOTE
AB
BR
R
O
Y
P
Y/G
B
R
W
R
BR
O
W
531
W
BR
FUSE T2A L250V
L
P
MOTOR
FAN
SSR1
CAPACITOR
CN-FM(G)
ZNR2
RY-SHI
RY-H
RY-PWR
TRANSFORMER
PUMP DOWN SW
AUTO SW
CN-RCV (W)
(RECEIVER)
ELECTRONIC
CONTROLLER
WIRELESS
REMOTE
CONTROL
CN-DISP(W)
DISPLAY LAMP
POWER SUPPLY CORD
BR
B
Y/G
W
W
W
W
SENSOR
(INTAKE TEMP.)
1234 54321
CN-TH(Y) CN-STM(G)
FAN
4321
234
MAIN SW
CN-DISP(W)
THERMAL
FUSE
(102°C)
THERMAL
FUSE
(113°C)
RY-M
CR3
CR1
CR2
1
3
B
97658
123 56
W
W
W
W
W
J9990083
CS/CU-A73KE/A93KE/A123KE
A73KE07.DWG
220-240V, 50/60Hz
428
76
67
824
421 3
312 4
4
1
ZNR3
SSR2
FM(B)
CR5
RY-HOT
HOT(R)
CT1
BL W
RB
W
GRY
BL
BL
BL
BL
BL
TRS
BL
BL
GRY
GRY
BL
R
BR
B
B
B
B
R
CAPACITOR
FAN MOTOR
Y
Y
W
R
B
OVER LOAD
PROTECTOR
MAGNETIC RELAY A
MAGNETIC RELAY B
CAPACITOR
ELECTROLYTIC
REVERSING VALVE
COIL
CAPACITOR
ELECTROLYTIC
TERMINAL
INDOOR UNIT
OUTDOOR UNIT
TERMINAL
CAPACITOR
COMPRESSOR
Untitled-9 6/19/00, 10:59 AM15

Related product manuals