EasyManua.ls Logo

Panasonic CU-B43DBE8 - Refrigerant Additional Charge

Panasonic CU-B43DBE8
156 pages
Print Icon
To Next Page IconTo Next Page
To Next Page IconTo Next Page
To Previous Page IconTo Previous Page
To Previous Page IconTo Previous Page
Loading...
49
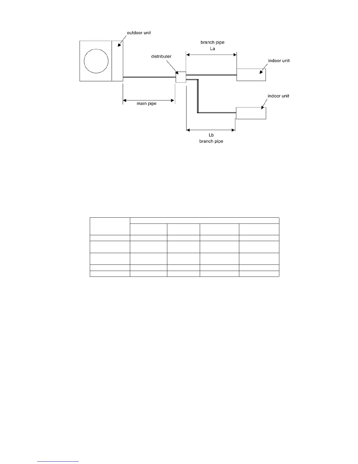
10.2. Refrigerant additional charge
1. Piping installation by standard piping
At the time of shipment from the factory, this unit is charged with enough refrigerant for an equivalent pipe length of 30 m.
(Refer the following table)
But when the piping length exceeds 30m, additional charge is required according to the following table.
Example:
CU-B24DBE5
In case of 50m long pipe (one way), the amount of refrigerant to be replenished is: (50 - 30) x 50 = 1,000g
Model Name Standard piping specification
Liquid piping
(dia.mm)
Gas piping
(dia.mm)
Gas chargeless
length (m)
Additional gas
volume (g/m)
CU-B24DBE5 9.52 15.88 30 50
CU-B28DBE5 9.52 15.88 30 50
CU-B28DBE8
CU-B34DBE5 9.52 15.88 30 50
CU-B34DBE8
CU-B43DBE8 9.52 15.88 30 50
CU-B50DBE8 9.52 15.88 30 50

Table of Contents

Other manuals for Panasonic CU-B43DBE8

Related product manuals