EasyManua.ls Logo

Panasonic MDF-U5386S - Inventory Rack (Option)

Panasonic MDF-U5386S
38 pages
Print Icon
To Next Page IconTo Next Page
To Next Page IconTo Next Page
To Previous Page IconTo Previous Page
To Previous Page IconTo Previous Page
Loading...
32
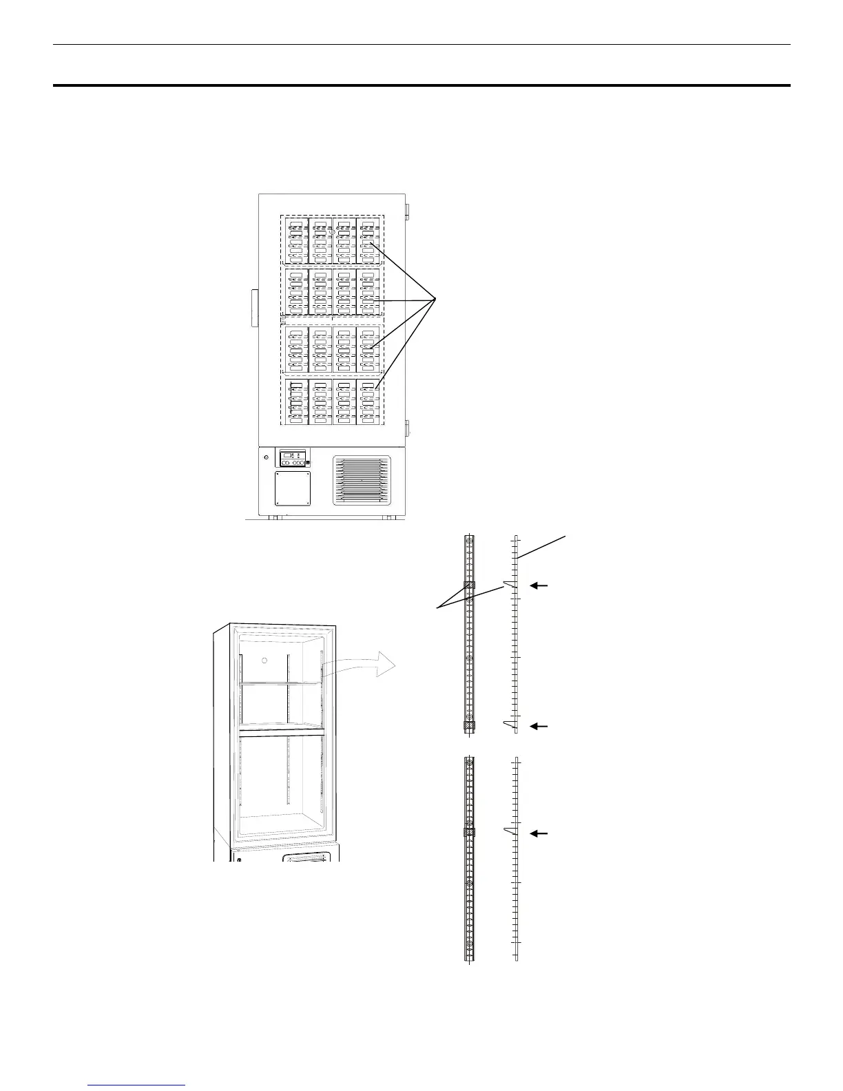
INVENTORY RACK (OPTION)
The optional inventory rack (IR-220U) is useful to store the precious materials in the chamber effectively.
When the rack is used, it is necessary to adjust the height of the shelves. Set the shelf stopper as shown
in the figure below.
Shelf support
Shelf stopper
NO. 8 under the second
screw from the top
No. 3 under the fifth
screw from the top
No. 2 under the third
screw from the bottom
IR-220U
MDF-U5386SC

Related product manuals