EasyManua.ls Logo

Panasonic S-22MK1E5 - Page 87

Panasonic S-22MK1E5
177 pages
To Next Page IconTo Next Page
To Next Page IconTo Next Page
To Previous Page IconTo Previous Page
To Previous Page IconTo Previous Page
Loading...
3 - 21
2WAY SYSTEM
Outdoor Unit Repair Procedures
3
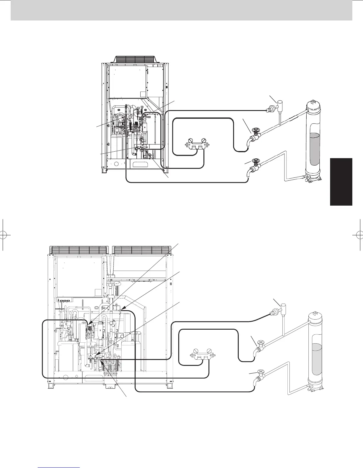
7. Charging Compressor Oil
High-pressure outlet port
(for ø7.94mm-dia connector)
Low-pressure outlet port
(for ø7.94mm-dia connector)
Liquid tube service port
(for ø7.94mm-dia connector)
Gas tube service port
(for ø7.94mm-dia connector)
Type 14HP / 16HP
DPR
Upper valve
Lower valve
Close
Close
Manifold gauge
Lo Hi
Fig. 11-b
Fig. 11-c
High-pressure outlet port
(for ø7.94mm-dia connector)
Low-pressure outlet port
(for ø7.94mm-dia connector)
Liquid tube service port
Gas tube service port
(for ø7.94mm-dia connector)
Type 18HP / 20HP
Lower valve
Manifold gauge
Lo Hi
(for ø7.94mm-dia connector)
DPR
Upper valve
Close
Close
SM830204-05_2WAY SYS_new.indb 21 15/01/05 15:31:37

Table of Contents

Other manuals for Panasonic S-22MK1E5

Related product manuals