EasyManua.ls Logo

Panasonic SA-PT660 - 5 Disc Mechanism: Laser Replacement (Part 2); Removing Laser Assembly from Bottom

Panasonic SA-PT660
42 pages
Print Icon
To Next Page IconTo Next Page
To Next Page IconTo Next Page
To Previous Page IconTo Previous Page
To Previous Page IconTo Previous Page
Loading...
Slide # 26
Models:
SA-PT660
SA-PT760
SA-PT960
SA-PT1060
SH-FX67, 85
Outline
Wireless
Mech
Pwr Supply
Protection
Audio
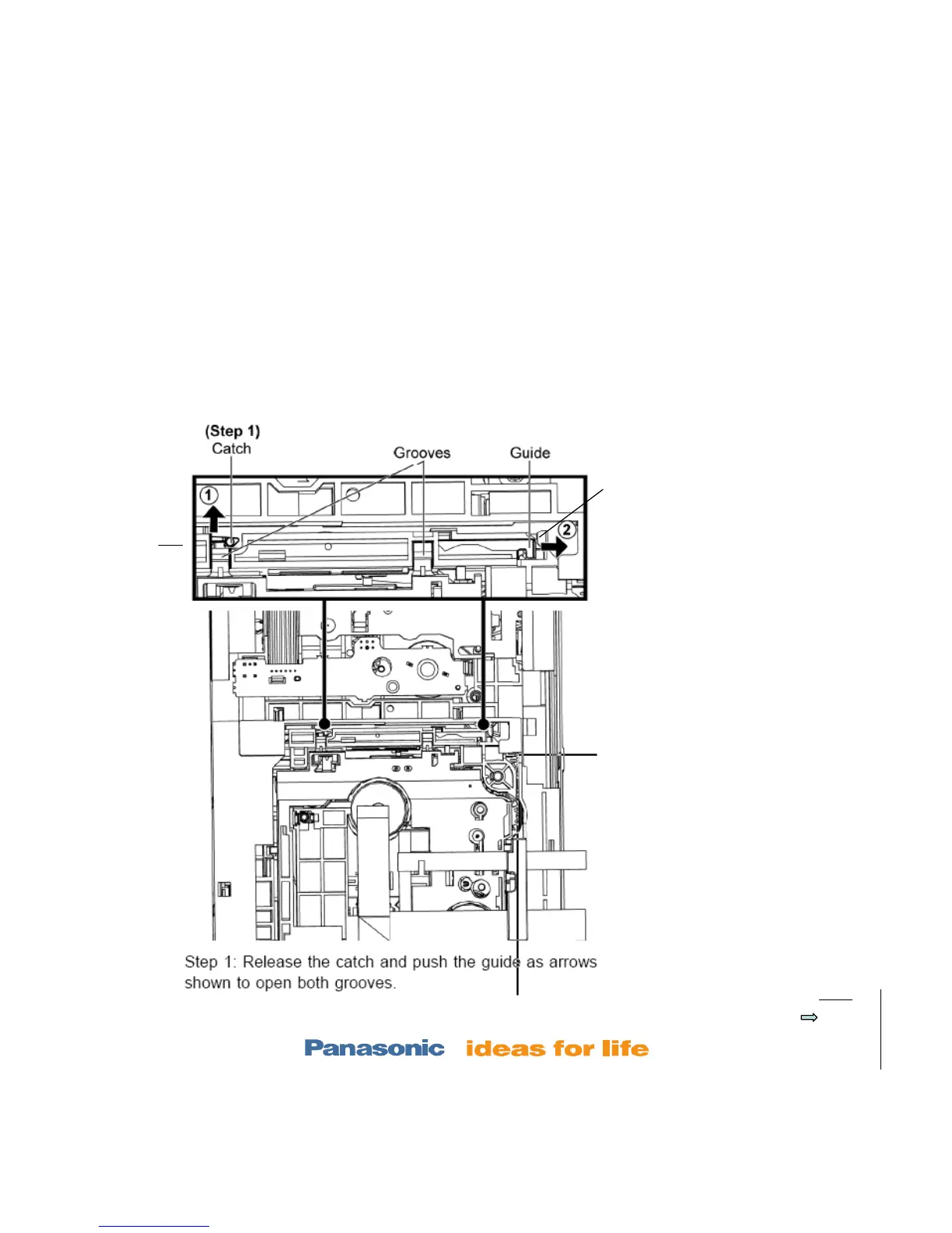
5 Disc Mechanism Laser Replacement 2/5 – Removed from play position
D. Removing the Laser assembly
from the bottom in play position:
1. Locate the bottom of #335 TRV
slide plate and move the catch
up as shown.
2. Slide #336 sub slide plate to the
right as shown until the grooves
in the slot are revealed
(permitting the traverse
assembly to lift out).
3.
Go to the next page.
back
front
# 336
# 335
Fig 15

Related product manuals