EasyManua.ls Logo

Panasonic SC-HC38 - Attaching Unit to Wall (Optional); Installation Accessories; Installation Safety Precautions; Wall Mount Instructions

Panasonic SC-HC38
68 pages
To Next Page IconTo Next Page
To Next Page IconTo Next Page
To Previous Page IconTo Previous Page
To Previous Page IconTo Previous Page
Loading...
16
RQT9746
Attaching the unit to a wall
(optional)
This unit can be wall mounted using the supplied wall
mount brackets, etc. Make sure that the screw used
and the wall are strong enough to support the weight of
at least 33 kg.
The screws and other items are not supplied as the
type and size will vary with each installation.
Refer to step 3 of “Wall mount instructions” for details
about the required screws.
Be sure to attach the fall prevention cord as a
secondary safety measure.
Supplied accessories
1 Safety holder
1 Screw
2 Wall mount brackets
Additionally required accessories
(commercially available)
4 Wall mount bracket fixing screws
1 Safety holder fixing screw
1 Fall prevention cord*
1
1 Screw eye
*1: Use a cord that is capable of supporting over 33 kg
(with a diameter of about 1.5 mm).
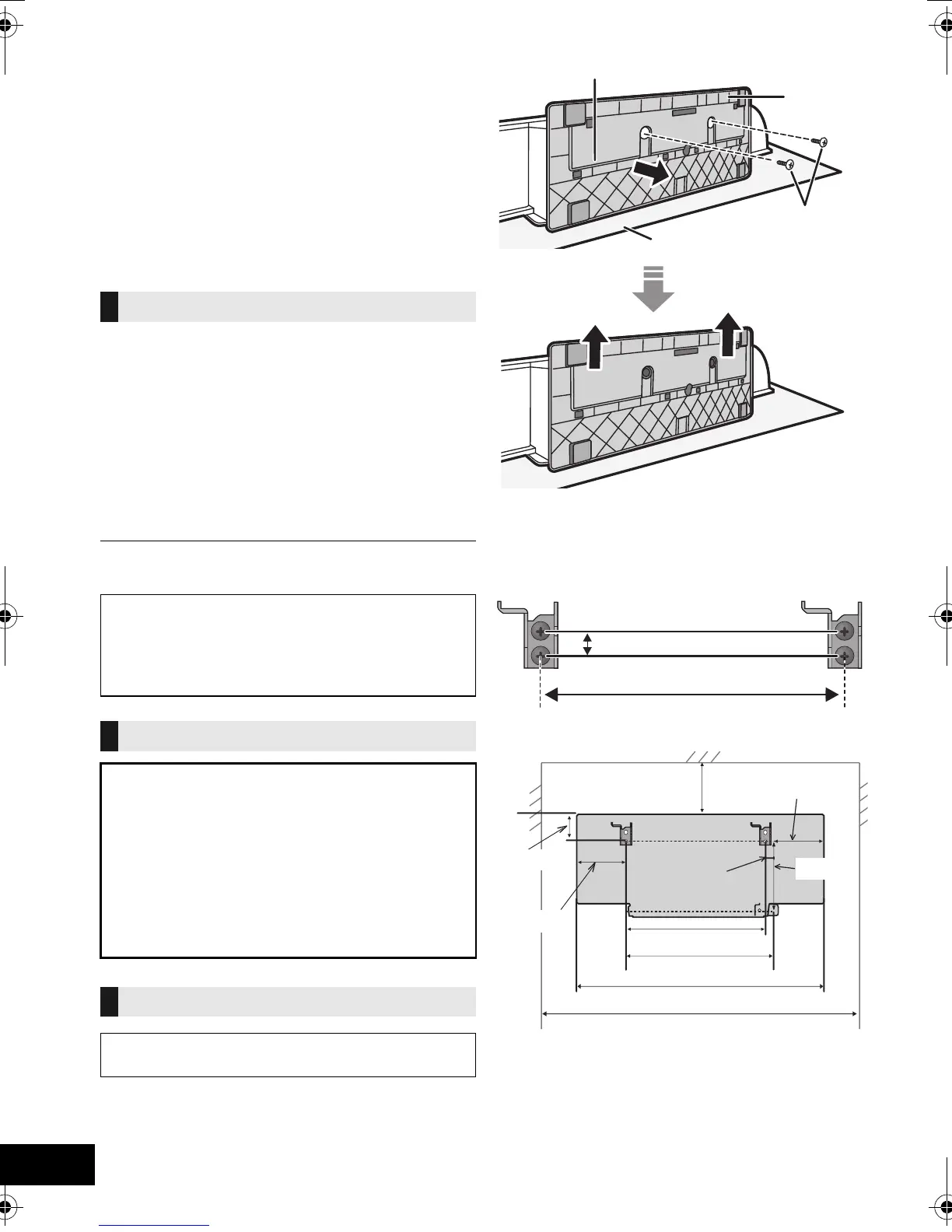
1 Detach the stand from the unit.
{. Unscrew the fixing screw (2 pieces) at the bottom of the
unit.
{. Gently pull the stand off the unit as illustrated.
Keep the removed screws and stand in a safe place.
2 Measure and mark the position of the wall mount
brackets (Both sides).
{. Use figures below to identify the screwing positions.
The position to attach the wall mount brackets
Space required
Installation accessories
Keep the safety holder out of reach of children to
prevent swallowing.
Keep the screws out of reach of children to prevent
swallowing.
Keep the wall mount brackets out of reach of children
to prevent swallowing.
Safety precautions
Professional installation is required.
The installation should never be done by any
other than a qualified installation specialist.
PANASONIC DISCLAIMS ANY PROPERTY
DAMAGE AND/OR SERIOUS INJURY,
INCLUDING DEATH RESULTING FROM
IMPROPER INSTALLATION OR INCORRECT
HANDLING.
Be sure to install this unit as indicated within
these operating instructions.
Wall mount instructions
Before installation, turn the unit off and disconnect the
AC mains lead from the mains socket.
Bottom of the unit
Stand
Soft blanket or cloth
Fixing screw
202 mm
12.5 mm
300 mm
232 mm
700 mm
66 mm
202 mm
125 mm
143 mm
500 mm
118 mm
30 mm
SC-HC38_EC~RQT9746-R.book 16 ページ 2012年12月28日 金曜日 午後6時53分

Table of Contents

Other manuals for Panasonic SC-HC38

Related product manuals