EasyManua.ls Logo

Panasonic TX-32C200E - Lors de Lutilisation de la Fixation Murale; Montage;Retrait du Socle; Prise Dalimentation

Panasonic TX-32C200E
123 pages
Print Icon
To Next Page IconTo Next Page
To Next Page IconTo Next Page
To Previous Page IconTo Previous Page
To Previous Page IconTo Previous Page
Loading...
Français - 22 -
Prise d’alimentation
Essuyez la che d'alimentation à intervalles réguliers à
l'aide d'un chiffon sec.
L'humidité et la poussière peuvent causer un incendie
ou une décharge électrique.
Montage/Retrait du socle
Préparations
Retirez les parties du socle et le téléviseur de l’emballage,
puis posez l’appareil sur une table de travail en prenant
le soin de faire coucher le panneau de l’écran sur un
tissu propre et doux (couverture, etc.)
Utilisez une table plate et solide, plus grande que le
téléviseur.
Ne tenez pas le panneau de l'écran.
Évitez de rayer ou de briser le téléviseur.
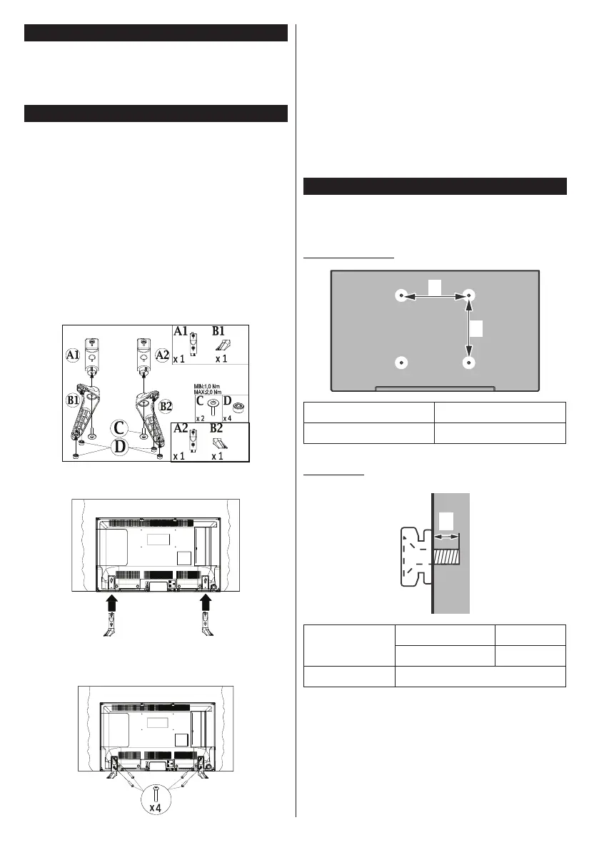
Montage du socle
1. Vissez les parties du socle entre elles et xez les
tampons en caoutchouc.
2. Installez le(s) support(s) sur le modèle de
montage du support à l’arrière du téléviseur.
3. Insérez les vis (M4 x 12) fournies, puis serrez-
les tout doucement jusqu’à ce que le support
soit correctement xé.
Retrait du socle du téléviseur
Assurez-vous de retirer le socle de la manière suivante
lors de l'utilisation de la xation murale ou du remballage
du téléviseur.
Posez le téléviseur sur une table de travail, avec le
panneau de l'écran couché sur un tissu propre et
doux. Laissez le(s) support (s) en saillie sur le bord
de la surface.
Desserrez les vis qui xent le(s) support(s).
Retirez le(s) support(s).
Lors de l'utilisation de la xation murale
Veuillez contacter votre vendeur Panasonic local pour
l'achat de la xation murale recommandée.
Orices pour l'installation de la xation murale ;
Dos du téléviseur
a
b
a(mm) 200
b(mm) 100
Vue de côté
a
Profondeur de
la vis (a)
min.(mm) 5
max.(mm) 8
Diamètre M4
Remarque : Les vis pour positionner le téléviseur sur la xation
murale ne sont pas fournies avec celui-ci.

Table of Contents

Related product manuals