EasyManua.ls Logo

Panasonic U-100PE1E5 - Page 309

Panasonic U-100PE1E5
739 pages
To Next Page IconTo Next Page
To Next Page IconTo Next Page
To Previous Page IconTo Previous Page
To Previous Page IconTo Previous Page
Loading...
1
1-299
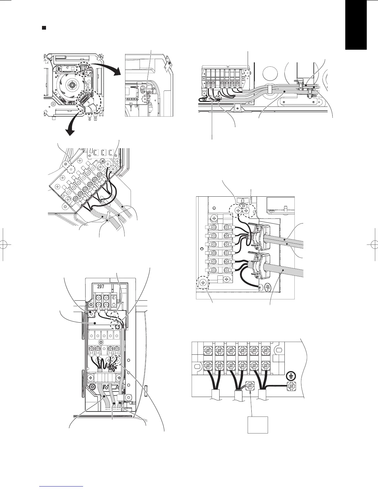
Wiring samples
Y1 type
Remote Control Wiring
Clamper
(Field supply)
Power Supply
Functional ground screw (External Electronic
Expansion Valve Kit and Schedule Timer)
Use this screw when connecting the shield
for the Inter-unit control wiring to ground.
Protective ground screw
Inter-unit Control Wiring
Protective ground screw
Use this screw when connecting the shield
for the Inter-unit control wiring to ground.
Functional ground screw (External Electronic
Expansion Valve Kit and Schedule Timer)
Power Supply
Inter-unit Control Wiring
Remote Control Wiring
T1 type
K1 type
L1
R1 R2
L2 N U1 U2
Functional ground screw (External Electronic
Expansion Valve Kit and Schedule Timer)*
Protective ground screw
Use this screw when connecting the shield
for the Inter-unit control wiring to ground.
* As to functional ground screw and protective ground screw,
remove the fixture screw and resin cover. Then, carry out
earth ground work.
Power Supply
Fixture screw for resin cover
Resin cover
Inter-unit Control Wiring
Remote Control Wiring
Use this screw when connecting the shield
for the Inter-unit control wiring to ground.
Functional ground screw
Protective ground screw
Power Supply
Inter-unit Control
Wiring
Remote Control
Wiring
F1 type
N1 type
6P terminal board
R1
R2
U1
U2
L
N
Remote
controller
line
Unit
control
wiring
Power
suppy
Earth
Shielded
wire
ground
SM830211-07PAC-i.indb299SM830211-07PAC-i.indb299 2013/09/1722:48:002013/09/1722:48:00

Table of Contents

Other manuals for Panasonic U-100PE1E5

Related product manuals