EasyManua.ls Logo

Panasonic U-100PE1E5 - Page 542

Panasonic U-100PE1E5
739 pages
To Next Page IconTo Next Page
To Next Page IconTo Next Page
To Previous Page IconTo Previous Page
To Previous Page IconTo Previous Page
Loading...
3-2
3
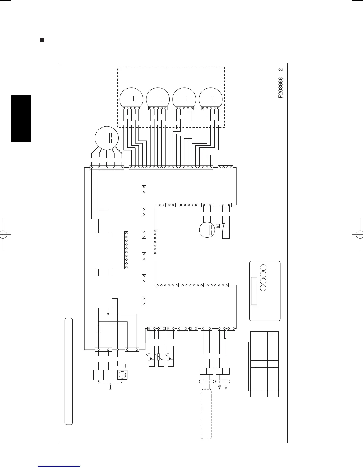
3-1. Indoor Units
4-Way Cassette Type S-36PU1E5 / S-45PU1E5 / S-50PU1E5 / S-60PU1E5 / S-71PU1E5 /
S-100PU1E5 / S-125PU1E5 / S-140PU1E5
Electric Wiring Diagram
R
B
Y
RB
W
R
B
Y
BR
W
R
B
Y
BR
W
R
B
Y
BR
W
O
M
M
M
M
M
AUTO
LOUVER
MOTOR1
AUTO
LOUVER
MOTOR2
AUTO
LOUVER
MOTOR3
AUTO
LOUVER
MOTOR4
1
2
3
4
5
1
2
3
4
5
1
2
3
4
5
1
2
3
4
5
R
W
B
Y
BL
TO THE OUTDOOR UNIT
or INDOOR UNIT
TERMINAL BOARD
WIRED CONTROLLER
ELECTRIC CIRCUIT DIAGRAM
CAUTION
Terminal No.
are d.c.signal circuit.
Do not supply 220V-240V.
R1
R2 U1 U2
L
N
BR
FUSE F301
T5A L250V
AC IN
(BL)
OP1
(Y)
LT
G
CONTROL BOARD (MAIN)
Y
B
P
RED
YELLOW
BLUE
PINK
BLACKBL
O
W
BR
G
ORANGE
WHITE
BROWN
GREEN
LIGHT BLUELT
R
W
BL
R1
R2
P
B
U1
U2
1
4
5
6
7
1
LM
HU
EXCT
(R)
FAN
DRIVE
(W)
(W)
(W)
3WAY
(BL)
DP
(W)
FS
(R)
22
1
1
2
1
2
1
3
1
3
1
5
4
17
GRL (W)
OPTION
(W)
1
6
T10
(Y)
1
6
PMV
(W)
1
6
TA
(Y)
1
2
E1
(R)
1
2
E2
(BL)
1
2
BL
(G)
1
2
OC
(B)
1
2
EMG
(BR)
1
2
E3
(BR)
1
3
RC
(B)
1
3
1
3
1
3
E
12
TP6(W)
12
TP3(Y)
12
TP1(R)
12
TEST(BL)
12
DISP(BL)
12
CHK(BL)
110
DCM(W)
FAN MOTOR
TOOL(BL)
DRAIN PUMP
M
R
R
R
W
BL
BL
BL
BL
BL
BL
FLOAT SWITCH
INDOOR AIR TEMP
POWER SUPPLY
TERMINAL
BOARD
220 / 230 / 240V~
50Hz
WIRE COLOR
INDOOR HEAT EXCHANGER
SENSOR (TA)
INDOOR HEAT EXCHANGER
TEMP. SENSOR (E2)
TEMP. SENSOR (E1)
NOISE FILTER
CIRCUIT
RECTIFICATION
CIRCUIT
SM830211-07PAC-i.indb2SM830211-07PAC-i.indb2 2013/07/1714:07:012013/07/1714:07:01

Table of Contents

Other manuals for Panasonic U-100PE1E5

Related product manuals