EasyManua.ls Logo

Panasonic U-100PE1E5A - Page 372

Panasonic U-100PE1E5A
659 pages
To Next Page IconTo Next Page
To Next Page IconTo Next Page
To Previous Page IconTo Previous Page
To Previous Page IconTo Previous Page
Loading...
1
1-362
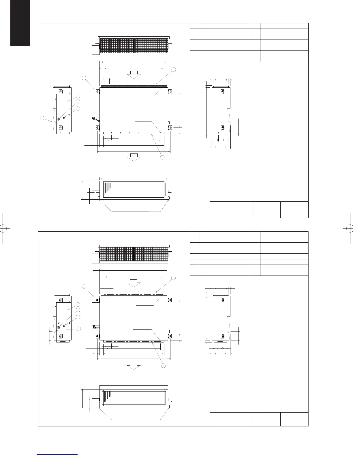
Air Flow
Drain pipe connection
Drain pipe connection
Outside Dimensions MODEL NO.
UNIT:mm
No.
1
2
3
4
5
6
NAME Q'TY
NOTE
Air Flow
Pipe connection (liquid)
1
1
2
2
4
1
Pipe connection (gas)
Drain pipe connection
Hanger
Duct connection
Control box
O.D. Ø12.7 Flared
24-Ø4.5
22-Ø4.5
30-Ø4.5
28-Ø4.5
O.D. Ø6.35 Flared
Female screw PT1"
S-45PN1E5A
S-36PN1E5A
S-50PN1E5A
58
48
31
65
161
48
30 650 30
31 32187
55
55
100 670
585 (P65 x 9)
780 (P65 x 12)
650 (P65 x 10)
845 (P65 x 13)
65
64
250
80
65
740
780
523
134
45
20
840
3
2
1
6
5
4
4
Air Flow
Outside Dimensions
MODEL NO.
UNIT:mm
Air Flow
Hanger
Drain pipe connection
Pipe connection (liquid)
1
2
3
4
5
NO.
6
NOTE
NAME
Pipe connection (gas)
4
Q'TY
2
1
1
2
1
Duct connection
Control box
O.D. Ø15.88 Flared
O.D. Ø9.52 Flared
Female screw PT1"
S-71PN1E5A
S-60PN1E5A
55
55
100 890
65
64
250
80
65
960
1000
523
57.5
20
58
48
31
65
161
48
30 650 30
31 32187
134
134
1060
5
4
4
3
2
1
6
SM830231-00Single欧州.indb362SM830231-00Single欧州.indb362 2014/06/0510:12:502014/06/0510:12:50

Table of Contents

Other manuals for Panasonic U-100PE1E5A

Related product manuals