EasyManua.ls Logo

Panasonic U-16MF2E8 - 7. Charging Compressor Oil; 7-3. Charging Additional Compressor Oil (after replacing compressor)

Panasonic U-16MF2E8
153 pages
Print Icon
To Next Page IconTo Next Page
To Next Page IconTo Next Page
To Previous Page IconTo Previous Page
To Previous Page IconTo Previous Page
Loading...
2 - 17
3WAY SYSTEM
Outdoor Unit Repair Procedures
2
7. Charging Compressor Oil
7-3. Charging Additional Compressor Oil (after replacing compressor)
The rated amount of oil is pre-charged in the compressors as given below:
When replacing a faulty compressor, be sure to first measure the amount of remaining oil in the compressor.
Charge additional new oil equal to the difference in the remaining oil and the rated amount as listed above.
For example: Type of replaced compressor: C-SDN453H8B
Remaining oil in the removed compressor: 2.2
Additional oil to be charged: 2.2 (remaining oil in the removed compressor) – 1.7 (rated oil amount) = 0.5
* If the result is a negative amount (remaining oil in the removed compressor is less than the rated amount), it is not
necessary to discharge the extra oil from the system.
For the method used for additional oil charging after compressor replacement, refer to “7-1. If Refrigerant Has
Already Been Charged to Outdoor Unit.”
The oil absorbs moisture readily. This work must be completed quickly.
CAUTION
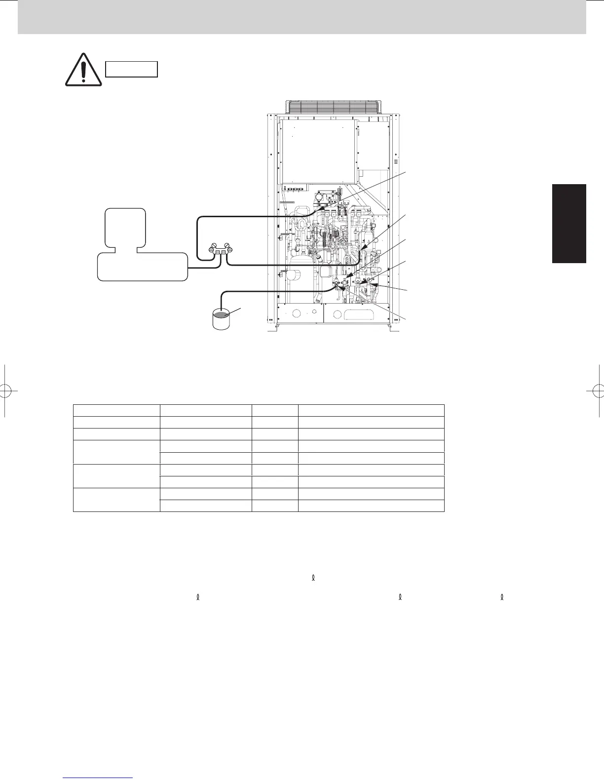
Fig. 13
Model name Compressor model Q'ty Pre-charged amount of oil (liters)
U-8MF2E8
U-10MF2E8
U-12MF2E8
U-14MF2E8
5JD650ZBA22
5JD650ZBA22
5JD650ZBA22
5JD650ZBA22
5JD650ZBA22
C-SDN453H8B
C-SDN523H8B
C-SDN453H8B
U-16MF2E8
1.6
1.6
1.6
1.7
1.6
1.7
1.6
1.7
1
1
1
1
1
1
1
1
High-pressure outlet port
(for ø7.94mm-dia connector)
Low-pressure outlet port
(for ø7.94mm-dia connector)
Liquid tube service port
(for ø7.94mm-dia connector)
Discharge tube service port
(for ø7.94mm-dia connector)
Suction tube service port
(for ø7.94mm-dia connector)
Manifold gauge
Lo Hi
Oil balance tube service port
(For 7.94mm-dia. connector)
Vacuum pump
Oil
5/A9#;'%1K5;56'/A5G 

Table of Contents

Other manuals for Panasonic U-16MF2E8

Related product manuals