EasyManua.ls Logo

Panasonic WH-SDC07C3E5 - Indoor Unit

Panasonic WH-SDC07C3E5
166 pages
Print Icon
To Next Page IconTo Next Page
To Next Page IconTo Next Page
To Previous Page IconTo Previous Page
To Previous Page IconTo Previous Page
Loading...
45
11.3. Indoor Unit
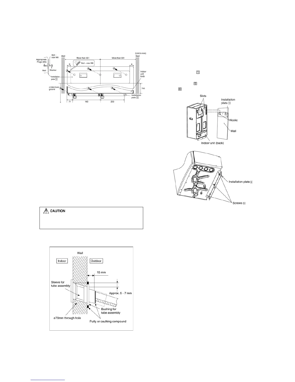
11.3.1. HOW TO FIX INSTALLATION PLATE
The mounting wall is strong and solid enough to prevent it from
vibration.
The centre of installation plate should be at more than 551 mm
at right and left of the wall.
The distance from installation plate edge to ground should
more than 1550 mm.
Always mount the installation plate horizontally by aligning
the marking thread and using a level gauge.
Mount the installation plate on the wall with 6 sets of plug,
bolt and washer (all non-supply) with size M8.
11.3.2. TO DRILL A HOLE IN THE WALL
AND INSTALL A SLEEVE OF
PIPING
1. Insert the piping sleeve to the hole.
2. Fix the bushing to the sleeve.
3. Cut the sleeve until it extrudes about 15 mm from the
wall.
4. Finish by sealing the sleeve with putty or caulking
compound at the final stage.
11.3.3. INDOOR UNIT INSTALLATION
11.3.3.1. Install The Indoor Unit
1. When connecting solar pump station cable between
indoor unit and solar pump station, the distance between
both apparatuses shall be 2 ~ 8 meters and the length of
the said cable must be shorter than 10 meter. Failure to
do so may lead to abnormal operation to the system.
2. Engage the slots on the indoor unit to the hooks of
installation plate . Ensure the hooks are properly seated
on the installation plate by moving it left and right.
3. Fix the screws to the holes on the hooks of installation
plate, , as illustrated below.
11.3.3.2. Water Piping Installation
The minimum requirement of water in the system is 30 litres.
If this value could not be achieved, please install additional
buffer tank (field supply).
Water inlet and water outlet in indoor unit are used for
connection to water circuit. Please request a licensed
technician to install this water circuit.
This water circuit must comply with all relevant European
and national regulations, i.e. IEC/EN 61770.
Be careful not to deform the piping with excessive force
when doing piping connection job.
Do not install any valve between indoor unit and water piping
to avoid accidental closure of water supply to the indoor unit.
Use Rp 1¼” nut for both water inlet and outlet connection
and clean all pipings with tap water before install.
Cover the pipe end to prevent dirt and dust when inserting it
through a wall.
Choose proper sealer which can withstand the pressures
and temperatures of the system.
If old heat pump terminal / tank is utilized, please clean the
dust properly before installation.
Refer Diagram 4.1 for installation of 3-way Valve Kit and
2-way Valve Kit.
Must install an external filter (30 mesh or more, field
supply) before water inlet connector of indoor unit (indicated
with “WATER IN”).
Connect the external filter inlet to boiler tank outlet. Then,
When the wall is hollow, please be sure to use the
sleeve for tube assembly to prevent dangers caused
by mice biting the connecting cable.

Table of Contents

Related product manuals