EasyManua.ls Logo

Pando PLI-7360 - Ligação Dos Tubos de Drenagem

Pando PLI-7360
Print Icon
To Next Page IconTo Next Page
To Next Page IconTo Next Page
To Previous Page IconTo Previous Page
To Previous Page IconTo Previous Page
Loading...
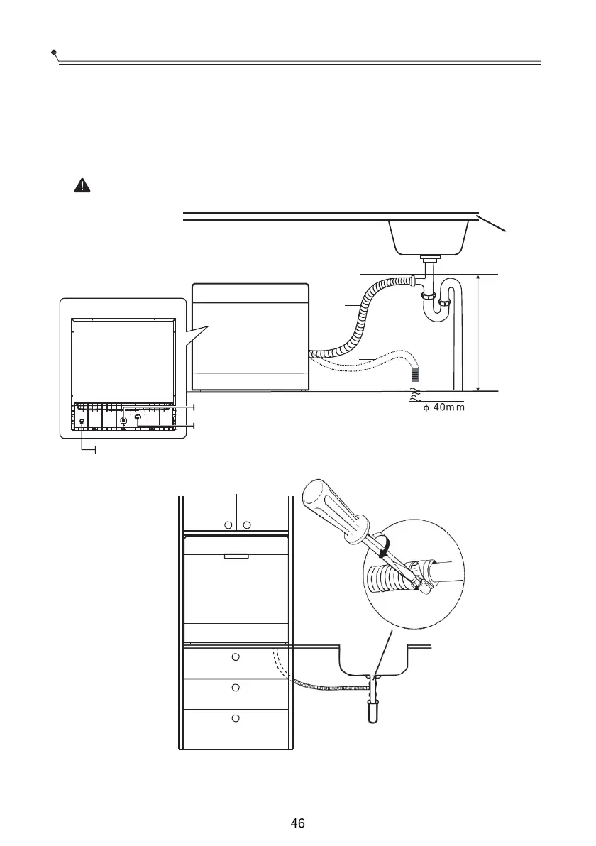
Ligação dos tubos de drenagem
Introduza o tubo de drenagem numa tubagem de descarga com um diâmetro
mínimo de 4 cm, ou deixe que corra para o lava
-
loiça, certificando
-
se de que
não fica dobrado nem esmagad
o. A altura do tubo de descarga deve ser
inferior a 750 mm. A extremidade livre do tubo não deve ficar submersa em
água para
evitar o retorno do fluxo.
Fixe firmemente o tubo de drenagem na posição A ou na posição B
B
A
Parte posterior da
máquina de lavar
loiça
Tubo de drenagem
Entrada de água
Tubo de descarga
Cabo de
alimentação
MÁX. 750mm
Bancada
46

Table of Contents

Related product manuals