EasyManua.ls Logo

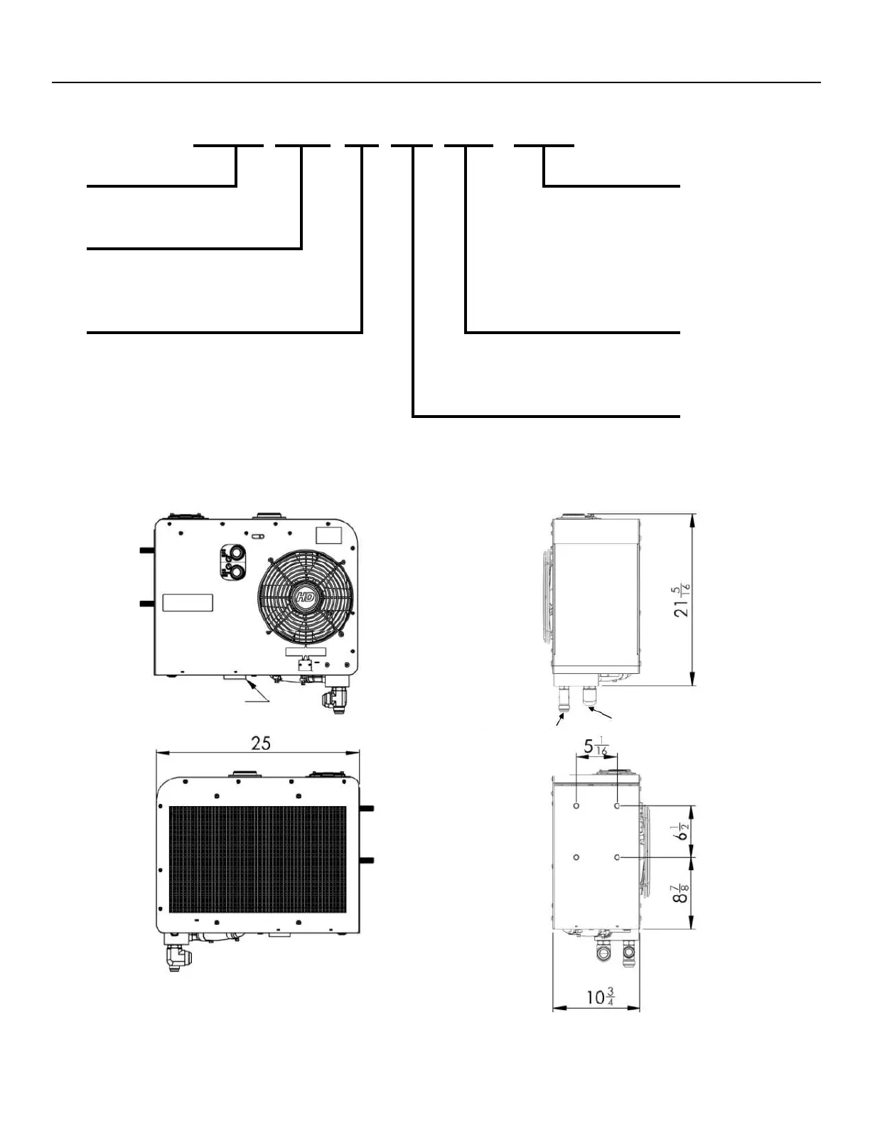
Paragon HydraFLOW - Model Number Construction; Overall Dimensions

Paragon HydraFLOW
14 pages
Print Icon
To Next Page IconTo Next Page
To Next Page IconTo Next Page
To Previous Page IconTo Previous Page
To Previous Page IconTo Previous Page
Loading...
7
Model Number Construction
HD
300
T
2
X
-
HydraFlow HF
Special
Description
HD Heavy Duty (50 GPM)
(Leave blank if none)
001 - 16 Elbow HP, -16 Elbow LP
Pressure
002 - 16 Tee HP, -16 Elbow LP
300 - 3000 psi
004 - 16 Elbow HP, -20 Tee LP
Style
Features
T - Tank
X - No Guard
Suction
Connection
2 - 2” NPT
Suction
connection
2” NPT Female
HP connections 1”
JIC Males (in/out)
Return
connection
Overall Dimensions (Fig. 4)
Note:
To avoid premature failure, hydraulic hoses must be supported
and not allowed to hang or pull on cooler connections.