EasyManua.ls Logo

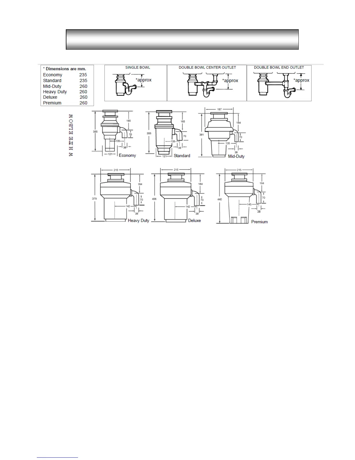
Parmco GD-2 - TYPICAL INSTALLATION DIAGRAMS

Parmco GD-2
15 pages
Print Icon
To Next Page IconTo Next Page
To Next Page IconTo Next Page
To Previous Page IconTo Previous Page
To Previous Page IconTo Previous Page
Loading...
11
TYPICAL INSTALLATION