EasyManua.ls Logo

PEERLESS FM Series - Page 2

Default Icon
2 pages
Print Icon
To Previous Page IconTo Previous Page
To Previous Page IconTo Previous Page
Loading...
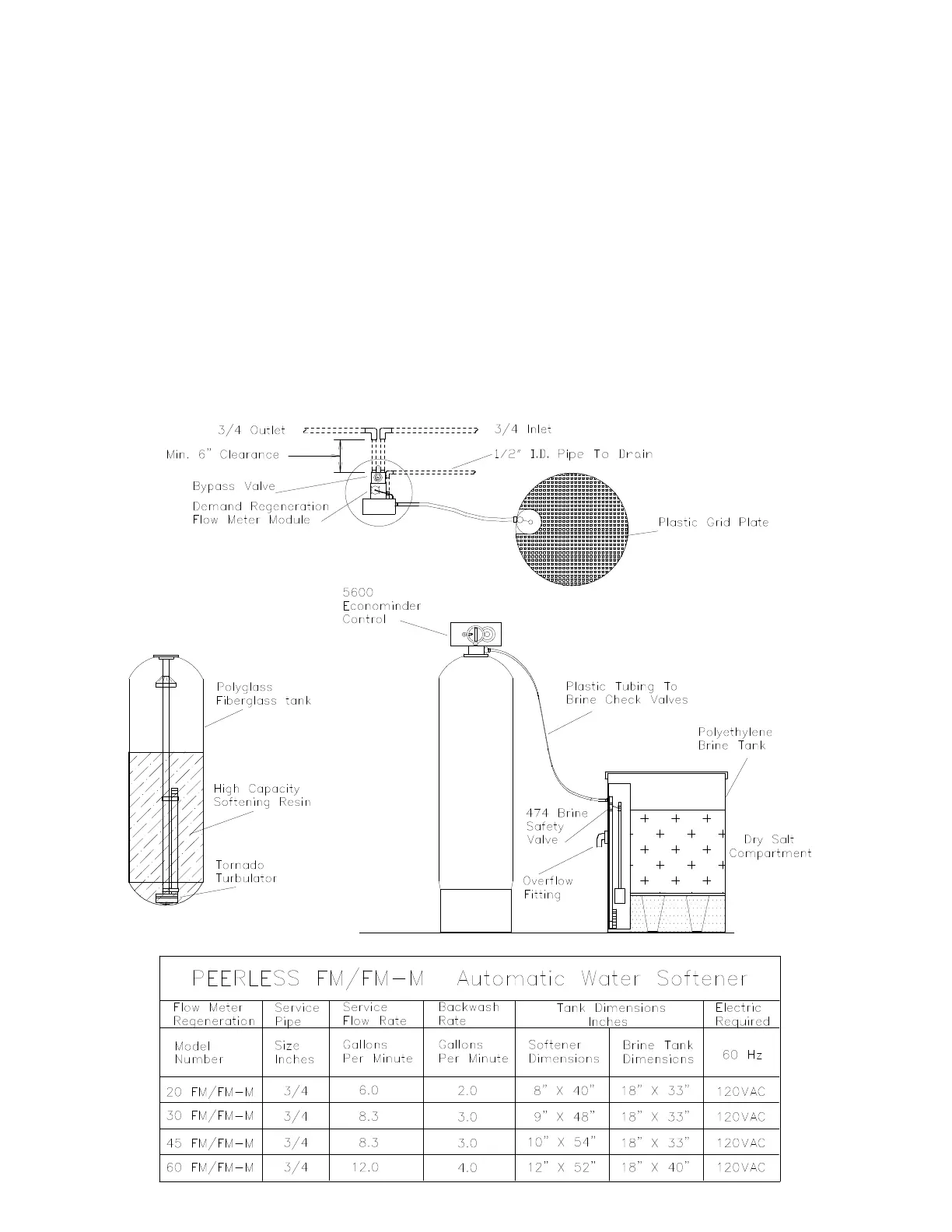
INSTALLATION DIAGRAM
Specifications
Rough in dimension: From the floor to the center of bypass approximately 50"
Maximum distance and size for drain line: 50' horizontal , 10" vertical rise, using 1/2" ID drain line
Maximum distance and size for brine line: 15' horizontal (see note) using 1/4" ID poly tubing
Note: The horizontal distance for the brine tank can be increased to 35' if the brine tank is installed above the unit.
Example: Softener installed in the basement and brine tank installed on 1st floor. The brine tank CANNOT be
installed below the bottom of the unit. The drain and brine lines should NOT be installed with tubing that can
collapse. This will cause the unit to malfunction.
Caution: Do NOT connect drain line tubing from control valve to overflow fitting/tubing on brine tank.

Related product manuals