EasyManua.ls Logo

Pelco KBD300A - Page 10

Pelco KBD300A
36 pages
Print Icon
To Next Page IconTo Next Page
To Next Page IconTo Next Page
To Previous Page IconTo Previous Page
To Previous Page IconTo Previous Page
Loading...
[ 10 ] Pelco Manual C527M-L (3/04)
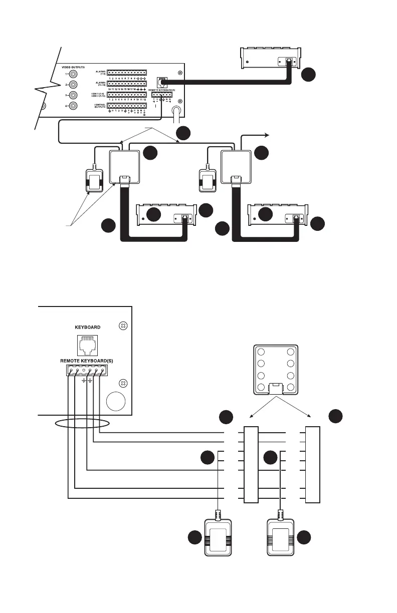
Figure 1. Wiring Diagram for Local/Remote Keyboards
Figure 2. Keyboard Cabling Diagram
KBDKIT
25-FOOT KEYBOARD
DATA CABLE
KBD
KBD
ADDITIONAL
KEYBOARDS
USER-SUPPLIED CABLE
25-FOOT KEYBOARD DATA CABLE
KBD
LOCAL
KEYBO ARD
LOCAL
KEYBOARD
REMOTE KEYBOARDS
8
8
2
2
3
1
CM6700
6
REPLACE
COVER
7
6
REPLACE
COVER
7
25-FOOT KEYBOARD
DATA CABLE
SET SWITCHES
01225
TERMINAL
1
2
3
4
5
6
7
8
TERMINAL
1
2
3
4
5
6
7
8
R+R-T-T+
LOCAL
RJ-45 WALL BLOCK TERMINALS
1
2
3
45
6
7
8
12 VAC 12 VAC
4
4
TX+
TX-
AC
AC
GND
RX-
RX+
5
5
9 9
USER-SUPPLIED CABLE
TX+
TX-
AC
AC
GND
RX-
RX+
01226

Other manuals for Pelco KBD300A