EasyManua.ls Logo

Philips 32PFH4100/88 - Page 52

Philips 32PFH4100/88
150 pages
Print Icon
To Next Page IconTo Next Page
To Next Page IconTo Next Page
To Previous Page IconTo Previous Page
To Previous Page IconTo Previous Page
Loading...
IC Data Sheets
EN 52 TPN15.1E LA8.
2015-Oct-30
back to
div. table
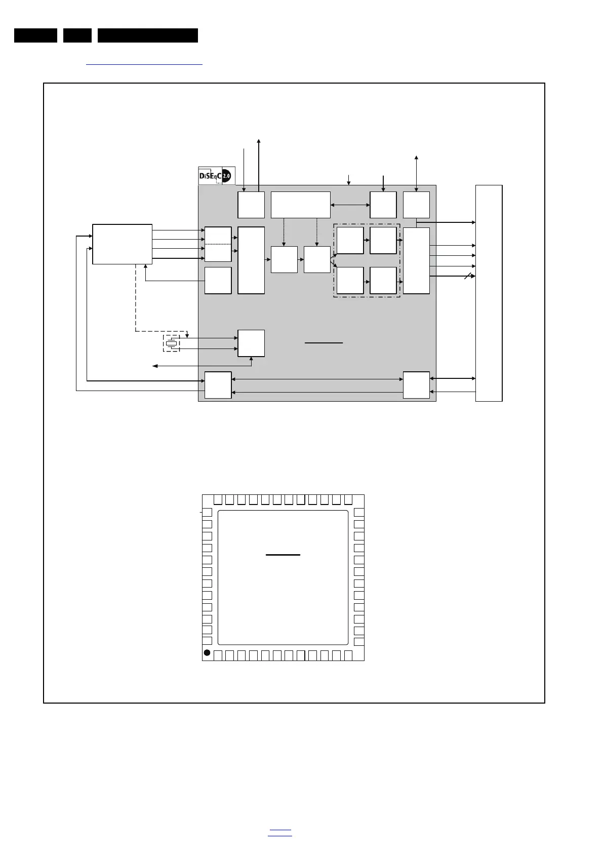
8.4 Diagram 10-7-10 Tuner/T2 demod, B10, Si2166-B22 (IC U201)
Figure 8-4 Internal block diagram and pin configuration
19790_303.eps
Block diagram
Pinning information
Si2166
Si2166B
(GND_PAD)
QFN-48
7x7mm
343536
21
22
23
24
3 4 5
33
20
6
32
7
28293031 27
8 9 10 11 12
15
16
17
18
19
40
39
38
37
41
46
45
44
43
42
MP_A
S_ADC_IP
S_ADC_IN
S_ADC_QP
S_ADC_QN
SDA_MAST
SCL_MAST
NC
NC
NC
DISEQC_OUT
MP_B
SCL_HOST
DISEQC_CMD
GND
SDA_HOST
TS_VAL
DISEQC_IN
TS_DATA[1]
TS_DATA[5]
TS_DATA[4]
TS_DATA[3]
GND
VDD_VIO
TS_DATA[2]
TS_DATA[0]/TS_S
TS_CLK
TS_SYNC
47
14
TS_DATA[7]
RESETB
XTAL_I/CLK_I
XTAL_O
GND
VDD_VCORE
VDD_VANA
ADDR
GND
GPIO_0
48
13
21
26 25
TS_DATA[6]
TS_ERR/GPIO
CLK_IN_OUT
GND
VDD_VCORE
VDD_VCORE
VDD_VIO
VDD_VCORE
MP_D
MP_C
HDTV MPEG S.o.C.
Si2166B
HOST_SCL
HOST_SDA
FRONT
END
OSC
& PLL
QPSK
8PSK
DEMOD
S_ADC_IN
S_ADC_IP
S_ADC_QN
S_ADC_QP
ADC (I)
ADC (Q)
EQUAL-
IZER
I
2
C
SWITCH
TUN_SDA
TUN_SCL
GPIOCTRL
MPEG TS
INTERFACE
I
2
C
I/F
MP_x
GPIO_0
RESETB1.2, 3.3V
DSP &
SYNCHRO
DVB-S/S2
FEC MODULE
DiSEqC
TM
2.0
DISEQC_IN
DISEQC_OUT
AGCs
Ext. Clk or Xtal
QPSK / 8PSK
Satellite
ZIF Tuner
CLK_IN_OUT
LDPC BCH
VITERBI RS
TS_ERR/
GPIO_1
TS_SYNC
TS_VAL
8
TS_CLK
TS_DATA

Table of Contents

Other manuals for Philips 32PFH4100/88

Related product manuals