EasyManua.ls Logo

Philips 32PFH4100/88 - Page 77

Philips 32PFH4100/88
150 pages
Print Icon
To Next Page IconTo Next Page
To Next Page IconTo Next Page
To Previous Page IconTo Previous Page
To Previous Page IconTo Previous Page
Loading...
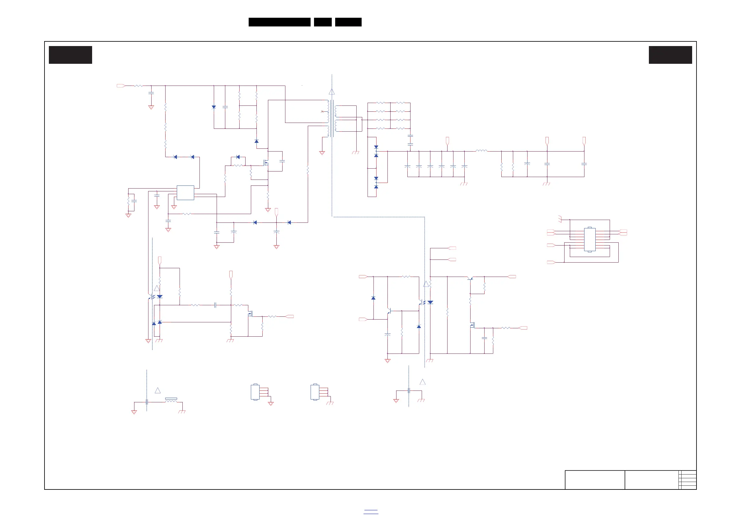
Circuit Diagrams and PWB Layouts
EN 77TPN15.1E LA 10.
2015-Oct-20
back to
div.table
10-5-4 Main Power 12V
19610_503.eps
Main Power 12V
A04 A04
2013-10-18
A
715G6338
Main Power 12V
1
2
3
4
HS9302
HEAT SINK
1
2
ZD9303
NC/P6KE160AA0
1
2
3
4
HS9301
HEAT SINK
Q9332
PMBT3906
HOT
COLD
C9309
2N2 500V
D9301
SS1060FL
R9321
51 OHM 1/4W
R9331
10K OHM +-5% 1/8W
IC9342
AS431AN-E1
D9302
FR107
Q9301
TK13A65U
C9306
NC
Q9341
2N7002K
12
ZD9302
BZT52-B30
C9302
1NF
R9334
10K OHM
C9331
100N 50V
L9301
3UH
12
4
3
IC9341
PS2561DL1-1
D9303
FR107
12
ZD9301
BZT52-B30
C9310
2N2 500V
R9306
0.1R
+
C9311
470UF 25V
R9342
100K 1/8W 1%
!
R9307
100K 1/4W
1
2
3
4
5
6
7
9
10
T9301
POWER X'FMR/380GL32P133H00
+
C9320
47UF 50V
R9348
1K 1/8W 1%
1 2
ZD9340
BZT52-B16
R9333
10K 1/8W 1%
R9318
51 OHM 1/4W
R9345
6.2K OHM +-1% 1/8W
R9303
6.8K 1/4W
+
C9314
330UF25V
R9337
2Kohm 1/4W +/-5%
R9302
6.8K 1/4W
R9346
2Kohm 1/4W +/-5%
R9311
10 OHM
R9344
3.9K 1% 1/8W
R9315
470 OHM 1/4W
R9336
2Kohm 1/4W +/-5%
R9316
2.2 OHM 1/4W
R9314
0.27R
R9308
100K 1/4W
R9347
2.2KOHM +-1% 1/8W
+
C9332
10UF 50V
R9338
100K 1/8W 1%
R9312
51 OHM 1/4W
R9335
10K OHM +-5% 1/8W
R9332
330K 1% 1/8W
12
43
IC9331
PS2561DL1-1
C9304
1N 50V
R9341
10K OHM +-5% 1/8W
Q9331
2N7002K
R9301
6.8K 1/4W
C9301
10NF
C9315
100N 50V
+
C9312
470UF 25V
R9309
100K 1/4W
R9310
100K 1/4W
C9341
220N 50V
1 2
ZD9330
BZT52-B15
Q9333
BTC4672M3
C9305
470P 50V
D9331
SS1060FL
PS_ON
C9308
100N 50V
R9320
51 OHM 1/4W
2D/3D
+
C9313
470UF 25V
R9313
10KOHM
+
C9317
470UF 25V
+
C9318
470UF 25V
DV5
VCC
DV5
+12"V
+12"V
VCC
ON/OFF
PS_ON
COLDHOT
B+
DIM
HOT COLD
HOT COLD
OVP
R9324
NC
R9325
NC
CT
1
COMP
2
CS
3
GND
4
OUT
5
VCC
6
HV
8
IC9301
LD7752B
R9305
NC/100KOHM +-5% 1/8W
VCC_ON
+12V
+12V
+12V
+12V
R9326
51 OHM 1/4W
R9327
51 OHM 1/4W
1
2
3
D9305
FME-220B
R9343
9.53KOHM +-1% 1/8W
1 2
FB9301
BEAD
1
2
3
D9306
FME-220B
R9322
51 OHM 1/4W
R9323
51 OHM 1/4W
+
C9307
10UF 50V
D9304
FR107
+
C9321
NC/ 470UF 25V
C9303
47nF 50V
R9319
51 OHM 1/4W
C9328
470pF 250V
!
C9316
1NF 250V
!
!
!
+12V_audio
+12V_audio
2
4
6
8
10
12
14
1
3
5
7
9
11
13
CN9301
CONN
C9319
100N 50V

Table of Contents

Other manuals for Philips 32PFH4100/88

Related product manuals