EasyManua.ls Logo

Philips CDR570 - Page 61

Philips CDR570
98 pages
Print Icon
To Next Page IconTo Next Page
To Next Page IconTo Next Page
To Previous Page IconTo Previous Page
To Previous Page IconTo Previous Page
Loading...
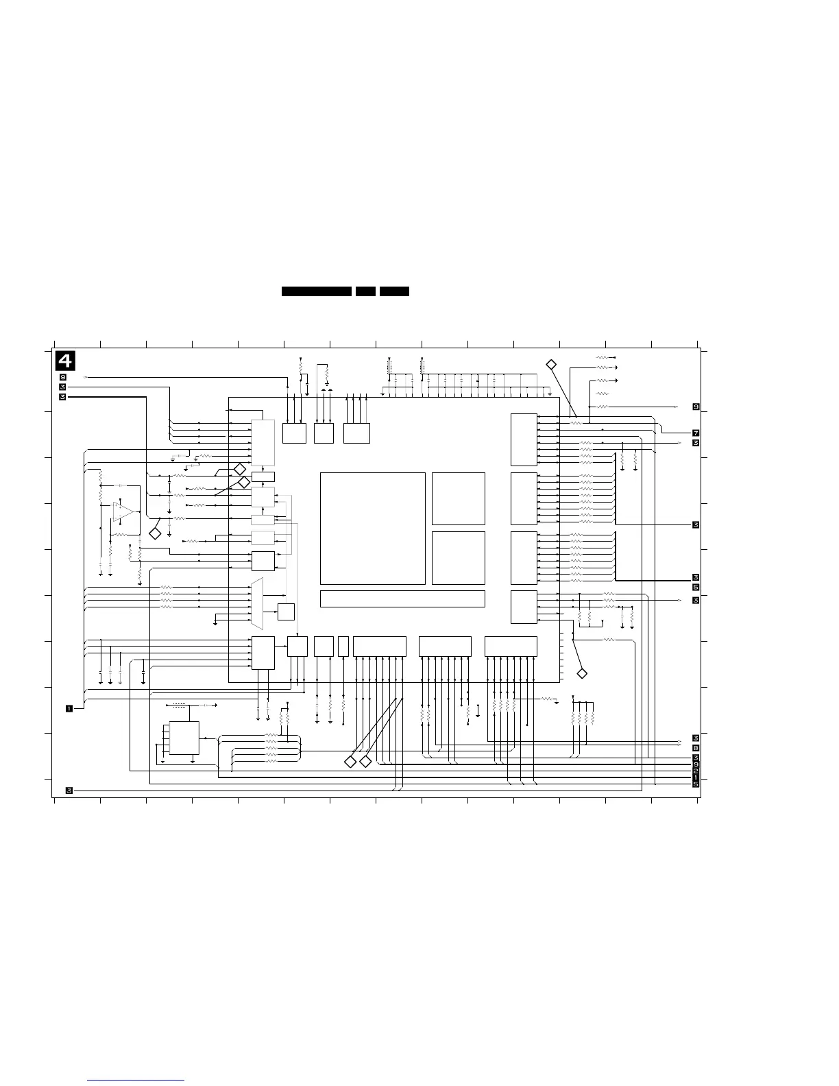
Electrical diagrams and PWB’s
GB 37CDR 3rd gen. 7.
Port
Port 1
GEN.
TEST
DEBUG
4
Port
2
0
Port
System
interface
P6
CLOCK
PCS
counter
Radial
Focus
Track
Defect
Signal
cond.
Ex
Dx
OPC
control
detector
core
8051
SFR
RAM
ROM
ref.
AGC
ADC/
Laser
control
control
Slegde
control
Port 5
Port 3
3233 G12
F329 B4
F314 A12
F318 B12
F322 B4
F325 B4
3238 H10
912
2234 G2
3
2272 A8
2273 A8
2 13
3218 E2
2274 A9
A
5
2284 H5
14
2275 A9
2276 A9
7215-A D2
7270 A4
B
13
F303 A8
F304 A6
6
14
3223-B E12
3232 H11
3221 D2
3807 B12
F426 H9
F427 H9
3222-D E12
A
1%
DATA BUS
2218 G12
2220 E2
2222 E1
F326 B12
3223-A E12
ADDRESS BUS
G
H
2286 D3
1
8
5
9
8
F
2217 D2
3273-A C12
7
F416 H6
F417 H7
10 11
3271-B C12
3271-C C12
B
2277 A10
2285 H5
3242-A H12
3271-D C12
2278 A10
E
F
G
H
I
1
3246 H10
3247-A C4
C
D
3219 E2
2283 H6
3222-B D12
3222-C D12
3230 G12
3231 G12
12
3223-C E12
F425 H9
F302 A8
F414 H6
3289 F3
3887 A12
5201 A8
3235-A B12
3235-B B12
3235-C C12
3235-D B12
3276 H8
F397 F4
4
CONTROL BUS
3287 H7
3288 F3
3212 I5
3213 E12
3215 C2
2230 B3
3297 C3
3299 C3
23
2207 H4
3220 E2
3248-B I5
3248-C I5
2216 C2
3234 G12
2233 G2
3260 F12
6
F415 H6
3749 A6
F436 H9
2235 G2
3271-A C12
3273-B D12
3273-C D12
3273-D D12
3274 A6
F362 C4
F350 C3
C
D
F335 B4
F367 C4
3242-B H12
3242-C H12
3242-D H12
3245 H10
3243-B A12
3243-C A12
3247-B C4
3247-C H6
3216 C2
3217 E2
F385 E4
F387 E4
10 11
F402 F12
3248-D I5
3223-D E12
F401 G12
F413 H5
3249 H10
F305 A6
F307 H6
F420 H7
F421 H8
F422 H8
F423 H9
F394 E4
3243-A A12
F398 F12
3281 H7
3290 E3
3291 E3
F429 H10
3280 H9
4
3248-A H5
2289 A6
3208 H9
F392 E4
3702 C13
I
7
3295 D3
3703 C13
5202 A9
5203 H3
7207 H3
F430 H10
F431 H10
F432 H10
2231 C4
3261 F13
F439 I4
F440 H10
3243-D A12
F434 I3
F358 C4
F361 C32232 G2
F435 H8
F351 C4
F442 H8
F419 H7
F334 B12
3247-D H5
F384 D2
F368 C1
F375 D3
F377 D2
F380 D1
F382 D4
F411 H11
E
3222-A D12
F451
3255 D4
F399 F4
F400 F12
2287 C3
2288 C3
I2C BUS
F418 H7
F443 H9
3286 B4
3216
F450
15K
22K
3219
3286
22K
10K
3242-C
36
F453
F423
22K
3221
47R
3223-D
F440
10K
3220
2217
22n
SGND
220R
3212
10K
3243-C
36
47R
3222-D
3222-C
47R
F415
F397
F394
F411
47R
3235-A
18
0R
3247-B
10K
27
F368
3887
3289
56K
5201
BLM21
F419
F454
SGND
F452
47R
3271-D
45
F380
SGND
SGND
10K
3255
10K
3243-A
18
3261
0R
5
10K
3232
F392
3242-D
10K
4
6
F398
12
69
VddDp6
119
VssAop
109
VssAs
82
VssDc1
21
VssDc2
56
VssDp1
95
VssDp2
43
VssDp3
31
VssDp4
11
VssDp5
68
VssDp6
41
WRN
19
WRNH
XDET
127
7
XTLI
XXTLO
99
102
TS2
103
TS3
34
TXD1
40
TXD2
118
Uopb
117
Uopt
105
VRH
120
VddAop
110
VddAs
83
VddDc1
22
VddDc2
57
VddDp1
96
VddDp2
44
VddDp3
32
VddDp4
VddDp5
20
9
REFCOS
REFSIN
8
80
RP
98
RSTI
33
RXD1
39
RXD2
112
S1
S2
113
5
SELPLL
SINPHI
125
72
SL
89
SRV_INT_LGR
85
TEN
81
TL_FTL
84
TPWM
TS1
67
NC6
100
NC7
NC8
101
88
OPC_INT
79
OTD
104
P6
53
PSENn
124
PW
17
PXT0
18
PXT1
16
PXT2
15
PXT2en
70
RA
10
RAC_SW
42
RDN
RDNH
90
I2CSCL
91
I2CSDA
35
INT0_PWD
38
INT1
13
INT2
14
INT3|ALEh
114
IREFT
97
LDON
LLP
94
MON_A
74
73
MON_D
2
NC1
3
NC2
36
NC3
37
NC4
NC5
92
DEFIn
93
DEFOn
78
DSDen
55
EAn
71
FO
87
FOK
115
FTCH
116
FTCL
23
H0|A16
H1|A17
24
25
H2|CSDN
26
H3|CSBN
27
H4
28
H5
29
H6
30
H7
62
AD4
63
AD5
64
AD6
65
AD7
54
ALE
4
ALPHAO
77
ATIPin
123
CALF
76
CLKOUT
86
CLO
126
COSPHI
106
D1|MIRN
107
D2|TLN
108
D3|REN
111
D4|FEN
75
DEB_OUT
A1
47
A10
48
A11
49
A12
50
A13
51
A14
A15
52
122
A2
45
A8
46
A9
ACT_EMFN
1
ACT_EMFP
128
58
AD0
59
AD1
60
AD2
61
AD3
F334
7270
SAA7399
121
47R
3235-D
45
F314
2218
100n
10K
3242-A
18
3234
1K
4K7
3703
3218
F429
100K
3230
100K
10K
F420
3231
100n
2273
2231
2272
100n
47R
F416
22n
3222-B
47R
3222-A
F417
F401
SGND
SGND
F399
220R 3248-D
45
2275
3288
56K
2276
100n
100n
3223-C
2274
100n
47R
F384
100n
2285
SGND
F413
0R
3807
F307
F302
220R
F304
100n
3249
F326
2277
F367
SGND
F351
F427
F436
F421
F426
5202
BLM21
2230
22n
F418
27
3243-D
10K
45
F400
10K
3243-B
100n
10K
3242-B
27
F318
SGND
2207
F431
SGND
F432
10K
45
10K
3247-C
36
3247-A
10K
18
3247-D
3223-B
47R
F358
F350
F329
2288
22n
SGND
F434
F377
47R3273-C
36
3271-A
47R
18
5203
BLM21
47R
F303
33R3213
3260
F387
F362
F385
36
3235-B
47R
27
47R
36
47R
3235-C
F425
47R
3271-B
27
3271-C
3702
4K7
F435
100K
3274
3238 220R
SGND
F422
47K
3217
47R
3273-B
27
F439
3295
3233
100R
3297
3K3
3K3
7
SGND
2216
47p
220R 3248-C
36
3248-B220R
2
2235
F430
3290
1n
3291
56K
68K
F375
3246 220R
3245
220R
F335
F322
3281
220K
100n
2284
SGND
F414
3276
47R
3208
10K
3104 123 4228
PB CDRW
MAIN-4228-CDR99
F305
SGND
2233
SGND
F382
1n
3K3
3299
7207
E0
1
E1
2
E2
3
SCL
6
SDA
5
VCC
8
VSS
4
WC_
7
2222
82p
2289
M24C08
F442
100n
2n2
100n
2283
2n2
2286
3248-A220R
18
2287
3273-D
45
100n
2278
F361
47R
3
2
1
8
4
10K
3287
3215
7215-A
MC34072
F443
15K
47R3280
22n
2232
47R
47n
2220
F325
3223-A
18
F402
2234
47R
3273-A
3749
1n
VRA
VSL
{VFO,VRA,VSL}
TRAYIN
TRAYOUT
DMON
{LASDACDI,LASDACCK,LASDACLD,PW}
{POWER_UP,KILL_OUT}
PW
ATIPSYNC
LLP
STANDBY
STANDBY
10K
{I2CL,I2DA,LASDD,LASCK,LASLD}
ALPHA0
S2V9
CALF
A2
A1
FEN
REN
TLN
MIRN
RE
FSR
FSW
{FSR,FSW,S2V9,FEN,REN,TLN,MIRN,RE,ALPHA0,CALF,A1,A2}
OFFTRACK
{OFFTRACK,ATIPSYNC,LLP,HFS0,CDR60INT,CDR60CS,CDR60PLL,SRSTN,DMON}
VFO
LASLD
LASCK
LASDD
I2CL
I2DA
LASDACCK
LASDACDI
I2CSCL
I2CSDA
I2CSDA
I2CSCL
{I2CSDA,I2CSCL}
CDR60CS
SRSTN
SRSTN
CDR60INT
HFS0
LASCK
I2DA
I2CL
LASDD
MA(12)
MA(11)
MA(10)
MA(9)
MA(8)
MA(0:17)
CDR60PLL
DSA_DATA_CDR
DSA_STR_CDR
DSA_ACK_CDR
ATT
MUTE
{DSA_ACK_CDR,BE_RESET,DSA_STR_CDR,DSA_DATA_CDR,MUTE,ATT,DEEMP,IIS1_MS,SYS_CLK_BE}
MWRN
MRDN
{MRDN,MWRN,ALE}
LASLD
LASDACLD
{REFSIN,PCSSIN,REFCOS,PCSCOS}
IIS1_MS
BE_RESET
DEEMP
MAD(7)
MAD(6)
MAD(5)
MAD(4)
MAD(3)
MAD(2)
MAD(1)
MAD(0) MAD(0:7)
MA(17)
MA(16)
MA(15)
MA(14)
MA(13)
DEBON
DESIGN_TEST1
MRST_P
FWEN
FWEN
MRDN_P
HI_POWER
POWER_UP
CSRAM
CSRAM
TRAYSWF
ALE
MWRN
MRDN
{TRAYIN,TRAYOUT,TRAYSWF}
PCSCOS
REFCOS
PCSSIN
REFSIN
PSENN
D3V3
D3V3
D3V3
D3V3
D3V3
D3V3
DESIGN_TEST2
D3V3
D3V3
D3V3 D3V3 D3V3
D3V3
D3V3
D3V3
A-8V
D5V
SYS_CLK_BE
SYS_CLK_BE
MWRN_P
TERMB
TERMB
TERMB
CDR MAIN BOARD - CIRCUIT DIAGRAM 4 : MACE BE-PROCESSOR TESTPOINTS
R2
R5
S10
S13
S16
S19
S20
CL06532018_079.eps
010300

Other manuals for Philips CDR570

Related product manuals