EasyManua.ls Logo

Philips DVD782 - MPEG Board: INDEX

Philips DVD782
82 pages
Print Icon
To Next Page IconTo Next Page
To Next Page IconTo Next Page
To Previous Page IconTo Previous Page
To Previous Page IconTo Previous Page
Loading...
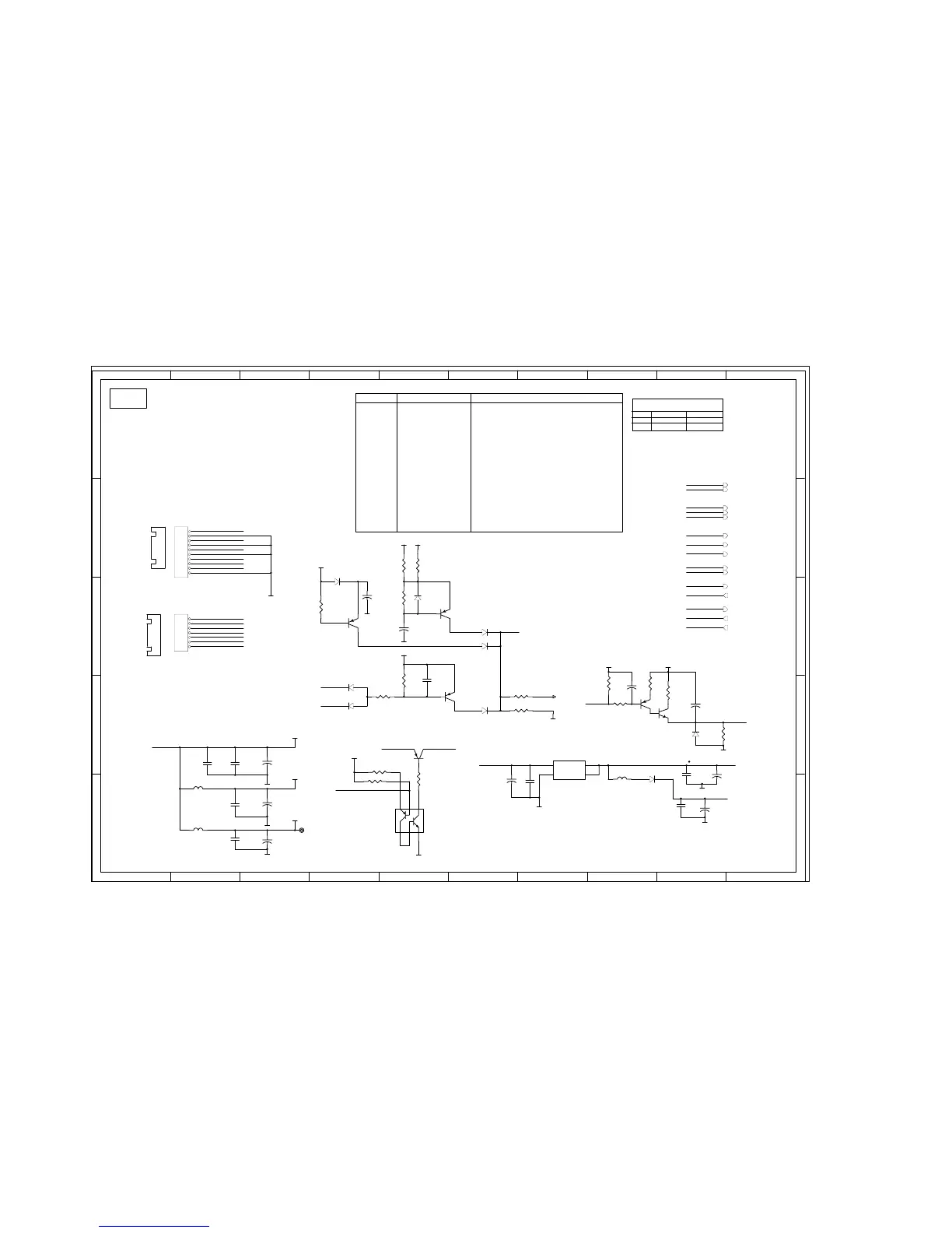
Electrical Diagrams MPEG DVD625K/931/751/691/692/131/031 & DVD625/781/782/785
MPEG Board: INDEX
1601 C2
1610 C2
2601 D5
2603 D2
2605 E7
2606 D9
2607 E2
2608 E9
2609 E2
2706 D8
2778 C5
2779 C4
2781 D3
2782 D9
2783 D9
2784 E3
2785 E9
2786 E3
2800 E6
2802 D2
3602 C4
3603 D5
3604 D6
3605 C5
3606 B5
3607 D6
3609 B5
3610 C5
3611 D9
3714 D5
3718 E4
3744 E4
3747 D8
3748 D8
3749 D8
3832 D9
5602 E8
5603 E2
5604 E2
6601 C6
6602 C5
6603 C4
6604 E8
6605 D9
6620 C6
6621 D6
6622 D4
6623 D4
7601 D7
7616 C4
7617 D5
7618 C5
7633 D5
7634 E5
7635 D8
7636 D9
TP23 E3
E
D
C
B
A
E
D
C
B
A
12345678910
12345678910
OrgName
RVCC
+5VL +5VL
DV33
A_MU TE
URST
DV33
V25
+5VL
RVCC
AVC C
GND
AVC C
V25
D5V
URST
+12V
D5V
-12V
D5V
GND
+12V_IN
GND
-12V
STDBY
MUTE 1
MUTE
STDBY
YUV7
GND
+12V
-12V
GND
A_MU TE
VRST
ASD AT3
VRST
GND
A_MU TE
MUTE
MUTE 1
+12V_IN +12V
STDBY
6603 1N4148
3744
4.7K
6622 1N4148
6623 1N4148
2601
1uF
3602
3.3K
1
2
3 4
5
6
7634
BC847BPN
1
2
3
4
5
6
7
1610
AUDIO2/7P,2.54mm
+
2800
100UF/16v A
3604 100K
2605
100N
+
2781
220uF/16v A
3714
1K
6621 1N4148
2603
100N
ADJ/GND
1
OUT
2
IN
3
OUT
4
7601 LD1117
2608
100N
+
2784
220uF/16v A
7617
BC858B
7633
BC858
3605
22K
2607
100N
5602
FB
6605
1N4148
2606
100N
+
2786
220uF/16v A
6602
1N4148
2802
100N
5603
FB,0805
7616
BC858
+
2785
220uF/16v A
3603 1k
3610
R
2609
100N
3607 220K
5604
FB,0805
+
2778
100UF/16V A
7618
BC858
+
2783
220uF/16v A
3606
R
6604
1N4002
3609
0
3718
4.7K
6620 1N4148
+
2782
10uF/25v A
6601 1N4148
+
2779
220UF/16V A
3611
10k
+5VL
RVCC
AVCC
DV33
GND
GND
GND
GND
GND
GND
GND
GND
DV33
GND
DV33
GND
-12V
GND
GND
+5VL
DV33+12V
A_MUTE
URST
DV33
V25
+5VL
RVCC
AVCC
GND
-12V
MUTE1
MUTE
+12V
STDBY
ASDAT3
VRST
5VL Digital 5V
NAME TYPE DEVICE
SUPPLY
MT1369E
Flash, VideoDACDigital 3.3V
AV33
DV33
MT1369E
Servo 3.3V
Audio 12V Audio filter
Digital 2.5V
+12V
V25
MT1336EServo 5VRVCC
PICKUP HEADERRF 5VAVCC
DV33 Digital 3.3V MT1369E
+5V8756D
VCC5330
SD33 SDRAMDigital 3.3V
Audio 5V
AudioAudio 5V
Audio DAC
+5V8756A Audio 5V Audio DAC
VIDEO+5VV VIDEO 5V
DIP P10.0
1
10
1
7
LOW MUTE
TP23
3747
10K
3748
750K
3749
100 OHM
3832
10 OHM
7636
BC848
7635
BC858
+
2706
4.7U/10V
D5V
STB DECT
1
2
3
4
5
6
7
8
9
10
1601
10PIN EH
+5VL
GND
M 1
INDEX
Revision Information:
ITEM
3604 OPEN 100K
3607 OPEN 220K
V1.0 (Dec 02)
V1.1 (Mar 03)
33

Related product manuals