EasyManua.ls Logo

Philips DVP3015K - Page 33

Philips DVP3015K
41 pages
Print Icon
To Next Page IconTo Next Page
To Next Page IconTo Next Page
To Previous Page IconTo Previous Page
To Previous Page IconTo Previous Page
Loading...
1
1
2
2
3
3
4
4
5
5
6
6
A A
B B
C C
D D
E E
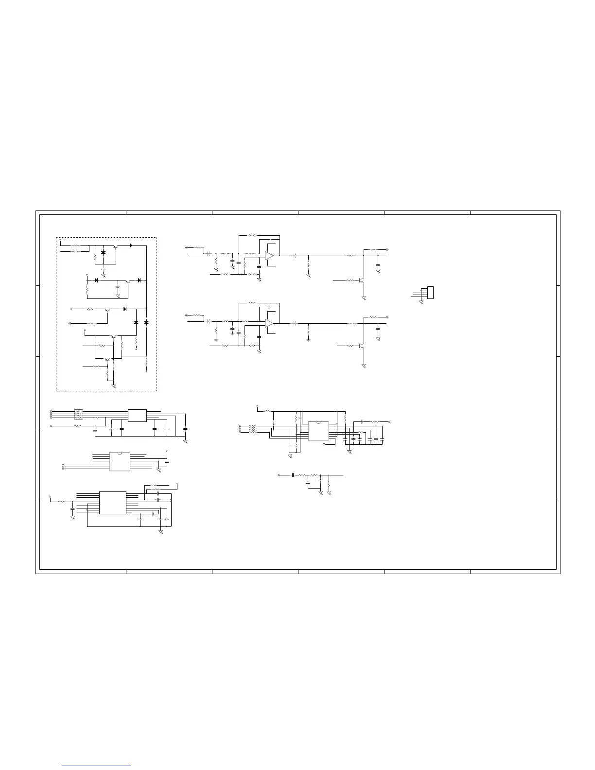
mute circuit
Main Board : AUDIO FILTER & OUT PUT
R26 D2
R25 D2
R154 A3
RN4 C1
C113 D2
C119 D2
C140 C2
CE37 C1
R156 A3
R157 A3
R153 A3
R189 A1
C54 D1
U16 D1
R24 D1
C114 D2
C139 C1
R151 A2
C141 C2
Q27 B1
R159 A4
R155 A3
U15 C1
C142 D2
C120 D2
Q26 B1
CE47 D2
CE48 D2
R152 A3
R148 C1
R150 A2
U14 C2
C138 C1
R188 A1
CE38 C2
R190 A1
R192 A1
R140 B1
R193 B1
R141 B1
R194 B1
D11 A2
D10 A1
Q24 A2
D14 A1
Q25 B1
D12 A1
D16 B2
Q23 A1
D15 B2
D13 A2
R166 B2
R167 B3
R160 A4
R168 B3
R165 A4
R161 A4
R173 B3
R175 B4
R169 B3
R176 B4
R172 B2
R170 B3
R185 C3
R186 C4
R177 B4
R187 D4
R184 B3
R181 B4
R62 D4
C132 D4
CE42 B3
C130 D4
R145 B2
CE40 A2
C134 D4
R143 B2
Q31 B4
C145 B3
C124 A3
U11 A3
C146 B4
C97 D4
R137 D3
C117 A3
C123 B3
C98 D4
C136 D4
L26 C3
C122 B3
CE45 B2
C133 D4
RN5 D3
C137 D5
C121 B3
CE41 A3
C96 D3
R76 D4
Q29 B4
R144 B1
CN10 B5
C118 A4
R142 B1
C135 D4
C116 A3
C129 D3
R138 D4
R139 D4
C115 A3
CE43 C4
U13 D4
CE9 C4
+12VA
MUTE_DAC
LOUT+
FL
-12VA
MUTE1
ROUT+
ROUT-
RESET#
SACLK
MC
LOUT+
LOUT-
SLRCK
SDAT0
SBCLK
SDAT0
SBCLK
SLRCK
DAC_ML
MUTE1
MUTE2
ROUT+
+12VA
-12VA
DAC_MR ROUT-
LOUT-
DAC_ML
DV33
MUTE_L
A_MUTE
M-L
MUTE_R
MUTE_R
M-R
AL
AR
ASDAT0
ABCK
ALRCK
ACLK SACLK
MUTE2
VCC3_AUDIO
DAC_MR
VCC_AUDIO
RESET#
MIC
MUTE_L
ML
MD
M-R
COAX
M-L
COAXASPDIF
FR
SACLK
MUTE2
SBCLK
RESET#
MUTE1
+12VA
FL
MD
FR
MC
SLRCK
SDAT0
A-L
A-R
SMCLK
ACLK
ALRCK
ABCK
ASDAT0
SLRCK
SACLK
SBCLK
MIC
SDO
RESET#
ML
MC
MD
MUTE_DAC
AL
AR
ASPDIF
-12V
VCC
DV33
-12V
VCC_AUDIO
VCC
VCC3_AUDIO
+12V
VCC3_AUDIO
VCC3_AUDIO
C138
22P
C54
0.1u
C119
0.1u
C113 0.1u
C120
0.1u
U16
CS4351
1
2
3
4
5
6
8
9
10 11
12
13
14
15
16
17
18
19
20
7
SDIN
SCLK
LRCK
MCLK
VD
GND
DIF0(SDA/CDIN)
DEM(AD0//CS)
RST/ VA
VBIAS
VQ
/BMUTEC
AOUTB
GND
VA_H
AOUTA
/AMUTEC
VL
DIF1(SCL/CCLK)
R26 1
R24 1
C114 0.1u
R138
75
R137
100
C98
100pF
+
CE48
3.3u
C97
100pF
RN4 33x4
18
27
36
45
+
CE47 33u
C96
0.1uF
R139
110
C141
0.1u
R159
470
R141
1K
R184
NC(470)
D14
1N4148
R165
470
R169
3.3K(470)
C118
1000pF
C145
3300pF
R193 330
+
CE44
100uF/16V
R168
30k(5.1k)
R192
3.3k
+
CE9 10u
D12
1N4148
+
CE34
470uF/16V
C115 680PF
C123
2700pF
R176
470
R189 0(OPEN)
R181
470
R155
NC(470)
R157
5.1K/1%
+
CE45
3.3uF/16V
R190
22k
D11
1N4148
C117
3300pF
D16
1N4148
+
CE42
10uF/16V
R177
470
R154
3.3K(470)
R161
10k
+
CE38
10u
R194 10K
R151
10k(NC)
R144
1K
C124
0(680p)
R153
30k(5.1k)
R143
100K
Q27 9012H
R156
4.7k/1%
Q31
9014
2N3904S
C122
0 (680p)
C140
0.1u
C142
0.1u
+
CE40
3.3uF/16V
Q25
9012
1
2 3
+
CE37
3.3u
R173
5.1K/1%
D13
1N4148
+
CE41
10uF/16V
R188 0
R167
10k
U14
CS4344
1
2
3
4
5 6
7
8
9
10
SDIN
DEM_/SCLK
LRCK
MCLK
VQ FILT
AOUTL
GND
VA
AOUTR
Q23
9012
1
2 3
Q24
9012
1
2 3
Q26 9012H
R148 33
D10
1N4148
Q29
9014
2N3904S
U15
AK4382
2
3
5
4 13
14
6
7
8 9
11
12
10
1
15
16
BICK
SDTI
PDN
LRCK VSS
VDD
CSN
CCLK
CDTI AOUTR-
AOUTL-
AOUTL+
AOUTR+
MCLK
DZFR
DZFL
D15
1N4148
C146
1000pF
R145
100k
R160
470
R142
OPEN
+
-
U11A
NJM4558 OPA
3
2
1
8 4
R152
10k
R25 10
C139
0.1u
C121 680PF
R175
10k
R172
4.7k/1%
R170
10k(NC)
C116
2700pF
+
-
U11B
NJM4558 OPA
5
6
7
8 4
R182 33
C135
0.1u
C136
1u,0805
C137
0.1u
C133
1u,0805
R185
10K
C132
2200p
C129
0.1u
C130
0.1u
U13
CS5340
2
3
5
4 13
14
6
7
8 9
11
12
10
1
15
16
MCLK
VL
GND
SDOUT VA
REF-GND
VD
SCLK
LRCK RST/
VQ
AINR
AINL
M0
FILT+
M1
R187
91
R140
NC(4.7k)
+
CE43
10u
R186
4.7
L26
FB / 0805
RN5 33x4
1 8
2 7
3 6
4 5
C134
0.1u
R146
NC(4.7k)
R150
10k(NC)
R166
10k(NC)
R62
100K
R76 100K
CN10
AUDIO OUT
1
2
3
4
5
for DVP3002/93 DVP3020/05
6-27
6-27

Related product manuals